#Construction # Interior #DesignTips #MyMaison
Concept of Setting Out Point Every design serves its own purpose, and most of the thing start off with a setting out point. Setting out point refer to a reference point, whereby when you start constructing something, it is the place where you begin.
The first setting out point that I would like to highlight here will be tile setting out point. This is very important as it covers the entire area of your unit flooring. A typical tile size can be 300x300mm, 300x600mm,600x600mm etc. A good setting out point can reduce the wastage of tile as it avoids a lot of cutting work on tile at the end of the area. If you simply lay your tiles, you might meet the problem such as having a weird sizing of tile at the end. Just imagine what will the tiles look like if you lay in this way, explore more possibilities and consider if the option can allow the tile line to meet the tile line of another area, just like the interface between bedroom to bathroom. Have a look on the sketch shared below to have a better understanding! ๐ง๐ง
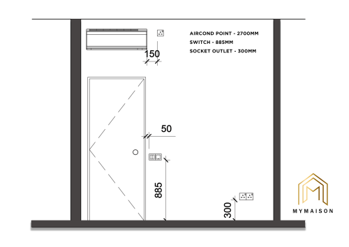
Secondly, setting out point of sanitary fitting in the toilet. We talked about the importance of ergonomic in this case, just like the electrical point height shared with you previously. A wash basin in the toilet is normally 850mm high from floor finish level. This is what we usually set for while designing. Dimensioning is so important during construction as everything is about coordination. You need to consider is the basin is aligned to basin inlet and outlet point. Where can I install the stopcock or angle valve? Normally, this stopcock and water outlet point is placed 550mm to 600mm above floor. How should I set the offset distance so that all the fittings look nice? ๐๐
Normally, for a head shower, we would set it around 2100mm to 2300mm high while the shower diverter can be 1100mm high. Now, you have to consider if there is any heater, what will be the chosen model? What is the sizing and how can I design it with the inlet? In that case, where will be my heater point, and can the shower head still aligned at the center of the wall? ๐
Next, ask yourself, should the toilet water closet aligned to the window, and will it looks better? Definitely, there is no right or wrong and it can be varied based on the bathroom layout. So, after setting out the WC position, what should be on my right or left? Normally, there will be a tap set at 600mm high on your right of WC, or even a hand bidet depending on design. There can also be a toilet paper with holder set at 750mm above floor on your left. Its all about design. Will there be any other possibilities, such as constructing a low wall with niche to place all the toilet paper, washing detergent etc. ๐๐
For additional information, normally bathroom or toilet of different floors are stacked from each other. This is because they would need to divert all the wastewater away directly from top to bottom. So, we would need access panel in order to service the floor trap or WC above, just in case there is anything happen. Access panel is also needed for you to service if there is any storage water heater tank above. Talking back to the setting out, yes access panel setting out is also important as you would not want something not aligned in your bathroom also right! Haha!!
Remember, planning is important, design is important and construction work with site adjustment are all important. Hope you learn something today!!
ๆๆ็่ฎพ่ฎก้ฝๆๅฎ็็ฎ็, ่ๅพๅค็ๆฝๅทฅๅทฅ็จ้ฝไปไธไธชSetting Out Point ๅผๅงใๆ่ฐ็Setting Out Point ๆ็ๆฏไธไธช่ตท็น๏ผๅฐฑๅฆ้บๅฐ็ ๏ผๆป้่ฆไธไธช่ฎพ็ซไธไธช่ตท็นๅผๅง้บใ
ๅบๆฌ็็ท็ ็ๅคงๅฐๆ300x300mm, 300x600mm,600x600mm ็ญ็ญใไธไธชๅฅฝ็่ตทๅง็นๅฏไปฅๅๅฐ้บ็ท็ ๆถๆ้ ๆ็ๆตช่ดนใๅฆๆๆฒกๆไบๅ
ๆณๅฅฝ่ฏฅๆไน้บ๏ผๆๅไฝ ๅฏ่ฝไผๅ็ฐ่ง่ฝ่พน็่กๆฅๅคๅพๆช๏ผ็่ณๅพ้พๅปๆๅฎๅกซ็พใไฝ ้่ฆๅจ้บๅซๅไบๅ
ๅๅฅฝๅ ็งๅฏ่ฝๆง๏ผไปฅ่พพๅฐๆๅฅฝ็ๆๆไปฅๅ่ฎฉไธๅ็ฉบ้ด็็ท็ ็ผๅฏไปฅๅฎ็พ่กๆฅ่ตทๆฅใ
็ฌฌไบ๏ผๆตดๅฎคๅ
็ๅซ็่ฎพๅคๅๆ ทไน้่ฆSetting Out Pointใๆดๆ็่ขซๅฎ็ฝฎๅจๅคง็บฆ850mm ็้ซๅบฆใๅฐบๅฏธ็ๆต้ๆฏ้ๅธธ็ๅพ้่ฆ็ใไฝ ้็กฎไฟๆดๆ็็ๅฎ่ฃ
ๅฏไปฅไธWater Inlet Point & Outlet Point ๆญ้
ใ้ฃๆตดๅฎค้็ๆๅก้่ฏฅ็ฝฎๆพๅจๅช้ๆๅฅฝ็ๅข๏ผๆๆถ๏ผๆไปฌไผ็ฝฎๆพๅจๆดๆ็ไธ๏ผๅๆ่
ๆฏๅจๆฃไฟฎๅฃๆใ่ฅๅจๆดๆ็ไธ๏ผ็ฝฎๆพ็ไฝ็ฝฎๅคง็บฆๅจ550mm ่ณ600mm ็้ซๅบฆใ่ณไบ่ฑๆด๏ผๆไปฌไผ่ฎพ็ฝฎๅจๅคง็บฆ2100mm่ณ2300mm็้ซๅบฆ๏ผ่ๅผๅ
ณๅฃๅๅจ1100mm็ไฝ็ฝฎใไธค่
ๅฟ
้กปๅนณ่กๆๆพๆ็พๅฆ๏ผๅฆๆๆ็ญๆฐดๅจ๏ผๆไปฌๅ้่ฆๆ่็ญๆฐดๅจ็็ๅญใๅคงๅฐใๆๆพไฝ็ฝฎใ็ญๆฐดๅจๆๅบง็่ฎพ่ฎก่ฏฅๅฆไฝ็ญ็ญ๏ผๅๆฅ๏ผ้ฉฌๆกถ็ๆๆพไนไผๅ ๅๆ็่ฎพ่ฎก่ๅณๅฎใๅจ้ฉฌๆกถ็ๅทฆๅณไธคไพง๏ผๅณไพงไผๆ600mm้ซ็ๆฐด้พๅคด๏ผๅๆ่
ๆฏHand Bidet๏ผ่ๅทฆไพงๅไผๆ750mm้ซ็ๅ็บธๆถใ่ฟไธ็ณปๅ็่ฎพ่ฎก้ฝๆฏๆนไพฟ็จๆท็ไฝฟ็จใๆไปฌไนๅฏไปฅ่่ๅฃ้พ็่ฎพ่ฎกๆฅ็ฝฎๆพ่ฟไบ็จๅ
ท็ญ็ญ๏ผ
ไบๅ
็่ฎพ่ฎกๅๆ นๆฎๅฎๅตๅๅบๅพฎ่ฐๆดไปฅ่พพๅฐไฝ ่ฆ็ๆๆใๅธๆไปๅคฉๅคงๅฎถ้ฝๆๆๆถ่ท๏ผไบ่งฃๅฐบๅฏธไปฅๅๆต้็ๅ็กฎๆงๅจๆตดๅฎค้ๆฏๆ ผๅค้่ฆ็๏ผ
MyMaison ๅฎ็ฝ ๐ป๏ผhttps://mymaison.com.my
