QUOTE(chloe E @ May 23 2022, 03:17 PM)
Hello Ehwee,
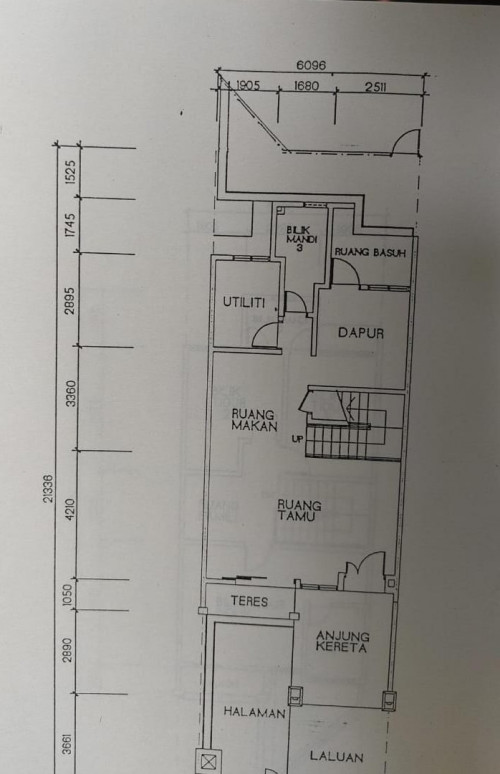
May I seek your professional advise on the layout below. Also attached my drawing first draft (I am not ID)
1. possible to have standalone island instead of L-shape
2. would like to have larger bathroom for guest ( combine 2 into 1 without hacking the maid room)
3. is it better to have sliding door in between dry and wet kitchen ?
4. image 4, advisable to elevate washer's placement (25cm from the ground)


Sorry for late reply, here are my suggestions for you.
1. possible to have standalone island instead of L-shape
a. yes, it's possible, you will just need to re configure the dry kitchen cabinet setup in order to allow a better 3 ft clear traffic corridor around the island as shown on my quick diagram
2. would like to have larger bathroom for guest ( combine 2 into 1 without hacking the maid room)
a. yes, possible too, just you will need to remain the existing piping box up wall that is catered for rainwater downpipe and sewerage piping upstair normally. you might need to opt for folding door for the small toilet at wet kitchen if you wish to remain a small toilet there.
3. is it better to have sliding door in between dry and wet kitchen ?
a. not necessary as if base on the existing space around dry and wet kitchen, normal swing door will have the same function, just of course having a sliding door will definitely make the area looks good!
4. image 4, advisable to elevate washer's placement (25cm from the ground)
not sure where you put the washer, may be can have 50cm if you actually want to keep the washer protected from flooding, cheers
Hope this help!
Attached thumbnail(s)