Welcome Guest ( Log In | Register )

28 Pages « < 22 23 24 25 26 > » Bottom

Outline · [ Standard ] · Linear+

 Ask Me Any Questions On Home Interior Design, Let's Talk About It

views
     
TSehwee
post Mar 9 2022, 06:31 PM

Value Our Living Spaces!
*****
Junior Member
790 posts

Joined: Sep 2013
From: Selangor


QUOTE(FeelSoGood @ Feb 16 2022, 05:25 PM)
Enclosed with the floor plan:-

user posted image
*
Here is the simple layout I suggest for you, it still depend on the appliances you have and how you use the kitchen and bar area, you will need to adjust according to your preference.

Hope this help!

This post has been edited by ehwee: Mar 9 2022, 06:31 PM


Attached thumbnail(s)
Attached Image
TSehwee
post Mar 9 2022, 06:34 PM

Value Our Living Spaces!
*****
Junior Member
790 posts

Joined: Sep 2013
From: Selangor


QUOTE(sonerin @ Mar 8 2022, 07:41 PM)
I wanted to ask how to design a courtyard behind the house with external kitchen outside of the house. Also dining area on the outside as well. Would like to have some open space concept with outdoor living
*

can you upload your house plan then I can only understanding and help you up, as different house layout, orientation, courtyard size will affect how a find a good layout and space planning.
t3n
post Mar 9 2022, 06:50 PM

Regular
******
Senior Member
1,457 posts

Joined: Jul 2009


QUOTE(ehwee @ Mar 9 2022, 06:21 PM)
since your kitchen entry opening is 900mm and the cabinet is 600mm depth, you need to have 2 nos of 450mm slidiing door then only can slide them in between and flash to the 2 full height cabinet.

I will said make the sliding door to slide and rest on the full height cabinet is a better choice, can ask contractor doing a 1 inch recessed vertical gap on the full height cabinet so the sliding door can closed gapless onto the cabinet.
*
Alright, fully understand now.. thanks so much for the input.. really appreciate it..
sonerin
post Mar 9 2022, 08:36 PM

Look at all my stars!!
*******
Senior Member
8,739 posts

Joined: Aug 2009
QUOTE(ehwee @ Mar 9 2022, 06:34 PM)
can you upload your house plan then I can only understanding and help you up, as different house layout, orientation, courtyard size will affect how a find a good layout and space planning.
*
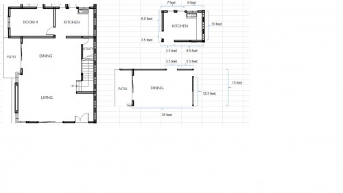
This is ground floor plan. Behind the house or yard area the house 1500 sq feet of empty land.
Want to use this empty land to build up the courtyard with kitchen and dining area.


Attached thumbnail(s)
Attached Image
TSehwee
post Mar 10 2022, 01:46 PM

Value Our Living Spaces!
*****
Junior Member
790 posts

Joined: Sep 2013
From: Selangor


QUOTE(t3n @ Mar 9 2022, 06:50 PM)
Alright, fully understand now.. thanks so much for the input.. really appreciate it..
*
You're welcomed.
TSehwee
post Mar 10 2022, 01:50 PM

Value Our Living Spaces!
*****
Junior Member
790 posts

Joined: Sep 2013
From: Selangor


QUOTE(sonerin @ Mar 9 2022, 08:36 PM)
This is ground floor plan. Behind the house or yard area the house 1500 sq feet of empty land.
Want to use this empty land to build up the courtyard with kitchen and dining area.
*
looking at the plan you uploaded, the back yard only has around 10ft depth of land to the boundary line, are you sure you have 1500sqft land behind, can upload some site photos.


sonerin
post Mar 10 2022, 06:26 PM

Look at all my stars!!
*******
Senior Member
8,739 posts

Joined: Aug 2009
QUOTE(ehwee @ Mar 10 2022, 01:50 PM)
looking at the plan you uploaded, the back yard only has around 10ft depth of land to the boundary line, are you sure you have 1500sqft land behind, can upload some site photos.
*
The floor plan does not include the empty plot behind the house. Attached some pictures of the empty land. Roughly the measurement of this empty space is 40 feet wide and 35 feet length

This post has been edited by sonerin: Mar 10 2022, 06:27 PM


Attached thumbnail(s)
Attached Image Attached Image Attached Image
TSehwee
post Mar 10 2022, 08:25 PM

Value Our Living Spaces!
*****
Junior Member
790 posts

Joined: Sep 2013
From: Selangor


QUOTE(sonerin @ Mar 10 2022, 06:26 PM)
The floor plan does not include the empty plot behind the house. Attached some pictures of the empty land. Roughly the measurement of this empty space is 40 feet wide and 35 feet length
*
You have quite a big back land brother. You can position the wet kitchen and outdoor anywhere you prefer.

I suggest you engage a landscape specialist to help you do a proper outdoor dining area with pro gardening design and stone pathways.

This is out of my profession as I am specialized in interior space and design 🙂
sonerin
post Mar 10 2022, 09:02 PM

Look at all my stars!!
*******
Senior Member
8,739 posts

Joined: Aug 2009
QUOTE(ehwee @ Mar 10 2022, 08:25 PM)
You have quite a big back land brother. You can position the wet kitchen and outdoor anywhere you prefer.

I suggest you engage a landscape specialist to help you do a proper outdoor dining area with pro gardening design and stone pathways.

This is out of my profession as I am specialized in interior space and design 🙂
*
Thanks for your suggestion. Will look for the right specialist to help. Reason i go with this house is for the big back land. Practically can build anything I want
ExpZero
post Mar 11 2022, 11:46 AM

Regular
******
Senior Member
1,522 posts

Joined: Mar 2007
From: Kuala Lumpur
I'm purchasing a Semi-D as below, the floor plan is terbalik. Based on your experience, to repair all the tiles, water leaking and do a full renovation, what's the budget I should be looking at minimum?

I plan not to hack any wall to converse budget, just ID and repair leaking(I want to repair it properly to prevent future leak), paint the whole building etc. I might engage you as my ID if everything alright.


https://streamable.com/z3eda9
https://streamable.com/v4gjfn
Attached Image Attached Image
Calvin Seak
post Mar 14 2022, 10:24 AM

Hiring, TTDI, KL only
*******
Senior Member
2,446 posts

Joined: Oct 2008

Hi ehwee!

Thank you for your wonderful thread! I would like to seek some advice on this layout..

user posted image

https://my.matterport.com/show/?m=LtPFWVQUNN3

Here is how the show unit looks like..

What is included are

Free Kitchen Cabinets + Hood + Hob + Oven
Free Air Conditioning Units in all rooms and living area
Free Built In Wardrobes in all rooms
Free Hot Water Storage Tank in all bathrooms


The rest of the condo would have bare white walls..

What is not included would be the kitchen isle.. I was wondering if it's possible to build it as the showunit above.. But along the hallway I would like to add a vertical shoe cabinet.. And opposite the wall maybe some floating cabinets to display items.. Or would that make the hallway small and narrow?

user posted image

Would it look nice to have these wood panels along the wall towards the hallway to the bedrooms?

Btw what kind of theme is that called in the show unit? How else would you arrange this house to make it look spacious?

Thank you for your time ehwee and stay safe

Regards,
Calvin
SebastianYong
post Mar 17 2022, 02:30 PM

New Member
*
Validating
37 posts

Joined: Feb 2022
user posted image

hi Ehwee,

Or perhaps anyone else with insights & experience,

Due to the small 'wall space' in my wet kitchen, I am not sure whether it is possible to install kitchen hood like that (as in picture) with about 1 foot plus hanging out at window area (not sure whether grill will obstruct).
The wall space is about 2 feet plus (kitchen hob mostly 3 feet)

Or I just opt for an exhaust ventilation fan 12" above the wall? (since the future cooking area is near to both window and back door)

Any insight or suggestion?

Thank you in advanced

user posted image
TSehwee
post Mar 17 2022, 03:41 PM

Value Our Living Spaces!
*****
Junior Member
790 posts

Joined: Sep 2013
From: Selangor


QUOTE(ExpZero @ Mar 11 2022, 11:46 AM)
I'm purchasing a Semi-D as below, the floor plan is terbalik. Based on your experience, to repair all the tiles, water leaking and do a full renovation, what's the budget I should be looking at minimum?

I plan not to hack any wall to converse budget, just ID and repair leaking(I want to repair it properly to prevent future leak), paint the whole building etc. I might engage you as my ID if everything alright.
https://streamable.com/z3eda9
https://streamable.com/v4gjfn
Attached Image Attached Image
*
I suggest you ask few contractors to pay a site visit and get their advice.

As it is impossible to estimate the cost for tiling replacement works and water leakage solution merely base on simple plans you uploaded, cheers!
TSehwee
post Mar 17 2022, 03:50 PM

Value Our Living Spaces!
*****
Junior Member
790 posts

Joined: Sep 2013
From: Selangor


QUOTE(SebastianYong @ Mar 17 2022, 02:30 PM)
user posted image

hi Ehwee,

Or perhaps anyone else with insights & experience,

Due to the small 'wall space' in my wet kitchen, I am not sure whether it is possible to install kitchen hood like that (as in picture) with about 1 foot plus hanging out at window area (not sure whether grill will obstruct).
The wall space is about 2 feet plus (kitchen hob mostly 3 feet)

Or I just opt for an exhaust ventilation fan 12" above the wall? (since the future cooking area is near to both window and back door)

Any insight or suggestion?

Thank you in advanced

user posted image
*
Looking at the photo, the water outlet and inlet are quite near the position you want to put the exhausted hood. It is not practical to have water basin located too close to cooking hob.

Also exhausted hood will work better with a proper back wall panels.

If you cannot put the hood on opposite wall as I can't really see how the opposite wall looks like, then better you remove and replace a smaller window which is better solution
.



Attached thumbnail(s)
Attached Image
ExpZero
post Mar 17 2022, 04:04 PM

Regular
******
Senior Member
1,522 posts

Joined: Mar 2007
From: Kuala Lumpur
delete

This post has been edited by ExpZero: Mar 17 2022, 04:04 PM
sleyer
post Mar 17 2022, 07:38 PM

Enthusiast
*****
Senior Member
829 posts

Joined: Apr 2007
any idea for family area 1st floor convert to study area for 4 people ?

3 study area
1 gaming setup
sonerin
post Mar 18 2022, 07:05 AM

Look at all my stars!!
*******
Senior Member
8,739 posts

Joined: Aug 2009
QUOTE(ExpZero @ Mar 11 2022, 11:46 AM)
I'm purchasing a Semi-D as below, the floor plan is terbalik. Based on your experience, to repair all the tiles, water leaking and do a full renovation, what's the budget I should be looking at minimum?

I plan not to hack any wall to converse budget, just ID and repair leaking(I want to repair it properly to prevent future leak), paint the whole building etc. I might engage you as my ID if everything alright.
https://streamable.com/z3eda9
https://streamable.com/v4gjfn
Attached Image Attached Image
*
May I ask which property is this ?
chkchn P
post Mar 30 2022, 06:50 PM

New Member
*
Probation
1 posts

Joined: Mar 2022
Hello! I plan to add a wet kitchen and store room to the existing house. I am thinking of locating the wet kitchen in the corner to take advantage of wind flow directions. One disadvantage with this arrangement is that dining area will be darker (less natural light as a window will be removed). What is your opinion and do you have any suggested improvements on this planned layout?

https://pictr.com/images/2022/03/30/BT1a0x.md.gif
acoop P
post Apr 1 2022, 10:40 PM

New Member
*
Probation
11 posts

Joined: Mar 2022
I'm waiting on an intermediate terrace house (22 x 75) in Selangor, VP expected March 23. I know that my maximum budget won't cover all items in the list, but I would still like to see how far can the figure cover from the listed items below. Appreciate your view/input on this. Thanks in advance.

Budget: Max - 150000

From highest to lowest priority

1. Living and dining space retiling - plan to change to laminate flooring
2. Plaster ceiling and lighting/wiring all around house
3. Master bedroom
4. 2 nos kids bedroom
5. Tv panel wall and cabinet - living room and family area
6. Kitchen cabinet - wet and dry
7. laundry area
8. Loose furniture and decor for whole house
9. Electrical appliances - a/c, fan, fridge, oven, hood/hob, microwave, water heater
10. Master bathroom and first floor bathroom cabinet
11. 1 guest bedroom
12. Study table/cabinets - family area
13.Extension of rear house for wet kitchen/laundry
14. Series of wood panel or cabinet to segregate living and dining space
15. Auto gate + Grill
puregreendigital P
post Apr 3 2022, 08:49 PM

New Member
*
Probation
6 posts

Joined: Feb 2022
QUOTE(acoop @ Apr 1 2022, 10:40 PM)
I'm waiting on an intermediate terrace house (22 x 75) in Selangor, VP expected March 23. I know that my maximum budget won't cover all items in the list, but I would still like to see how far can the figure cover from the listed items below. Appreciate your view/input on this. Thanks in advance.

Budget: Max - 150000

From highest to lowest priority

1. Living and dining space retiling - plan to change to laminate flooring
2. Plaster ceiling and lighting/wiring all around house
3. Master bedroom
4. 2 nos kids bedroom
5. Tv panel wall and cabinet - living room and family area
6. Kitchen cabinet - wet and dry
7. laundry area
8. Loose furniture and decor for whole house
9. Electrical appliances - a/c, fan, fridge, oven, hood/hob, microwave, water heater
10. Master bathroom and first floor bathroom cabinet
11. 1 guest bedroom
12. Study table/cabinets - family area
13.Extension of rear house for wet kitchen/laundry
14. Series of wood panel or cabinet to segregate living and dining space
15. Auto gate + Grill
*
Hi there. I will leave it to construction professionals to answer your question properly.
But as a sustainability consultant, I just want to make a friendly suggestion that you also account for heat insulation.
So that you can keep your house cool while relying less on air-conditioning biggrin.gif

28 Pages « < 22 23 24 25 26 > » Top
 

Change to:
| Lo-Fi Version
0.0260sec    0.35    6 queries    GZIP Disabled
Time is now: 30th November 2025 - 04:51 PM