Welcome Guest ( Log In | Register )

28 Pages « < 20 21 22 23 24 > » Bottom

Outline · [ Standard ] · Linear+

 Ask Me Any Questions On Home Interior Design, Let's Talk About It

views
     
victorian
post May 30 2021, 02:22 PM

Look at all my stars!!!
*******
Senior Member
5,589 posts

Joined: Apr 2011
From: Kuala Lumpur



Hello, if I have a 2.9m width living room and I want to install full width curtain, how long is the curtain need ya, assuming two pieces.
TSehwee
post Jun 1 2021, 06:27 PM

Value Our Living Spaces!
*****
Junior Member
790 posts

Joined: Sep 2013
From: Selangor


QUOTE(Aghilan91 @ May 21 2021, 12:29 PM)
Hi ehwee, super helpful thread here.

I'm wondering how to implement a good kitchen with island layout with this image

user posted image

Also thinking if need to implement kitchen hood or not, is there hanging ceiling kitchen hood? since most of the kitchen hood need to put against wall.
*
I will suggest you do a new full height wall at the kitchen area. This will help to prevent you see the kitchen directly every time entering the house.

the new wall also help to provide you a better kitchen layout so you can place the cooker and hood behind the wall. As result, it will have better control on the cooking smoke issue.

Hope this help!


Attached thumbnail(s)
Attached Image
TSehwee
post Jun 1 2021, 06:31 PM

Value Our Living Spaces!
*****
Junior Member
790 posts

Joined: Sep 2013
From: Selangor


QUOTE(victorian @ May 30 2021, 02:22 PM)
Hello, if I have a 2.9m width living room and I want to install full width curtain, how long is the curtain need ya, assuming two pieces.
*
it's depend on the width of your window / sliding glass door vesus the wall, normally it should be 2 to 3 inches longer on each side than your glass doors minimum.

You definitely can go full width to fit the wall of 2.9m, it should be fine too.
TSehwee
post Jun 1 2021, 06:32 PM

Value Our Living Spaces!
*****
Junior Member
790 posts

Joined: Sep 2013
From: Selangor


QUOTE(1234_4321 @ May 27 2021, 10:33 PM)
Hello Ehwee,

Would like to know in the ID industry, does anyone providing only the consultation cost without the renovation package bundled?

I have asked a few ID out there, the quote is all inclusive of their renovation work etc, but what I have been looking is the ID that providing consultation on:
1. Theming
2. Light Fitting
3. Paint Color
4. Furniture /Decoration Color that fit the theme.

Does this kind of consultation service available out there?
*
can take a look at https://getinteriordesignonline.com
chicargo
post Jun 1 2021, 08:21 PM

Casual
***
Junior Member
359 posts

Joined: May 2014
user posted image

Hi ehwee, in your opinion what is a modern colour scheme for top and bottom kitchen cabinet to go with this tiles colour? Prefer to avoid black and white
SUSWynne2219
post Jun 2 2021, 04:08 AM

Getting Started
**
Junior Member
263 posts

Joined: Jan 2021
QUOTE(chicargo @ Jun 1 2021, 08:21 PM)
user posted image

Hi ehwee, in your opinion what is a modern colour scheme for top and bottom kitchen cabinet to go with this tiles colour? Prefer to avoid black and white
*
Green & pink
Aghilan91
post Jun 2 2021, 09:10 AM

New Member
*
Junior Member
9 posts

Joined: Dec 2012
QUOTE(ehwee @ Jun 1 2021, 06:27 PM)
I will suggest you do a new full height wall at the kitchen area. This will help to prevent you see the kitchen directly every time entering the house.

the new wall also help to provide you a better kitchen layout so you can place the cooker and hood behind the wall. As result, it will have better control on the cooking smoke issue.

Hope this help!
*
Thanks so much, it gave me more idea as well. Will try to explore more on that idea.
lygsl
post Jun 4 2021, 04:13 PM

New Member
*
Junior Member
43 posts

Joined: Oct 2012
Anyone here think Japanese toilet, bathroom layout is the future?
Pugface
post Jun 7 2021, 02:50 PM

On my way
****
Junior Member
522 posts

Joined: Apr 2014
Hello! I really like the idea of wood panels on ceilings. Any pros and cons? Appreciate your advice!
Ssyy33 P
post Jun 8 2021, 03:35 PM

New Member
*
Probation
2 posts

Joined: Jun 2019
Hi Ehwee & Guys,

I need some suggestion for the kitchen, dinning area and master bedroom orientation.

What will be the best orientation for the kitchen design as the area is quite small and yard is too small for stove allocation.

I'm also thinking to have either island or dinning table only or both. But I'm afraid it will be super tight if having both.

Besides that, any suggestion for master bedroom orientation as the air-con point provided above the wardrobe area as per floor plan rclxub.gif

*It is empty unit.
**All lighting and fan point is not planned yet. Those in picture are points provided by developer.

Hope this could help others as well. biggrin.gif




user posted image
TSehwee
post Jun 8 2021, 05:23 PM

Value Our Living Spaces!
*****
Junior Member
790 posts

Joined: Sep 2013
From: Selangor


QUOTE(1234_4321 @ May 23 2021, 11:21 PM)
it was bundle from the developer, so the side with stove can quite easily install with cabinet, but the side with piping is the side i'm having headache with…
user posted image
user posted image
user posted image
*
since you plan to remain the developer kitchen cabinet untouched, there is not much can do to dramatically modified the kitchen layout to make fully use of it.

Here is some ideas I suggest for you. Can consider doing a open vertical shelving at the protruding piping service wall to make sure of the narrow space to put some food products or seasoning.

Then doing a simple box shelving for the portable oven like the diagram I did for you below:

hope this help!




Attached thumbnail(s)
Attached Image
Oklahoma
post Jun 8 2021, 11:11 PM

-
*****
Junior Member
878 posts

Joined: Mar 2020
Hi sifu interior designers, if I want to achieve exactly like the pics below, how much need ya? Including the floor and ceiling..kitchen also model the same..900 sqft condo, 3 bedrooms..

user posted image
user posted image
user posted image

This post has been edited by Oklahoma: Jun 8 2021, 11:13 PM
TSehwee
post Jun 18 2021, 06:10 PM

Value Our Living Spaces!
*****
Junior Member
790 posts

Joined: Sep 2013
From: Selangor


QUOTE(ChildInParadise @ May 23 2021, 01:15 AM)
Hi ehwee, thanks for your selflessly sharing here.

May I seek your view on the layout below?

1. I would like to do a bar island for kitchen, but doing a L shape I have no idea where my fridge to put.

If I do a double vertical shape is it too narrow for the walkway for main entrance and kitchen?

2. Any idea to utilise this area? Haha feng shui say cannot open door directly see balcony, anything I can do here?

3. The layout is a bit weird, there is no allowance to build in shoe rack at the entrance, if I put a shoe rack here will it seem weird?

user posted image
user posted image
user posted image
*
after analysis about your concern on fungshui to block the direct view of balcun=ony from main entrance and also the space around the existing kitchen area, this is what I will suggest you to arrange the furniture.

I think you can consider merging the dining and kitchen area into one multi activities zone. Thus, you can have dining table next to a small island counter and then place all kitchen cabinet and full height cabinet for storage on the right wall.

With this space planning, you can ensure your home won't feel tight and also an uninterrupt walking flow around these areas.

Cheers!





Attached image(s)
Attached Image
kenloh7
post Jun 19 2021, 05:35 PM

Casual
***
Junior Member
414 posts

Joined: Feb 2008
From: Penang


Hi ehwee and guys,

Need some advise pertaining to what kind of light (downlight or spotlight) i should use for my bathroom. My bathroom is 6x10ft, and I plan to put the lights like below effect.

May I know how many pcs, the light position, what kind of light, and how many watt or lumen per pc? My initial plan is to put 2x 12W downlight, and 1x 10W spotlight for the toilet bowl area.

This is my bathroom.

» Click to show Spoiler - click again to hide... «


And I hope i can make it as below.
» Click to show Spoiler - click again to hide... «


This post has been edited by kenloh7: Jun 19 2021, 05:36 PM
EmEiHech
post Jun 20 2021, 10:06 PM

New Member
*
Newbie
5 posts

Joined: Sep 2014
Hi guys, got a question on lighting. Currently my room's lighting is wall lighting on top of wardrobe (marked yellow) and not that bright. Going to have a full height built in wardrobe at the place and would like to get your advice for new lighting points in the room notworthy.gif


This post has been edited by EmEiHech: May 13 2023, 02:33 PM
idkihavenoidealol
post Jun 22 2021, 02:12 PM

Getting Started
**
Junior Member
112 posts

Joined: Oct 2020
Hi ehwee,

I'm currently selecting fan size for all my rooms, and there are some calculation and consideration in the photo below.

user posted image

Do you think it's correct? Pls share your opinion and recommendation, thanks in advance. And I have few questions:

1) The living room is quite small (but it's open to walkway or dining), I'm considering placing fan in the middle of the LR without considering walkway since sofa is in it. By the calculation, I should buy a small fan (i.e. ~42" fan), is it ok to put small fan in the LR?

2) Based on guide online, usually recommended space between wall and fan blade is 1m, but most of the room I leave 600mm (~2ft), is this acceptable spacing?

3) Should I put small fan (42") for R2?

This post has been edited by idkihavenoidealol: Jun 22 2021, 02:15 PM
TSehwee
post Jun 23 2021, 06:28 PM

Value Our Living Spaces!
*****
Junior Member
790 posts

Joined: Sep 2013
From: Selangor


QUOTE(atyy88 @ May 26 2021, 06:30 PM)
Hi Ehwee,

Seek your professional advice for my new house's wet kitchen.

1. There are two pillars/beams in my wet kitchen. I made a complaint to the developer and they claimed that it is as per drawing. If that's the case then the architect is really failed. I've never seen such in a kitchen.
2. The width of kitchen top from the left pillar to window is deeper compare to the right side. Again, thanks to the architect.

Do you have any idea how to hide the beam? Especially the left side one. I don't know where to install my cooking hood and hob now.

user posted imageuser posted image
user posted image
*
Hi, it is really an unthoughtful design layout from the developer I will also said.

I will suggest you to remove the left portion of existing counter and redo a new L shape and full height cabinet to cater for more practical cooking area.

You will need to remove the existing window on the left and do a new window for sufficient natural light on the cooking area.

Hope this help!






Attached image(s)
Attached Image
TSehwee
post Jun 23 2021, 06:30 PM

Value Our Living Spaces!
*****
Junior Member
790 posts

Joined: Sep 2013
From: Selangor


QUOTE(kenloh7 @ Jun 19 2021, 05:35 PM)
Hi ehwee and guys,

Need some advise pertaining to what kind of light (downlight or spotlight) i should use for my bathroom. My bathroom is 6x10ft, and I plan to put the lights like below effect.

May I know how many pcs, the light position, what kind of light, and how many watt or lumen per pc? My initial plan is to put 2x 12W downlight, and 1x 10W spotlight for the toilet bowl area.

This is my bathroom.

» Click to show Spoiler - click again to hide... «


And I hope i can make it as below.
» Click to show Spoiler - click again to hide... «

*
this bathroom size is not big, so I would say your plan of having 2x 12W downlight, and 1x 10W spotlight for the toilet bowl area is sufficient.

if you have a concealed light behind the mirror cabinet will be even better!
TSehwee
post Jul 1 2021, 06:52 PM

Value Our Living Spaces!
*****
Junior Member
790 posts

Joined: Sep 2013
From: Selangor


QUOTE(Ssyy33 @ Jun 8 2021, 03:35 PM)
Hi Ehwee & Guys,

I need some suggestion for the kitchen, dinning area and master bedroom orientation.

What will be the best orientation for the kitchen design as the area is quite small and yard is too small for stove allocation.

I'm also thinking to have either island or dinning table only or both. But I'm afraid it will be super tight if having both.

Besides that, any suggestion for master bedroom orientation as the air-con point provided above the wardrobe area as per floor plan rclxub.gif

*It is empty unit.
**All lighting and fan point is not planned yet. Those in picture are points provided by developer.

Hope this could help others as well.  biggrin.gif
user posted image
*
Due the width of the kitchen and dining space, I will suggest you put the island ideas aside, as island needs more space for walkway and seating zone area it.

In order to maximize the storage units to solve the constraints on small kitchen areas, I suggest you can do a full height 450mm depth cabinet in front of bedroom 3 wall. You can do a concealed door into the bedroom 3 for better look if needed.

As for master bedroom, the aircon unit can be relocated to the bathroom wall, yet you will need to consult air con contractor to survey the existing ceiling structure to double check the relocating possibility.

Here is the layout I suggest for you, cheers!




Attached thumbnail(s)
Attached Image
celciuz
post Jul 5 2021, 10:19 PM

10k Club
********
All Stars
14,033 posts

Joined: Nov 2004
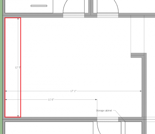
I would like to have display/storage space at my living hall. This wall is about 12.5' wide, 15' tall. Tried to fit a cabinet there, but it seems rather odd cause it looks pretty "short" and incomplete compared to the wall.

15' cabinet is going to be rather costly and I need a tall ladder to get to the top laugh.gif like harry potter library. Wanted the cabinet to be display/feature cabinet... also thinking if I should just partition all the way to the top.

Thank you very much in advance!

user posted image

user posted image

user posted image

28 Pages « < 20 21 22 23 24 > » Top
 

Change to:
| Lo-Fi Version
0.0265sec    0.36    6 queries    GZIP Disabled
Time is now: 30th November 2025 - 05:50 PM