Welcome Guest ( Log In | Register )

48 Pages « < 41 42 43 44 45 > » Bottom

Outline · [ Standard ] · Linear+

Renovations renovation cost

views
     
sonerin
post Dec 10 2016, 09:33 AM

Look at all my stars!!
*******
Senior Member
8,739 posts

Joined: Aug 2009
You need architects to draw up the second floor and submit for majlis perbandaran for approval. Well usually the entire ground will be damage because most likely need to build new column reinforce. Staircase is another part which is major work.
reggaejazz
post Jan 3 2017, 03:54 PM

New Member
*
Junior Member
45 posts

Joined: Aug 2012
Hi everyone,

Newbie in renovation here.

Just bought a house in USJ3 (1.5 story). Current floor plan on First Attachment.
Attached Image
Attached Image

Figured that the toilets are way too small so I was thinking of hacking the walls between Bath 1 and Bath 2 to combine it as one toilet. And I would want to have another bathroom (for guest) somewhere around the wet area.

1. Current house had already performed extension to the back. But I find that the extended area have very low ceiling. (slopped ceilling). I was thinking of building increasing the height of the building and subsequently building a platform at the top. (some sort like a back balcony to place my washer and dryer).

2. Current 1st floor (attic) has a wall which I planned to hack and move the water tank out to the back balcony. (so to make the attic bigger) and perform wood laminating for the whole attic.

3. Other major works including leveling the front porch and extending the beams to the extreme left.

May I know how much would the above cost? A ball park figure would help. My initial budget is RM100k. But my gut feeling is telling me thats not enough. cry.gif

Any ideas which are more budget conscious.. please feel free to comment. icon_question.gif

This post has been edited by reggaejazz: Feb 2 2017, 04:38 PM
tlcm5229
post Jan 21 2017, 11:59 AM

Getting Started
**
Junior Member
56 posts

Joined: Jan 2017
Hi Guys,

I am doing my budgetary cost for my house renovation at puchong.
Appreciate if anyone can quote me as below,

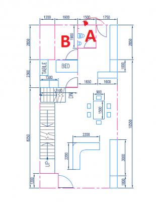
1. Hack the wall of ground floor toilet at A position and move toilet to B position. Redo new tiles for toilet at position B.
(including moving basin and toilet seat)
2. Shift door as per attachment.
3. Window at origin location B shift to A location as toilet no need to have window.
4. Plaster ceiling for whole house. Flat type for all except double layer at living room.

Please give me breakdown cost if possible. biggrin.gif Attached Image
sonerin
post Jan 21 2017, 08:11 PM

Look at all my stars!!
*******
Senior Member
8,739 posts

Joined: Aug 2009
QUOTE(tlcm5229 @ Jan 21 2017, 11:59 AM)
Hi Guys,

I am doing my budgetary cost for my house renovation at puchong.
Appreciate if anyone can quote me as below,

1. Hack the wall of ground floor toilet at A position and move toilet to B position. Redo new tiles for toilet at position B.
    (including moving basin and toilet seat)
2.  Shift door as per attachment.
3.  Window at origin location B shift to A location as toilet no need to have window.
4. Plaster ceiling for whole house. Flat type for all except double layer at living room.

Please give me breakdown cost if possible.  biggrin.gif Attached Image
*
For item 1-3 that will roughly cost 15k to 18k. For plaster ceiling is less than 10k for whole house
teatreeoil
post Jan 23 2017, 02:29 PM

New Member
*
Junior Member
23 posts

Joined: Jan 2017
Hi, i am looking to renovate a terrace house corner into this design, around 1100 sqft. I have to hack everything inside and rebuild into something similar like this. What will be the cost roughly? Thank you.
https://www.habitat-my.com/house-renovation...ghao-architects
Eng_Tat
post Jan 23 2017, 09:30 PM

Look at all my stars!!
*******
Senior Member
2,215 posts

Joined: Nov 2007
From: Cheras, KL.


Hi all a very good day, would like to know that what is the rough estimation to extend car porch/balcony by 8ftx22+22 (LxW/2 units) with upper level concrete roof *=+8ft total upper roof is 16 ft concrete.

need remove both upper and lower awnings.

lower level they will need 3 footings + 3 pillars + 3x8ft+1x44ft beams
upper will need 6 pillars + 3x16ft+2x44ft beams + 2 wall (8ft by 8ft LxH)
also do both need premix concrete grade 25?

Also anyone know is the rules correct for MPPG (pasir gudang) if its correct that the pillar must be 7ft from the gate is for above renovation?

or 2nd option is i am just doing the upper floor
erecting both side wall with 3 pillars(1 in adjoining house) and 1 beams (44ft) for concrete roof (aka like cap)

the main objective is to make full used of the balcony, where i want to combine both units of balcony. thanks all
ps. attach pic for imagination smile.gif


Attached thumbnail(s)
Attached Image
SUSbg12
post Jan 25 2017, 01:56 PM

Getting Started
**
Junior Member
165 posts

Joined: Jul 2016


QUOTE(brahblah @ Dec 9 2016, 02:24 PM)
Hi All,

Can you guys help comment on the quote for a 1160sq ft property.

2 bedrooms, 2 toilets, Wet & Dry Kitchen, Living Room, and Dining area.

[attachmentid=8236515]
*
Price looks reasonable to me...

which location ?
SUSbg12
post Jan 25 2017, 02:09 PM

Getting Started
**
Junior Member
165 posts

Joined: Jul 2016


QUOTE(newaythem3 @ Jul 16 2016, 11:39 PM)
Maybe you can try to contact this contractor that I using previously. his expertise may able to help you.
beside that he provide you free Site visit and you may ask him your questions/inquiry.

you may visit to his website www.jinsoorenovation.com
*
i am also planning to do simple reno at putra heights.
is price , workmanship satisfactory?
XCloudz
post Jan 26 2017, 01:46 PM

Casual
***
Junior Member
323 posts

Joined: Jul 2005
From: Subang Jaya


I plan to have a renovation in my upcoming double storey compact house. Existing stair ase removed by the owner and sealed the staircase hole.

Looking for a budget and compact setup, mayb a spiral staircase. Anyone can advice on the cost?
ziqzaqmonkey
post Jan 30 2017, 08:39 PM

New Member
*
Newbie
2 posts

Joined: Oct 2012
From: Selangor


QUOTE(teatreeoil @ Jan 23 2017, 03:29 PM)
Hi, i am looking to renovate a terrace house corner into this design, around 1100 sqft. I have to hack everything inside and rebuild into something similar like this. What will be the cost roughly? Thank you.
https://www.habitat-my.com/house-renovation...ghao-architects
*
Are you still interested regarding this?
tlcm5229
post Jan 31 2017, 08:18 PM

Getting Started
**
Junior Member
56 posts

Joined: Jan 2017
QUOTE(tlcm5229 @ Jan 21 2017, 11:59 AM)
Hi Guys,

I am doing my budgetary cost for my house renovation at puchong.
Appreciate if anyone can quote me as below,

1. Hack the wall of ground floor toilet at A position and move toilet to B position. Redo new tiles for toilet at position B.
    (including moving basin and toilet seat)
2.  Shift door as per attachment.
3.  Window at origin location B shift to A location as toilet no need to have window.
4. Plaster ceiling for whole house. Flat type for all except double layer at living room.

Please give me breakdown cost if possible.  biggrin.gif Attached Image
*
Any contractor can quote me?
ziqzaqmonkey
post Feb 1 2017, 09:36 PM

New Member
*
Newbie
2 posts

Joined: Oct 2012
From: Selangor


QUOTE(tlcm5229 @ Jan 31 2017, 09:18 PM)
Any contractor can quote me?
*
Do you have a specific budget you're working around with?
mhisyam6
post Feb 2 2017, 09:41 AM

Casual
***
Junior Member
444 posts

Joined: Jan 2012


Please find my brother's quotation as below :
QUOTE(tlcm5229 @ Jan 21 2017, 11:59 AM)
Hi Guys,

I am doing my budgetary cost for my house renovation at puchong.
Appreciate if anyone can quote me as below,

1. Hack the wall of ground floor toilet at A position and move toilet to B position. Redo new tiles for toilet at position B.
    (including moving basin and toilet seat)
2.  Shift door as per attachment.
3.  Window at origin location B shift to A location as toilet no need to have window.
Total 1-3 = RM14040
4. Plaster ceiling for whole house. Flat type for all except double layer at living room. RM9890

Please give me breakdown cost if possible.  biggrin.gif Attached Image
*
Additional cost RM2000-RM3000 may required if based on actual plan. You may need to arrange meeting with my brother to do measurement and inspection.

Total Renovation = RM23,930~

You may contact and Whatapps him at
Khairi
0136610245
(Jerung Power Enterprise)

This post has been edited by mhisyam6: Feb 2 2017, 09:42 AM
darkddly
post Feb 2 2017, 03:35 PM

Casual
***
Junior Member
432 posts

Joined: Jan 2007
From: i can haz cheezburger
Hi guys, I just bought an old subsale house and need to renovate it,
Was quoted as below for the wet kitchen part, measurement around 22' x 13'

1. Demolish Old Wall, Roofing & Floor Platform : RM1,500
2.Floor Anchor + Pillar + Roof Beam + Cement Works + 4' x 8' Aluminium Window + Piping Floor Platform + Wall Tiles + Table Top 20' + Roofing + Anti Theft Door + Backyard Steel Stairs : RM38,000

Overpriced or?
If yes, anyone can intro contractor or give me quotation, thanks.

Rough sketch as below.
» Click to show Spoiler - click again to hide... «

tlcm5229
post Feb 2 2017, 07:27 PM

Getting Started
**
Junior Member
56 posts

Joined: Jan 2017
QUOTE(ziqzaqmonkey @ Feb 1 2017, 09:36 PM)
Do you have a specific budget you're working around with?
*
Honestly i don't have any idea how much it will cost.
So need any contractor here to give me budget price before i decide to go or not. Thanks
clavenk
post Feb 4 2017, 11:20 AM

New Member
*
Junior Member
41 posts

Joined: Nov 2005
Can some one give me a rough estimation for rebuilding a house for this size need how much. Current house single story to double story.

user posted image
okhui26
post Feb 16 2017, 03:30 AM

Getting Started
**
Junior Member
147 posts

Joined: Oct 2006


Hi All,

plaster ceiling for whole house (22 x80), how much will it cost?

Many Thanks.
amirolzaris
post Feb 16 2017, 03:35 AM

Getting Started
**
Junior Member
68 posts

Joined: Jan 2012



currently im doing exactly project as u mention above, the house is 15x55 old one,extend all as u said,wan site visit come semenyih,call me 0199167060
mafa2801
post Feb 17 2017, 11:23 AM

Enthusiast
*****
Senior Member
765 posts

Joined: Jan 2016
QUOTE(amirolzaris @ Feb 16 2017, 03:35 AM)
currently im doing exactly project as u mention above, the house is 15x55 old one,extend all as u said,wan site visit come semenyih,call me 0199167060
*
share pic rclxms.gif
amirolzaris
post Feb 18 2017, 09:19 PM

Getting Started
**
Junior Member
68 posts

Joined: Jan 2012



QUOTE(mafa2801 @ Feb 17 2017, 10:23 AM)
share pic  rclxms.gif
*
i try post in this post already,butcannot out pic zzz

48 Pages « < 41 42 43 44 45 > » Top
 

Change to:
| Lo-Fi Version
0.0300sec    0.20    6 queries    GZIP Disabled
Time is now: 6th December 2025 - 08:15 AM