Welcome Guest ( Log In | Register )

Outline · [ Standard ] · Linear+

 Renovation Step by Step, share some of my experience

views
     
TSaloha_90
post Sep 29 2018, 01:59 PM, updated 3 months ago

Getting Started
**
Junior Member
156 posts

Joined: Dec 2017


Renovation how to start should start with hacking wall after this extend house stick tiles or before hacking do the wiring work ?

bellow got a reference photo to renovation guide

Attached Image
TSaloha_90
post Oct 1 2018, 11:08 AM

Getting Started
**
Junior Member
156 posts

Joined: Dec 2017


QUOTE(Jacobsoon7928 @ Sep 29 2018, 02:30 PM)
Depends on your request and situation.
If staying inside, mostly is done extend only hack.
If not staying inside, contractor will suggest which flow will be better for running the work. 😊 ( personal opinion.)
*
If not staying inside sure same extend wall with roof then just hack internal wall , if hack wall 1st then just extend rain day house sure will be flood
TSaloha_90
post Oct 1 2018, 11:37 AM

Getting Started
**
Junior Member
156 posts

Joined: Dec 2017


I will share this house progress from day 1 to done

Renovation day 1 hacking trees .

Attached Image

Attached Image

Attached Image
TSaloha_90
post Oct 2 2018, 02:06 PM

Getting Started
**
Junior Member
156 posts

Joined: Dec 2017


Renovation day 2 # digging 3 feet to bottom to real mud
# square 3 feet x 3 feet base with Reinforced concrete
# Pillar cement with steel rod

Attached Image

Attached Image

Attached Image

Attached Image

Attached Image


TSaloha_90
post Oct 3 2018, 02:51 PM

Getting Started
**
Junior Member
156 posts

Joined: Dec 2017


Renovation day 3
# built reinforced concrete base

Attached Image

Attached Image

Attached Image
RVN10
post Oct 3 2018, 04:08 PM

Getting Started
**
Junior Member
185 posts

Joined: May 2007
follow
Tan&tan
post Oct 3 2018, 05:51 PM

Enthusiast
*****
Junior Member
786 posts

Joined: May 2018
Follow ....... want to tear down and rebuilt too . May I know size and location and cost thanks
TSaloha_90
post Oct 6 2018, 04:09 PM

Getting Started
**
Junior Member
156 posts

Joined: Dec 2017


QUOTE(Tan&tan @ Oct 3 2018, 05:51 PM)
Follow ....... want to tear down and rebuilt too . May I know size and location and cost thanks
*
sure please check your pm .
TSaloha_90
post Oct 9 2018, 10:09 AM

Getting Started
**
Junior Member
156 posts

Joined: Dec 2017


Renovation day 4
# built reinforced pillar

Attached Image

Attached Image

Attached Image

Feifeikon
post Oct 11 2018, 09:57 AM

Casual
***
Junior Member
490 posts

Joined: Oct 2015
do you do retail shop ?

This post has been edited by Feifeikon: Oct 11 2018, 09:59 AM
TSaloha_90
post Oct 13 2018, 09:40 AM

Getting Started
**
Junior Member
156 posts

Joined: Dec 2017


QUOTE(Feifeikon @ Oct 11 2018, 09:57 AM)
do you do retail shop ?
*
sure we do, please check your pm .
ktfong
post Oct 14 2018, 05:50 AM

Getting Started
**
Junior Member
72 posts

Joined: Aug 2012
do u work in kota kemuning or bukit rimau?
looking for contractors for renovations
ktfong
post Oct 14 2018, 05:50 AM

Getting Started
**
Junior Member
72 posts

Joined: Aug 2012
do u work in kota kemuning or bukit rimau?
looking for contractors for renovations
TSaloha_90
post Oct 15 2018, 05:22 PM

Getting Started
**
Junior Member
156 posts

Joined: Dec 2017


QUOTE(ktfong @ Oct 14 2018, 05:50 AM)
do u work in kota kemuning or bukit rimau?
looking for contractors for renovations
*
please check your pm .
TSaloha_90
post Oct 15 2018, 05:25 PM

Getting Started
**
Junior Member
156 posts

Joined: Dec 2017


Renovation day 5
# built brick wall

Attached Image


TSaloha_90
post Oct 23 2018, 10:15 AM

Getting Started
**
Junior Member
156 posts

Joined: Dec 2017


Renovation day 6
# continue built brick wall

Attached Image

Attached Image

Attached Image

Attached Image

This post has been edited by aloha_90: Oct 23 2018, 10:16 AM
TSaloha_90
post Oct 24 2018, 10:37 AM

Getting Started
**
Junior Member
156 posts

Joined: Dec 2017


Renovation day 7
# start structure roofing

Attached Image

Attached Image
Vincy8925
post Oct 24 2018, 10:41 AM

Getting Started
**
Junior Member
221 posts

Joined: Jul 2010
Parked for future reference

TSaloha_90
post Oct 30 2018, 09:46 AM

Getting Started
**
Junior Member
156 posts

Joined: Dec 2017


Renovation day 8

# cover tiles roofing and overflow .


Attached Image

Attached Image

Attached Image

Attached Image
Memi
post Oct 30 2018, 03:44 PM

New Member
*
Junior Member
48 posts

Joined: Sep 2007
From: United Shah Alam



follow, can provide the size and cost .
TSaloha_90
post Oct 31 2018, 10:13 AM

Getting Started
**
Junior Member
156 posts

Joined: Dec 2017


QUOTE(Memi @ Oct 30 2018, 03:44 PM)
follow, can provide the size and cost .
*
Attached Image

price done all the extension include tiling work and grill , window , built in cabinet will post and share while done , and Quartstone kitchen top
total 130k .
TSaloha_90
post Nov 1 2018, 01:11 PM

Getting Started
**
Junior Member
156 posts

Joined: Dec 2017


Renovation day 9

# built inner structure wall for bath room .
# relocate Aircone .

Attached Image

Attached Image

Attached Image

Attached Image
TSaloha_90
post Nov 3 2018, 03:59 PM

Getting Started
**
Junior Member
156 posts

Joined: Dec 2017


Renovation day 10

# built inner structure -cement basement walls

Attached Image

Attached Image

Attached Image
TSaloha_90
post Nov 17 2018, 10:33 PM

Getting Started
**
Junior Member
156 posts

Joined: Dec 2017


Renovation day 11

# wiring work for lighting & switch

Attached Image Attached Image Attached Image
AyamBannedTwice
post Nov 18 2018, 03:35 PM

Getting Started
**
Junior Member
130 posts

Joined: Feb 2015


Park

This post has been edited by AyamBannedTwice: Nov 18 2018, 03:35 PM
TSaloha_90
post Nov 23 2018, 12:31 PM

Getting Started
**
Junior Member
156 posts

Joined: Dec 2017


Renovation day 12

# wiring work for new switch
# hacking existing wall


Attached Image

Attached Image

Attached Image

Attached Image
sleepybear
post Nov 24 2018, 06:34 AM

New Member
*
Newbie
16 posts

Joined: Jul 2018
hi bro aloha90, im quite new in house renovation.

do you apply for majlis perbandaran permission for your kitchen extension? just wondering if people need this.

pedagang
post Nov 24 2018, 06:49 AM

New Member
*
Junior Member
41 posts

Joined: Jan 2010


nice info TS, hopefully u can share the cost details
TSaloha_90
post Nov 26 2018, 09:59 AM

Getting Started
**
Junior Member
156 posts

Joined: Dec 2017


QUOTE(sleepybear @ Nov 24 2018, 06:34 AM)
hi bro aloha90, im quite new in house renovation.

do you apply for majlis perbandaran permission for your kitchen extension? just wondering if people need this.
*
yes we did . biggrin.gif
TSaloha_90
post Nov 26 2018, 10:00 AM

Getting Started
**
Junior Member
156 posts

Joined: Dec 2017


QUOTE(pedagang @ Nov 24 2018, 06:49 AM)
nice info TS, hopefully u can share the cost details
*
sure , please check your Pm . laugh.gif
sleepybear
post Nov 27 2018, 02:10 AM

New Member
*
Newbie
16 posts

Joined: Jul 2018
QUOTE(aloha_90 @ Nov 26 2018, 09:59 AM)
yes we did .  biggrin.gif
*
bro aloha_90, do you mind to share how much you pay for majlis perbandaran? expensive or not?
TSaloha_90
post Nov 30 2018, 12:48 PM

Getting Started
**
Junior Member
156 posts

Joined: Dec 2017


QUOTE(sleepybear @ Nov 27 2018, 02:10 AM)
bro aloha_90, do you mind to share how much you pay for majlis perbandaran? expensive or not?
*
It will depend on type of existing building, location and size of the building. not expensive bellow Rm 1200 .
Hornet
post Dec 1 2018, 05:12 PM

What?
*******
Senior Member
4,251 posts

Joined: Jan 2003
From: Malacca, Malaysia, Earth


Can pls share with me the total cost for the kitchen extension?
Include tiling, windows door etc for the extension section.

Thanks biggrin.gif
TSaloha_90
post Dec 4 2018, 10:11 AM

Getting Started
**
Junior Member
156 posts

Joined: Dec 2017


QUOTE(Hornet @ Dec 1 2018, 05:12 PM)
Can pls share with me the total cost for the kitchen extension?
Include tiling, windows door etc for the extension section.

Thanks biggrin.gif
*
sure please check your Pm .
TSaloha_90
post Dec 6 2018, 05:21 PM

Getting Started
**
Junior Member
156 posts

Joined: Dec 2017


Renovation day 13

# Bathroom Plumber
# cement slab

Attached Image

Attached Image

Attached Image

Attached Image
TSaloha_90
post Dec 13 2018, 09:59 AM

Getting Started
**
Junior Member
156 posts

Joined: Dec 2017


Renovation day 13

# main entrance door frame
# bathroom tiles
#cement table top


Attached Image

Attached Image

Attached Image

This post has been edited by aloha_90: Dec 13 2018, 09:59 AM
TSaloha_90
post Dec 17 2018, 11:46 AM

Getting Started
**
Junior Member
156 posts

Joined: Dec 2017


Renovation day 15

# tiling work
# bathroom tiles


Attached Image

Attached Image

Attached Image

Attached Image
TSaloha_90
post Dec 27 2018, 04:42 PM

Getting Started
**
Junior Member
156 posts

Joined: Dec 2017


Renovation day 14

# kitchen wall tiles half way done
# bathroom tiles 80%to be done

Attached Image

Attached Image

Attached Image

Attached Image
TSaloha_90
post Jan 4 2019, 03:08 PM

Getting Started
**
Junior Member
156 posts

Joined: Dec 2017


Renovation day 15

# kitchen wall tiles half way done
# car porch window and main door

Attached Image

Attached Image

Attached Image

Attached Image
J Cougar
post Jan 4 2019, 03:36 PM

New Member
*
Junior Member
12 posts

Joined: Nov 2012
QUOTE(aloha_90 @ Dec 17 2018, 11:46 AM)
Renovation day 15

# tiling work
# bathroom tiles
Attached Image

Attached Image

Attached Image

Attached Image
*
How much for concrete top? How many ft run?
TSaloha_90
post Jan 8 2019, 01:18 PM

Getting Started
**
Junior Member
156 posts

Joined: Dec 2017


QUOTE(J Cougar @ Jan 4 2019, 03:36 PM)
How much for concrete top? How many ft run?
*
RM 1200 concrete top , 14 feet .
TSaloha_90
post Jan 17 2019, 08:54 AM

Getting Started
**
Junior Member
156 posts

Joined: Dec 2017


Renovation day 16

# kitchen wall tiles done

Attached Image

Attached Image

Attached Image
TSaloha_90
post Jan 23 2019, 10:31 AM

Getting Started
**
Junior Member
156 posts

Joined: Dec 2017


Renovation day 17

# start plaster ceiling

Attached Image

Attached Image

Attached Image
TSaloha_90
post Jan 23 2019, 10:31 AM

Getting Started
**
Junior Member
156 posts

Joined: Dec 2017


Renovation day 17

#start plaster ceiling

Attached Image

Attached Image

Attached Image
TSaloha_90
post Feb 7 2019, 06:50 PM

Getting Started
**
Junior Member
156 posts

Joined: Dec 2017


Renovation day 18

#done plaster ceiling .

Attached Image

Attached Image

Attached Image
TSaloha_90
post Feb 12 2019, 11:50 AM

Getting Started
**
Junior Member
156 posts

Joined: Dec 2017


Renovation day 18

#floor tiles .

Attached Image

Attached Image

Attached Image
BeeBee00
post Feb 27 2019, 10:33 AM

New Member
*
Newbie
7 posts

Joined: Jul 2016
are you provide renovation work ?

This post has been edited by BeeBee00: Feb 27 2019, 10:35 AM
TSaloha_90
post Feb 27 2019, 10:37 AM

Getting Started
**
Junior Member
156 posts

Joined: Dec 2017


Renovation day 20

#Living Hall tiles
#plastr pillar

Attached Image

Attached Image

Attached Image
TSaloha_90
post Mar 11 2019, 10:43 AM

Getting Started
**
Junior Member
156 posts

Joined: Dec 2017




Renovation day 21

#Living Hall tiles done with cover canvas
#tiling kitchen area

Attached Image

Attached Image

Attached Image

This post has been edited by aloha_90: Mar 11 2019, 10:44 AM
Wenxuan2
post Mar 12 2019, 09:03 PM

New Member
*
Junior Member
29 posts

Joined: Apr 2013


Hi, been following your renovation journey! Keep the updates coming
TSaloha_90
post Mar 15 2019, 01:25 PM

Getting Started
**
Junior Member
156 posts

Joined: Dec 2017


QUOTE(Wenxuan2 @ Mar 12 2019, 09:03 PM)
Hi, been following your renovation journey! Keep the updates coming
*
sure , I will keep it up upload more renovate photo here ya . drool.gif
TSaloha_90
post Apr 4 2019, 02:14 PM

Getting Started
**
Junior Member
156 posts

Joined: Dec 2017


Renovation day 22


#done wall tiles
#done floor tiles


Attached Image

Attached Image

Attached Image

Attached Image

This post has been edited by aloha_90: Apr 4 2019, 02:14 PM
brianccg
post Apr 9 2019, 12:27 PM

Look at all my stars!!
*******
Senior Member
3,024 posts

Joined: Jan 2003


Nice. Do you mind to PM me your contact? I am going to start the renovation soon.
TSaloha_90
post Apr 16 2019, 10:11 AM

Getting Started
**
Junior Member
156 posts

Joined: Dec 2017


Renovation day 23


#done wall tiles
#done floor tiles
#done glass partition
#done painting
#done table top Quartstone


Attached Image

Attached Image

Attached Image

Attached Image

Attached Image
TSaloha_90
post Apr 29 2019, 04:55 PM

Getting Started
**
Junior Member
156 posts

Joined: Dec 2017


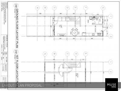
drawing proposal


#3D drawing
#Layout plan

Attached Image

Attached Image

Attached Image

Attached Image

Attached Image
TSaloha_90
post May 7 2019, 03:47 PM

Getting Started
**
Junior Member
156 posts

Joined: Dec 2017


another new project start work .

Extention for wet kitchen , and 2nd room , master room 3 layer banglo

Attached Image

Attached Image

Attached Image

Attached Image

Attached Image

This post has been edited by aloha_90: May 7 2019, 03:47 PM
TSaloha_90
post May 17 2019, 11:41 AM

Getting Started
**
Junior Member
156 posts

Joined: Dec 2017


days 2

#column footing

lok forward rclxms.gif

Attached Image

Attached Image

Attached Image

Attached Image

Attached Image

Attached Image

TSaloha_90
post May 21 2019, 05:51 PM

Getting Started
**
Junior Member
156 posts

Joined: Dec 2017


days 3

#plinth beam

Attached Image

Attached Image

Attached Image

Attached Image


Attached thumbnail(s)
Attached Image
xd7 P
post May 24 2019, 04:01 PM

New Member
*
Probation
2 posts

Joined: May 2019
hi, can share reno cost and someone to get renovation permit? tqvm!
TSaloha_90
post May 29 2019, 10:34 AM

Getting Started
**
Junior Member
156 posts

Joined: Dec 2017


QUOTE(xd7 @ May 24 2019, 04:01 PM)
hi, can share reno cost and someone to get renovation permit? tqvm!
*
sure , please check your pm .
TSaloha_90
post May 29 2019, 10:51 AM

Getting Started
**
Junior Member
156 posts

Joined: Dec 2017


days 2

#Reinforced concrete pillar

feel excited drool.gif

Attached Image

Attached Image

Attached Image

Attached Image

Attached Image
TSaloha_90
post Jun 9 2019, 03:57 PM

Getting Started
**
Junior Member
156 posts

Joined: Dec 2017


days 5

#Reinforced concrete plinth beam brows.gif


Attached Image

Attached Image

Attached Image

Attached Image
ssawkl
post Jun 15 2019, 05:11 PM

New Member
*
Newbie
40 posts

Joined: Oct 2018
Looking for contractor to work in usj area. Pls pm if interested. Thanks.

TSaloha_90
post Jun 19 2019, 04:43 PM

Getting Started
**
Junior Member
156 posts

Joined: Dec 2017


QUOTE(ssawkl @ Jun 15 2019, 05:11 PM)
Looking for contractor to work in usj area. Pls pm if interested. Thanks.
*
Please check your PM . cool2.gif
yanio9
post Jun 26 2019, 01:24 PM

Getting Started
**
Junior Member
77 posts

Joined: Feb 2007


hi do you do change of windows ?
TSaloha_90
post Jun 29 2019, 12:01 PM

Getting Started
**
Junior Member
156 posts

Joined: Dec 2017


QUOTE(yanio9 @ Jun 26 2019, 01:24 PM)
hi do you do change of windows ?
*
Yes please check your pm biggrin.gif
chae
post Jun 30 2019, 08:50 AM

Getting Started
**
Junior Member
103 posts

Joined: Feb 2008


Nice... Could share the cost for extension per square feet? looking for house extension 20x70 double story
TSaloha_90
post Jul 3 2019, 11:13 AM

Getting Started
**
Junior Member
156 posts

Joined: Dec 2017


days 6

#Reinforced concrete plinth beam
#1st floor Reinforced concrete connect plinth and slab
#pillar extension

Attached Image


Attached Image

Attached Image

Attached Image

Attached Image

Attached Image
TSaloha_90
post Jul 12 2019, 04:58 PM

Getting Started
**
Junior Member
156 posts

Joined: Dec 2017


days 7

#Reinforced concrete plinth beam 1st floor
#1st floor Reinforced concrete connect plinth and slab
#pillar extension

Attached Image

Attached Image

Attached Image

Attached Image

Attached Image
thoto
post Jul 19 2019, 09:34 AM

New Member
*
Newbie
9 posts

Joined: Oct 2017
Do you do sliding glass door? I have a studio. I am looking to do a sliding glass door. size estimated at 16feet x 8 feet. can you pm?

TSaloha_90
post Jul 25 2019, 04:37 PM

Getting Started
**
Junior Member
156 posts

Joined: Dec 2017


days 8

#Reinforced concrete pillar 1st floor extension bruce.gif


Attached Image

Attached Image

Attached Image

Attached Image

Attached Image
nexona88
post Jul 25 2019, 04:40 PM

The Royal Club Member
*********
All Stars
48,568 posts

Joined: Sep 2014
From: REality
waiting for the finishing touch.

want to see how beautiful the end products tongue.gif
TSaloha_90
post Jul 29 2019, 03:31 PM

Getting Started
**
Junior Member
156 posts

Joined: Dec 2017


QUOTE(nexona88 @ Jul 25 2019, 04:40 PM)
waiting for the finishing touch.

want to see how beautiful the end products tongue.gif
*
thank you for support , tongue.gif

days 9

#Reinforced concrete plinth 1st floor ceiling ,

Attached Image

Attached Image

Attached Image

Attached Image
sirkusignu P
post Jul 29 2019, 06:48 PM

New Member
*
Probation
2 posts

Joined: Jul 2019
Keep 'em coming man! Great inspiration!!
nexona88
post Jul 29 2019, 08:51 PM

The Royal Club Member
*********
All Stars
48,568 posts

Joined: Sep 2014
From: REality
Cool...
Keep posting 👍
TSaloha_90
post Aug 15 2019, 11:17 AM

Getting Started
**
Junior Member
156 posts

Joined: Dec 2017


QUOTE(nexona88 @ Jul 29 2019, 08:51 PM)
Cool...
Keep posting 👍
*
QUOTE(sirkusignu @ Jul 29 2019, 06:48 PM)
Keep 'em coming man! Great inspiration!!
*
Thank for support .

days 10

#Reinforced concrete plinth continuing ,
#cover rock cement
#musekitchen

Attached Image

Attached Image

Attached Image

Attached Image

Attached Image

Attached Image
TSaloha_90
post Aug 23 2019, 02:40 PM

Getting Started
**
Junior Member
156 posts

Joined: Dec 2017


Thank for support .

days 11

#Reinforced concrete slab done
#2nd floor yard dismantle glass fence
#hacking existing kitchen wall

Attached Image

Attached Image

Attached Image

Attached Image

Attached Image

Attached Image
TSaloha_90
post Aug 30 2019, 10:18 AM

Getting Started
**
Junior Member
156 posts

Joined: Dec 2017


days 12

#Reinforced concrete slab done .
#2nd Floor Building brick wall for daughter room .
#2nd Floor master room slab done .
#pillar + plinth beam + connected beam done .

Attached Image

Attached Image

Attached Image

Attached Image

Attached Image

Attached Image

Attached Image

Attached Image

Attached Image
TSaloha_90
post Sep 5 2019, 10:16 AM

Getting Started
**
Junior Member
156 posts

Joined: Dec 2017


days 13

#modify 2nd floor family hall .
#modify 2nd floor Roof terrace to daughter room
#modify maid room to part of wet kitchen


Attached Image

Attached Image

Attached Image

Attached Image

Attached Image

Attached Image

Attached Image
starcry73
post Sep 5 2019, 12:23 PM

New Member
*
Newbie
2 posts

Joined: Jul 2014
From: Petaling Jaya


Hi... I want to reno my house located in Puchong... Do you provide free quotation?
TSaloha_90
post Sep 10 2019, 09:34 AM

Getting Started
**
Junior Member
156 posts

Joined: Dec 2017


QUOTE(starcry73 @ Sep 5 2019, 12:23 PM)
Hi... I want to reno my house located in Puchong... Do you provide free quotation?
*
Please check your Pm rclxms.gif
marcus_bread
post Sep 11 2019, 04:02 PM

On my way
****
Junior Member
506 posts

Joined: May 2010
hi, do u do condominium?

TSaloha_90
post Sep 12 2019, 02:29 PM

Getting Started
**
Junior Member
156 posts

Joined: Dec 2017


QUOTE(marcus_bread @ Sep 11 2019, 04:02 PM)
hi, do u do condominium?
*
yes , Please check your Pm . biggrin.gif
TSaloha_90
post Sep 18 2019, 01:55 PM

Getting Started
**
Junior Member
156 posts

Joined: Dec 2017


days 14

#built brick wall for room
#built brick wall for kitchen
#built brick wall for 2nd floor room


Attached Image

Attached Image

Attached Image

Attached Image

Attached Image

Attached Image
TSaloha_90
post Sep 25 2019, 03:33 PM

Getting Started
**
Junior Member
156 posts

Joined: Dec 2017


days 15

#built fly ash brick bathroom for master bedroom 2
#relocate entrance for master bedroom 2
#redesign 2nd floor family hall


Attached Image

Attached Image

Attached Image

Attached Image

Attached Image
jackycrazy
post Sep 26 2019, 10:24 PM

Casual
***
Junior Member
302 posts

Joined: Nov 2010
Hi bro, looking for renovation at damansara area. Mind PM?
TSaloha_90
post Sep 30 2019, 04:10 PM

Getting Started
**
Junior Member
156 posts

Joined: Dec 2017


QUOTE(jackycrazy @ Sep 26 2019, 10:24 PM)
Hi bro, looking for renovation at damansara area. Mind PM?
*
please check your pm .
TSaloha_90
post Oct 2 2019, 10:08 AM

Getting Started
**
Junior Member
156 posts

Joined: Dec 2017


QUOTE(jackycrazy @ Sep 26 2019, 10:24 PM)
Hi bro, looking for renovation at damansara area. Mind PM?
*
days 16

#Skin coat ground floor wet kitchen
#Skin coat master bedroom 2
#skin coat interior wall

Attached Image

Attached Image

Attached Image

Attached Image

Attached Image

Attached Image

This post has been edited by aloha_90: Oct 2 2019, 10:12 AM
TSaloha_90
post Oct 11 2019, 09:38 AM

Getting Started
**
Junior Member
156 posts

Joined: Dec 2017


days 17

#Skin coat wet kitchen
#Skin coat master bedroom 2
#Skin coat exterior master bedroom 2

Attached Image

Attached Image

Attached Image

Attached Image

Attached Image

Attached Image

TSaloha_90
post Oct 22 2019, 11:52 AM

Getting Started
**
Junior Member
156 posts

Joined: Dec 2017


days 18

#Cover Swimming pool
#Cement Slab
#2rd floor external line design
#Cement Slab for kitchen corridor

Attached Image

Attached Image

Attached Image

Attached Image

Attached Image

Attached Image

Attached Image

Attached Image

Attached Image

This post has been edited by aloha_90: Oct 22 2019, 12:43 PM
TSaloha_90
post Nov 4 2019, 03:17 PM

Getting Started
**
Junior Member
156 posts

Joined: Dec 2017


days 19

#exterior line
#Cement Slab
#skin coat cement wall


Attached Image

Attached Image

Attached Image

Attached Image

Attached Image

Attached Image

Attached Image

Attached Image
TSaloha_90
post Nov 19 2019, 04:47 PM

Getting Started
**
Junior Member
156 posts

Joined: Dec 2017


days 20

#interior tiling work & plaster ceiling work
#bathroom cement slab
#skin coat all the extention area

Attached Image

Attached Image

Attached Image

Attached Image

Attached Image

Attached Image

Attached Image

Attached Image

This post has been edited by aloha_90: Nov 19 2019, 04:47 PM
jason5443
post Nov 19 2019, 06:35 PM

Getting Started
**
Junior Member
85 posts

Joined: Aug 2019
Did you help to get the housing plan approval from authority?
tony_mw
post Nov 19 2019, 11:57 PM

Getting Started
**
Junior Member
211 posts

Joined: May 2016


QUOTE(aloha_90 @ Sep 29 2018, 01:59 PM)
Renovation how to start should start with hacking wall after this extend house stick tiles or before hacking do the wiring work ?

bellow got a reference photo to renovation guide

Attached Image
*
Hi,

Wondering can you share me a detail charges for this renovation project?

Many Thanks
TSaloha_90
post Nov 21 2019, 11:19 AM

Getting Started
**
Junior Member
156 posts

Joined: Dec 2017


QUOTE(jason5443 @ Nov 19 2019, 06:35 PM)
Did you help to get the housing plan approval from authority?
*
sure brows.gif
TSaloha_90
post Nov 21 2019, 11:19 AM

Getting Started
**
Junior Member
156 posts

Joined: Dec 2017


QUOTE(tony_mw @ Nov 19 2019, 11:57 PM)
Hi,

Wondering can you share me a detail charges for this renovation project?

Many Thanks
*
yes , sure please check your pm . drool.gif
TSaloha_90
post Dec 9 2019, 05:44 PM

Getting Started
**
Junior Member
156 posts

Joined: Dec 2017


days 21

#Restructure plaster ceiling Design
#bathroom skin coat
#exterior cement slab
#concrete table for wet kitchen


Attached Image

Attached Image

Attached Image

Attached Image

Attached Image

Attached Image
TSaloha_90
post Dec 19 2019, 06:04 PM

Getting Started
**
Junior Member
156 posts

Joined: Dec 2017


days 22

#cement slab for side yard
#walk way for wet kitchen
#tiling work
#concrete table

Attached Image

Attached Image

Attached Image

Attached Image

Attached Image

Attached Image
UltimaKP
post Dec 26 2019, 11:28 PM

New Member
*
Junior Member
34 posts

Joined: Mar 2007


Wao very nice renovation, may I know the total cost? I have a corner house want to do expansion and renovation whole house. Thanks alot
TSaloha_90
post Dec 30 2019, 02:29 PM

Getting Started
**
Junior Member
156 posts

Joined: Dec 2017


QUOTE(UltimaKP @ Dec 26 2019, 11:28 PM)
Wao very nice renovation, may I know the total cost? I have a corner house want to do expansion and renovation whole house. Thanks alot
*
sure , please check your Pm . biggrin.gif
TSaloha_90
post Dec 31 2019, 05:39 PM

Getting Started
**
Junior Member
156 posts

Joined: Dec 2017


days 22

#cement slab cover swimming pool
#plaster ceiling living hall
#wet kitchen tiling work
#plaster ceiling for 2nd floor

Attached Image

Attached Image

Attached Image

Attached Image

Attached Image

Attached Image

Attached Image


Attached thumbnail(s)
Attached Image
exskool
post Jan 6 2020, 01:10 PM

New Member
*
Newbie
1 posts

Joined: Mar 2009
QUOTE(aloha_90 @ Dec 30 2019, 03:29 PM)
sure , please check your Pm .  biggrin.gif
*
Pls PM me as well. Tq!
TSaloha_90
post Jan 12 2020, 12:33 PM

Getting Started
**
Junior Member
156 posts

Joined: Dec 2017


QUOTE(exskool @ Jan 6 2020, 01:10 PM)
Pls PM me as well. Tq!
*
sure please check your pm.
TSaloha_90
post Jan 12 2020, 12:37 PM

Getting Started
**
Junior Member
156 posts

Joined: Dec 2017


days 24

tiling wok is the last 3rd process of the renovation .

#stick 2nd floor bathroom tiles
#skin coat extension wall
#plaster ceiling for entrance

Attached Image

Attached Image

Attached Image

Attached Image

Attached Image

Attached Image
TSaloha_90
post Jan 21 2020, 11:35 AM

Getting Started
**
Junior Member
156 posts

Joined: Dec 2017


days 25

#cement roof slab
#kitchen cement top
#installation wardrobe

Attached Image

Attached Image

Attached Image

Attached Image


TSaloha_90
post Feb 6 2020, 04:19 PM

Getting Started
**
Junior Member
156 posts

Joined: Dec 2017


days 26

# tempered glass handle
# dry kitchen glass fix window
# external roof slab

Attached Image

Attached Image

Attached Image

Attached Image

Attached Image

Attached Image

Attached Image
TSaloha_90
post Feb 25 2020, 01:38 PM

Getting Started
**
Junior Member
156 posts

Joined: Dec 2017


days 27

# exterior inconsistant tiles
# car porch cement slab extension

Attached Image

Attached Image

Attached Image

Attached Image

Attached Image

Attached Image
TSaloha_90
post Mar 12 2020, 05:41 PM

Getting Started
**
Junior Member
156 posts

Joined: Dec 2017


days 28

# backyard plastering wall
# plaster Light through
# entrance for patio
# locate main entrance pillar

Attached Image

Attached Image

Attached Image

Attached Image

Attached Image
TSaloha_90
post Mar 20 2020, 11:21 AM

Getting Started
**
Junior Member
156 posts

Joined: Dec 2017


days 29

# painting plaster ceiling
# pebble wash stone
# backyard garden tiles

Attached Image

Attached Image

Attached Image

Attached Image

Attached Image

Attached Image
TSaloha_90
post Apr 1 2020, 11:33 AM

Getting Started
**
Junior Member
156 posts

Joined: Dec 2017


days 30

# installing cabinet
# exterior plastering
# 2nd floor bathroom done icon_rolleyes.gif

Attached Image

Attached Image

Attached Image

Attached Image

Attached Image

Attached Image

TSaloha_90
post Apr 10 2020, 01:13 PM

Getting Started
**
Junior Member
156 posts

Joined: Dec 2017


days 31

# installing cabinet
# exterior garden fence
# plastering touch up

Attached Image

Attached Image

[attachmentid=10468125

Attached Image

Attached Image

Attached Image


Attached thumbnail(s)
Attached Image
TSaloha_90
post Apr 20 2020, 11:04 AM

Getting Started
**
Junior Member
156 posts

Joined: Dec 2017


days 32

# laid the garden tiles
# entrance main door
# shower screen

Attached Image

Attached Image

Attached Image

Attached Image

Attached Image
TSaloha_90
post Apr 29 2020, 11:00 AM

Getting Started
**
Junior Member
156 posts

Joined: Dec 2017


days 33

# backyard awning
# Deco garden plant
# plaster ceiling done

Attached Image

Attached Image

Attached Image

Attached Image

Attached Image

Attached Image
TSaloha_90
post May 8 2020, 12:19 PM

Getting Started
**
Junior Member
156 posts

Joined: Dec 2017


days 34

# kitchen cabinet marble quarzstone
# Tv granite panel
# mirror for bathroom 4

Attached Image

Attached Image

Attached Image

Attached Image

Attached Image

Attached Image
Snoy
post May 10 2020, 06:33 PM

~SIMPLE~
******
Senior Member
1,203 posts

Joined: Jan 2003


TS, you can resume renovation work now?
if yes, please PM me your contact for a small renovation project in Puchong.
TSaloha_90
post May 12 2020, 04:36 PM

Getting Started
**
Junior Member
156 posts

Joined: Dec 2017


QUOTE(Snoy @ May 10 2020, 06:33 PM)
TS, you can resume renovation work now?
if yes, please PM me your contact for a small renovation project in Puchong.
*
yes we did
ok sure , please check your pm .
Skywing1981
post May 24 2020, 06:06 AM

Enthusiast
*****
Senior Member
717 posts

Joined: Jun 2011


very nice way of sharing the story of a renovation. i'm deeply impressed smile.gif

can you share your contact as i'm looking for renovation work for my new double-storey house? thank!
TSaloha_90
post Jun 2 2020, 03:31 PM

Getting Started
**
Junior Member
156 posts

Joined: Dec 2017


QUOTE(Skywing1981 @ May 24 2020, 06:06 AM)
very nice way of sharing the story of a renovation. i'm deeply impressed smile.gif

can you share your contact as i'm looking for renovation work for my new double-storey house? thank!
*
sure please check your pm . rolleyes.gif
TSaloha_90
post Jun 2 2020, 03:50 PM

Getting Started
**
Junior Member
156 posts

Joined: Dec 2017


days 34

# patio done
# wardrobe
# wet kitchen
cabinet by muse kitchen

Attached Image

Attached Image

Attached Image

Attached Image

Attached Image

Attached Image
LivingLife
post Jun 2 2020, 11:46 PM

Casual
***
Junior Member
406 posts

Joined: May 2006
From: :)


Hi bro,

Would like to know the cost for major reno of an old double storey 20x80 size. Can you pm me your contact?
KingRyan
post Jun 3 2020, 09:11 PM

Getting Started
**
Junior Member
208 posts

Joined: Sep 2009
Hi TS, can PM me contact for full renovation single storey 22x70?
TSaloha_90
post Jun 16 2020, 03:21 PM

Getting Started
**
Junior Member
156 posts

Joined: Dec 2017


QUOTE(KingRyan @ Jun 3 2020, 09:11 PM)
Hi TS, can PM me contact for full renovation single storey 22x70?
*
QUOTE(LivingLife @ Jun 2 2020, 11:46 PM)
Hi bro,

Would like to know the cost for major reno of an old double storey 20x80 size. Can you pm me your contact?
*
sure please check your PM .
Hatikva
post Jun 16 2020, 03:38 PM

New Member
*
Junior Member
35 posts

Joined: Aug 2013
Hi TS. I was wondering if this is the correct place to ask for the estimated cost to renovate a brand new 24x80 intermediate double-storey terrace house. I would like to renovate the following:

I am planning to renovate my new double storey house soon and would prefer a main contractor to manage all or most of the following:

1. Kitchen cabinet (L-shaped with a simple island)
2. Storage cabinet at entrance area
3. Glass awning for front porch (partial) and backyard
4. Some modification to backyard metal door
5. Plaster ceiling
6. Installation of lights and fans
7. Grill (two 4-panel sliding doors, front door, one 3-panel window, two 2-panel windows, 4 bathroom windows)
8. Paint work for some walls only
9. Master bedroom L-shaped wardrobe

If budget and design permit, I might consider building a small loft at my family area upstairs as well.

Thank you.
loui
post Jun 16 2020, 09:34 PM

Enthusiast
*****
Junior Member
795 posts

Joined: Mar 2005
From: Seri Kembangan / Kota Bharu
Can PM me your contact detail

Plan to extend my house in seri kembangan


TSaloha_90
post Jun 17 2020, 02:57 PM

Getting Started
**
Junior Member
156 posts

Joined: Dec 2017


after done segar Perdana banglo , he recommend his friend to me located at
Cheras segar perdana as well
" transform single storey to double storey "
today going to share this project biggrin.gif


Attached Image

Attached Image

Attached Image

Attached Image

Attached Image
tripleA+
post Jun 21 2020, 07:26 AM

On my way
****
Junior Member
523 posts

Joined: Jul 2013
TS quotation for double storey damansara /pj area tq
TSaloha_90
post Jun 25 2020, 11:34 AM

Getting Started
**
Junior Member
156 posts

Joined: Dec 2017


days 11

#cement slab
#1st floor brick wall
#staire case


Attached Image

Attached Image

Attached Image

Attached Image

Attached Image
cynthusc
post Jun 26 2020, 01:24 PM

On my way
****
Junior Member
503 posts

Joined: Nov 2006
Hi can I find out how much for the renovation to add storey to a single storey?

TSaloha_90
post Jul 13 2020, 09:27 AM

Getting Started
**
Junior Member
156 posts

Joined: Dec 2017


days 12

#1st floor door metal frame
#1st floor brick wall
#roof tiles

Attached Image

Attached Image

Attached Image

Attached Image

Attached Image
bLue86
post Jul 13 2020, 12:18 PM

New Member
*
Newbie
1 posts

Joined: Nov 2013


hi do you do reno at semenyih?
grill + plaster ceiling + wiring + wall up wet kitchen of 5ft with roof

please pm if you able to do.
TSaloha_90
post Jul 24 2020, 02:44 PM

Getting Started
**
Junior Member
156 posts

Joined: Dec 2017


QUOTE(bLue86 @ Jul 13 2020, 12:18 PM)
hi do you do reno at semenyih?
grill + plaster ceiling + wiring + wall up wet kitchen of 5ft with roof

please pm if you able to do.
*
ok please check your pm . biggrin.gif
gyugu
post Jul 24 2020, 08:32 PM

New Member
*
Junior Member
38 posts

Joined: Mar 2011
May I know the rough esimate to change single storey to double storey for 880 sqf house?

TSaloha_90
post Jul 27 2020, 12:05 PM

Getting Started
**
Junior Member
156 posts

Joined: Dec 2017


days 13

#1st floor brick wall for bedroom
#1st floor corridor for brick wall
#roof tiles and drainage

Attached Image

Attached Image

Attached Image

Attached Image
zstan
post Jul 30 2020, 03:45 PM

10k Club
********
All Stars
15,856 posts

Joined: Nov 2007
From: Zion



Hello. Can PM me what I can get for a budget between RM10k-15k for a 862sf 3 bedroom 2 bathrooms apartment. thanks!
TSaloha_90
post Aug 3 2020, 04:22 PM

Getting Started
**
Junior Member
156 posts

Joined: Dec 2017


QUOTE(zstan @ Jul 30 2020, 03:45 PM)
Hello. Can PM me what I can get for a budget between RM10k-15k for a 862sf 3 bedroom 2 bathrooms apartment. thanks!
*
sure please check your PM .
TSaloha_90
post Aug 15 2020, 10:23 AM

Getting Started
**
Junior Member
156 posts

Joined: Dec 2017


days 14

# exterior garden fence
# roof tiles
# water tank

Attached Image

Attached Image
undefined

Attached Image

Attached Image
haohau
post Aug 16 2020, 09:36 AM

New Member
*
Junior Member
8 posts

Joined: Nov 2010
Hi Aloha, can PM me your contact, plan to do renovation for my bare unit double story terrace
TSaloha_90
post Aug 21 2020, 02:29 PM

Getting Started
**
Junior Member
156 posts

Joined: Dec 2017


QUOTE(haohau @ Aug 16 2020, 09:36 AM)
Hi Aloha, can PM me your contact, plan to do renovation for my bare unit double story terrace
*
sure please check your PM . biggrin.gif
TSaloha_90
post Sep 7 2020, 11:17 AM

Getting Started
**
Junior Member
156 posts

Joined: Dec 2017


days 15

# cement wall
# external wall
# kitchen brick wall

Attached Image

Attached Image

Attached Image

Attached Image

Attached Image
Melawati
post Sep 10 2020, 12:38 PM

New Member
*
Junior Member
30 posts

Joined: Apr 2014
For this renovation above (SS to DS), with a budget of RM150K-200K possible (Without any ID or furniture) ?
TSaloha_90
post Sep 18 2020, 09:28 AM

Getting Started
**
Junior Member
156 posts

Joined: Dec 2017


QUOTE(Melawati @ Sep 10 2020, 12:38 PM)
For this renovation above (SS to DS), with a budget of RM150K-200K possible (Without any ID or furniture) ?
*
yes biggrin.gif
TSaloha_90
post Sep 28 2020, 12:14 PM

Getting Started
**
Junior Member
156 posts

Joined: Dec 2017


days 16

# front reinforced cement concrete plinth beam and footing
# internal cement wall

Attached Image

Attached Image

Attached Image

Attached Image
TSaloha_90
post Oct 7 2020, 03:15 PM

Getting Started
**
Junior Member
156 posts

Joined: Dec 2017


days 17

# skin coat wall
# External CF

Attached Image

Attached Image

Attached Image

Attached Image
Onizukas
post Oct 7 2020, 05:59 PM

New Member
*
Junior Member
28 posts

Joined: Aug 2007


Good Evening Sir, May i have your contact? I need to get quote for my house renovations.
TSaloha_90
post Oct 13 2020, 04:29 PM

Getting Started
**
Junior Member
156 posts

Joined: Dec 2017


QUOTE(Onizukas @ Oct 7 2020, 05:59 PM)
Good Evening Sir, May i have your contact? I need to get quote for my house renovations.
*
sure please check your pm . biggrin.gif
TSaloha_90
post Nov 3 2020, 12:36 PM

Getting Started
**
Junior Member
156 posts

Joined: Dec 2017


days 18

# kitchen wall tiles
# External skin coat

Attached Image

Attached Image

Attached Image

Attached Image

boyslikeboys
post Nov 4 2020, 03:52 AM

Casual
***
Junior Member
463 posts

Joined: Oct 2012


Pls pm contact. Am keen to understand the cost for extension for a corner ds. Thanks.
TSaloha_90
post Nov 16 2020, 05:01 PM

Getting Started
**
Junior Member
156 posts

Joined: Dec 2017


QUOTE(boyslikeboys @ Nov 4 2020, 03:52 AM)
Pls pm contact. Am keen to understand the cost for extension for a corner ds. Thanks.
*
ok please check your pm . biggrin.gif
TSaloha_90
post Nov 16 2020, 05:04 PM

Getting Started
**
Junior Member
156 posts

Joined: Dec 2017


days 19

# kitchen wall tiles
# main entrance security door

Attached Image

Attached Image

Attached Image

Attached Image
TSaloha_90
post Nov 26 2020, 09:51 AM

Getting Started
**
Junior Member
156 posts

Joined: Dec 2017


days 20

# kitchen wall tiles done
# front fence

Attached Image

Attached Image

Attached Image

Attached Image
TSaloha_90
post Dec 12 2020, 07:51 AM

Getting Started
**
Junior Member
156 posts

Joined: Dec 2017


days 21

# painting work
# tiling work done

Attached Image

Attached Image

Attached Image

Attached Image

Attached Image
TSaloha_90
post Dec 26 2020, 11:51 AM

Getting Started
**
Junior Member
156 posts

Joined: Dec 2017


days 22

# exterior painting work done
# tiling work done

Attached Image

Attached Image

Attached Image

Attached Image

Attached Image
seong22368
post Jan 5 2021, 11:36 AM

New Member
*
Junior Member
22 posts

Joined: Apr 2008
do you provide service to make kitchen cement table top?

This post has been edited by seong22368: Jan 5 2021, 11:37 AM
TSaloha_90
post Jan 13 2021, 10:45 AM

Getting Started
**
Junior Member
156 posts

Joined: Dec 2017


QUOTE(seong22368 @ Jan 5 2021, 11:36 AM)
do you provide service to make kitchen cement table top?
*
sure please check you pm ya
TSaloha_90
post Jan 19 2021, 01:18 PM

Getting Started
**
Junior Member
156 posts

Joined: Dec 2017


days 1

# Flooring protection
# prepare drawing 1st

Attached Image

Attached Image

Attached Image

Attached Image
william85
post Jan 23 2021, 09:56 PM

New Member
*
Junior Member
30 posts

Joined: Sep 2008
Hi, can pm your contact? Planning to do extension on my new house.
Siao_Lang
post Jan 27 2021, 09:57 PM

Casual
***
Junior Member
454 posts

Joined: Aug 2013
QUOTE(aloha_90 @ May 29 2019, 10:51 AM)
days 2

#Reinforced concrete pillar

feel excited  drool.gif

Attached Image

Attached Image

Attached Image

Attached Image

Attached Image
*
Hi there... How much is it to build swimming pool like that?
magicnox
post Feb 18 2021, 11:44 AM

Getting Started
**
Junior Member
57 posts

Joined: Jul 2012
Hi, pls pm your contact. Thank you smile.gif
TSaloha_90
post Feb 18 2021, 09:02 PM

Getting Started
**
Junior Member
156 posts

Joined: Dec 2017


QUOTE(Siao_Lang @ Jan 27 2021, 09:57 PM)
Hi there... How much is it to build swimming pool like that?
*
this swimming pool not we do , this swimming pool wan to built roughly 60k to 75k
TSaloha_90
post Feb 18 2021, 09:02 PM

Getting Started
**
Junior Member
156 posts

Joined: Dec 2017


QUOTE(magicnox @ Feb 18 2021, 11:44 AM)
Hi, pls pm your contact. Thank you smile.gif
*
sure please check your pm biggrin.gif
alien9
post Feb 19 2021, 07:31 AM

These stars mean nothing
*******
Senior Member
3,030 posts

Joined: Dec 2009
From: Jelatek / Wangsa Maju


PM your contact. Need to renovate my house which includes removal (and building) a column.
TSaloha_90
post Mar 4 2021, 10:18 PM

Getting Started
**
Junior Member
156 posts

Joined: Dec 2017


QUOTE(alien9 @ Feb 19 2021, 07:31 AM)
PM your contact. Need to renovate my house which includes removal (and building) a column.
*
sure please check your pm
josephcvh
post Mar 5 2021, 10:17 AM

New Member
*
Junior Member
42 posts

Joined: Mar 2010
PM ur contact. Might need to do small renovation on old single storey house toilet/bathroom.
TSaloha_90
post Mar 24 2021, 11:44 AM

Getting Started
**
Junior Member
156 posts

Joined: Dec 2017


# wiring
# change some tiles because kitchen add on socket

Attached Image

Attached Image

Attached Image
TSaloha_90
post Mar 24 2021, 11:45 AM

Getting Started
**
Junior Member
156 posts

Joined: Dec 2017


QUOTE(josephcvh @ Mar 5 2021, 10:17 AM)
PM ur contact. Might need to do small renovation on old single storey house toilet/bathroom.
*
sure please check your Pm biggrin.gif
nikkimendoza P
post Mar 24 2021, 08:34 PM

New Member
*
Probation
5 posts

Joined: Sep 2020
Tmn Melawati, 22' X 80'. Reno : kitchen extension, 1 master bedroom, 4 rooms, 3 bathrooms, porch, all tiles, new plumbing, new wiring, plaster ceiling. How much is the budget. Please pm ya.
Ecomajestic909 P
post Mar 25 2021, 05:41 PM

New Member
*
Probation
41 posts

Joined: Jan 2021


Hi Aloha_90

Please PM you details... I am keen to engage your services... not huge project..
Minor kitchen works and building a patio at the side of the house...

waayynnee
post Mar 26 2021, 12:49 AM

New Member
*
Junior Member
48 posts

Joined: Feb 2017
QUOTE(aloha_90 @ Mar 24 2021, 11:44 AM)
# wiring
# change some tiles because kitchen add on socket

Attached Image

Attached Image

Attached Image
*
Please pm me your number too. Thanks.
yyee
post Apr 25 2021, 08:32 PM

New Member
*
Junior Member
12 posts

Joined: Nov 2008
Hi

Can u pls pm me? Looking contractor for wall hacking. Thanks
geekystef
post Apr 28 2021, 06:57 AM

Getting Started
**
Junior Member
287 posts

Joined: Oct 2018
-- Deleted --

This post has been edited by geekystef: Jul 15 2022, 11:23 AM
TSaloha_90
post May 4 2021, 09:18 PM

Getting Started
**
Junior Member
156 posts

Joined: Dec 2017


QUOTE(geekystef @ Apr 28 2021, 06:57 AM)
May I have your contact details? Thanks.
*
QUOTE(yyee @ Apr 25 2021, 08:32 PM)
Hi

Can u pls pm me? Looking contractor for wall hacking. Thanks
*
sure please check your PM . biggrin.gif
TSaloha_90
post Jun 16 2021, 03:41 PM

Getting Started
**
Junior Member
156 posts

Joined: Dec 2017


# painting
# gypsum board partition

Attached Image

Attached Image

Attached Image
Devil4life
post Jun 16 2021, 05:01 PM

Enthusiast
*****
Senior Member
986 posts

Joined: Sep 2011
Double post

This post has been edited by Devil4life: Jun 16 2021, 05:04 PM
Devil4life
post Jun 16 2021, 05:03 PM

Enthusiast
*****
Senior Member
986 posts

Joined: Sep 2011
QUOTE(aloha_90 @ Jun 16 2021, 03:41 PM)
# painting
# gypsum board partition

Attached Image

Attached Image

Attached Image
*
Mind to know how much sqft is this? I have a condo about 892 sqft. Can PM me estimated price for the following:

1. Plaster ceiling c/w lighting point and ceiling fan
2. Partial kitchen cabinet
3. Master bedroom Wardrobe
4. Built in TV console cabinet
5. Stainless steel grill
6. Glass partition between kitchen and dining


xavlith
post Jun 22 2021, 11:28 PM

New Member
*
Newbie
11 posts

Joined: Dec 2011
Can PM me your contact? want to enquire some rates for my service apartment..
TSaloha_90
post Jul 1 2021, 11:19 AM

Getting Started
**
Junior Member
156 posts

Joined: Dec 2017


QUOTE(xavlith @ Jun 22 2021, 11:28 PM)
Can PM me your contact? want to enquire some rates for my service apartment..
*
QUOTE(Devil4life @ Jun 16 2021, 05:03 PM)
Mind to know how much sqft is this? I have a condo about 892 sqft. Can PM me estimated price for the following:

1. Plaster ceiling c/w lighting point and ceiling fan
2. Partial kitchen cabinet
3. Master bedroom Wardrobe
4. Built in TV console cabinet
5. Stainless steel grill
6. Glass partition between kitchen and dining
*
sure please check your pm ,
We don provide quotation in msg , any question please ask here to share everyone .
Devil4life
post Jul 1 2021, 12:34 PM

Enthusiast
*****
Senior Member
986 posts

Joined: Sep 2011
QUOTE(aloha_90 @ Jul 1 2021, 11:19 AM)
sure please check your pm ,
We don provide quotation in msg , any question please ask here to share everyone .
*
If so can share the rough budget based on the items that I listed and based on the house size?

So I can start planning for budget as estimate to receive key only Q2 next year.
TSaloha_90
post Jul 13 2021, 12:14 PM

Getting Started
**
Junior Member
156 posts

Joined: Dec 2017


# done cabinet
# done painting rclxms.gif


Attached Image

Attached Image

Attached Image

Attached Image

This post has been edited by aloha_90: Jul 13 2021, 12:15 PM
TSaloha_90
post Jul 13 2021, 12:17 PM

Getting Started
**
Junior Member
156 posts

Joined: Dec 2017


QUOTE(Devil4life @ Jul 1 2021, 12:34 PM)
If so can share the rough budget based on the items that I listed and based on the house size?

So I can start planning for budget as estimate to receive key only Q2 next year.
*
you should search interior renovation package on Facebook more accurate biggrin.gif
damos_csui
post Jul 17 2021, 09:54 PM

Getting Started
**
Junior Member
142 posts

Joined: Nov 2008
QUOTE(aloha_90 @ Dec 26 2020, 11:51 AM)
days 22

# exterior painting work done
# tiling work done

Attached Image

Attached Image

Attached Image

Attached Image

Attached Image
*
can you please pm the costing details for this project?
wanted to start budgeting for my future house renovation..
thanks.
rebecca_choo
post Aug 9 2021, 04:53 PM

Getting Started
**
Junior Member
103 posts

Joined: Sep 2018
Can share your contact? Thanks
spiritz09
post Aug 12 2021, 10:04 PM

New Member
*
Junior Member
19 posts

Joined: Feb 2015


subscribe this thread first notworthy.gif searching for a subsale landed unit and may need renovation in sooner time thumbup.gif
TSaloha_90
post Sep 15 2021, 10:51 AM

Getting Started
**
Junior Member
156 posts

Joined: Dec 2017


# extention kitchen
# bathroom renovation
# car porch extention

Attached Image

Attached Image

Attached Image

Attached Image
mlc
post Sep 21 2021, 09:34 PM

New Member
*
Newbie
5 posts

Joined: Mar 2012
Can provide quotation for kitchen extension for 22x75 house, kitchen cabinets, wardrobes, plumbing, wiring and roofing for 20+yrs house.
antzie
post Sep 24 2021, 10:11 PM

New Member
*
Newbie
8 posts

Joined: May 2008
Hi Aloha, can PM me your contact, plan to do renovation for my bare unit condo.

drbionicle
post Oct 1 2021, 12:37 PM

New Member
*
Junior Member
35 posts

Joined: Nov 2009
Hi Sir - can share your contacts? Planning minor renovation for my DS at Sri Gombak
Veronicaooi1122
post Oct 3 2021, 03:05 AM

Getting Started
**
Junior Member
159 posts

Joined: Aug 2021
QUOTE(drbionicle @ Oct 1 2021, 12:37 PM)
Hi Sir - can share your contacts? Planning minor renovation for my DS at Sri Gombak
*
Why stay so far ?
TSaloha_90
post Oct 4 2021, 09:23 AM

Getting Started
**
Junior Member
156 posts

Joined: Dec 2017


QUOTE(mlc @ Sep 21 2021, 09:34 PM)
Can provide quotation for kitchen extension for 22x75 house, kitchen cabinets, wardrobes, plumbing, wiring and roofing for 20+yrs house.
*
any question please ask here can share together .

TSaloha_90
post Oct 4 2021, 09:25 AM

Getting Started
**
Junior Member
156 posts

Joined: Dec 2017


QUOTE(drbionicle @ Oct 1 2021, 12:37 PM)
Hi Sir - can share your contacts? Planning minor renovation for my DS at Sri Gombak
*
QUOTE(antzie @ Sep 24 2021, 10:11 PM)
Hi Aloha, can PM me your contact, plan to do renovation for my bare unit condo.
*
Please check Pm , but any question please share here we can discuss and share together
queckzzz
post Oct 4 2021, 10:20 PM

New Member
*
Newbie
1 posts

Joined: Feb 2015
hi, whats the est price for (prefer separate for each item)


-extension back of house about 8-10ft length (kitchen area), need to re-tile?
-relocation of toilet to backend corner(now at middle, beside kitchen, plumbing linked with toilet at 1st floor), need to re-tile?
-remove/restructure pillar at car porch (pillar at middle)
-hack front gate fencing for bigger gate

house is basic unit, damansara damai 20x65ft

Thanks
TSaloha_90
post Nov 8 2021, 11:24 AM

Getting Started
**
Junior Member
156 posts

Joined: Dec 2017


QUOTE(queckzzz @ Oct 4 2021, 10:20 PM)
hi, whats the est price for (prefer separate for each item)
-extension back of house about 8-10ft length (kitchen area), need to re-tile?
-relocation of toilet to backend corner(now at middle, beside kitchen, plumbing linked with toilet at 1st floor), need to re-tile?
-remove/restructure pillar at car porch (pillar at middle)
-hack front gate fencing for bigger gate

house is basic unit, damansara damai 20x65ft

Thanks
*
for this work , you should prepare 80k for this . biggrin.gif

TSaloha_90
post Nov 8 2021, 11:33 AM

Getting Started
**
Junior Member
156 posts

Joined: Dec 2017


# lighting installation
# painting work
# cabinet work

Attached Image

Attached Image

Attached Image

Attached Image
yuen300
post Nov 8 2021, 06:53 PM

Getting Started
**
Junior Member
163 posts

Joined: Nov 2008
user posted image

How much to do the awning and required any renovation permit?
Taintedfury
post Nov 19 2021, 10:30 AM

Getting Started
**
Junior Member
88 posts

Joined: Apr 2012


Hi, would u mind estimate the cost for:
1. Change roof tile for a 20x60 double storey (including those water proofing etc.)
2. Re-pipe from the meter to the house and replace a new water tank? (previous contractor screw up by not connecting the pipe to water tank and we always face no water issue)
Thanks
FeelSoGood P
post Nov 23 2021, 10:12 AM

New Member
*
Probation
16 posts

Joined: Sep 2021
Good day to all!

Would like to enquiry about estimate cost to add 2 window ( 1st floor and 2nd floor) as similar following design:-

user posted image

TQVM!Attached Image


Attached thumbnail(s)
Attached Image
Thankful88 P
post Nov 24 2021, 10:10 PM

New Member
*
Probation
1 posts

Joined: Nov 2021


Hi Aloha, mind to share your contact?

Thanks
pentapower
post Mar 23 2022, 01:48 PM

New Member
*
Newbie
1 posts

Joined: Mar 2013
Hi Bro, can share your contact ? Thank you
TSaloha_90
post May 20 2022, 04:06 PM

Getting Started
**
Junior Member
156 posts

Joined: Dec 2017


QUOTE(pentapower @ Mar 23 2022, 01:48 PM)
Hi Bro, can share your contact ? Thank you
*
sure please check you pm .
tpeisze P
post May 23 2022, 04:47 PM

New Member
*
Probation
30 posts

Joined: Nov 2020
Hi,

Can you advise the cost to extend wet kitchen for 10ft for 20x85 terrace house?
Location = Puchong
RagingCandy
post May 25 2022, 09:51 PM

Getting Started
**
Junior Member
205 posts

Joined: Sep 2014
What is the minimum length of counter top for cooking?
RagingCandy
post May 25 2022, 09:51 PM

Getting Started
**
Junior Member
205 posts

Joined: Sep 2014
-duplicate-

This post has been edited by RagingCandy: May 25 2022, 09:51 PM
kayef
post Jul 8 2022, 09:43 AM

Getting Started
**
Junior Member
173 posts

Joined: Jan 2003
Hi,

Can estimate how much to prepare to:

1) Knock down a wall and relocate wiring?
2) Knock down partial wall and replace with glass sliding door?

Attached images for reference.

user posted image


user posted image

This post has been edited by kayef: Jul 8 2022, 09:45 AM
TSaloha_90
post Feb 27 2023, 09:42 AM

Getting Started
**
Junior Member
156 posts

Joined: Dec 2017


QUOTE(kayef @ Jul 8 2022, 09:43 AM)
Hi,

Can estimate how much to prepare to:

1) Knock down a wall and relocate wiring?
2) Knock down partial wall and replace with glass sliding door?

Attached images for reference.

user posted image
user posted image
*
1.hack a wall relocate wiring cost and disposal cost 5k
2.partial wall replace sliding door cost 15k
jasperng
post Feb 28 2023, 11:06 AM

- Eminent Leader -
******
Senior Member
1,264 posts

Joined: Feb 2006
From: KL, Malaysia



Hi

looking for contractor for wet work (extension and possibility hacking) and carpentry contractor for cabinets. New house 22x75

How can i get quote from you ? do you do both ?

This post has been edited by jasperng: Feb 28 2023, 11:06 AM
TSaloha_90
post Mar 3 2023, 11:52 PM

Getting Started
**
Junior Member
156 posts

Joined: Dec 2017


QUOTE(jasperng @ Feb 28 2023, 11:06 AM)
Hi

looking for contractor for wet work (extension and possibility hacking)  and carpentry contractor for cabinets.  New house 22x75

How can i get quote from you ? do you do both ?
*
yes please check PM
TSaloha_90
post Mar 10 2023, 02:01 PM

Getting Started
**
Junior Member
156 posts

Joined: Dec 2017


new site start work rclxms.gif



Attached Image

Attached Image

Attached Image

Attached Image
akutaksempurna
post Mar 13 2023, 01:13 PM

New Member
*
Junior Member
47 posts

Joined: Aug 2008


Hello bosses,

I am looking to buy a subsale property. Just wondering if I can get a rough quotation for below work..

a) re-wiring whole house
b) change plumbing + change design to new toilet

Its an old piece of house 3 stories around 1100sqft total. 3 rooms + 2 bathroom

Sorry if this is no proper thread to ask 🙏 and thank you
sbd18
post Mar 21 2023, 11:26 AM

Casual
***
Junior Member
300 posts

Joined: Jan 2003
From: Petaling Jaya


Hi there,

Am planning to buy a subsale property, 22x75 at Subang area.

So far am thinking below is needed. Perhaps more when finally getting the house.

3 phase wiring
Piping redone with pump
Extension front & back
Kitchen redone
Roof for porch
Lighting
Additional water tank
Ceiling check & upgrade

Please PM for quote/advise/etc.

Thank you.
TSaloha_90
post Mar 26 2023, 02:44 PM

Getting Started
**
Junior Member
156 posts

Joined: Dec 2017


QUOTE(akutaksempurna @ Mar 13 2023, 01:13 PM)
Hello bosses,

I am looking to buy a subsale property. Just wondering if I can get a rough quotation for below work..

a) re-wiring whole house
b) change plumbing + change design to new toilet

Its an old piece of house 3 stories around 1100sqft total. 3 rooms + 2 bathroom

Sorry if this is no proper thread to ask 🙏 and thank you
*
no problem ,

rewiring around 5 to 7k in the market exclude the new lighting and socket ,
change plumbing + change design toilet ?
do you mean the plumbing from main water to water tank & kitchen taps ?
redesign toilet do you mean change tiles ?
Thrust
post Mar 27 2023, 10:57 AM

Power To The People!!!
*******
Senior Member
3,761 posts

Joined: Oct 2005


Hi, I am looking to do the things below.. Roughly how much will it cost? Landed house 24x70

1) Kitchen extension
2) Kitchen cabinet
3) Lighting, fans & plaster ceiling
4) Grille
5) Porch cover water proofing
6) Repair wall cracks & repaint house interior
7) Cover car porch garden area with cement / tiles

This post has been edited by Thrust: Mar 27 2023, 10:59 AM
red123
post Mar 29 2023, 01:52 PM

Getting Started
**
Junior Member
206 posts

Joined: May 2007
Can I know if I want to redo the flooring (presently is old type SPC like in the photo) for the cheapest way possible in this property (mine is another unit but identical), what is the cheapest way to do it? Like SPC, Epoxy etc. For all 2 and half floor?

https://www.propertyguru.com.my/property-li...ruddin-36955423

Thank you.
TSaloha_90
post Mar 30 2023, 01:30 PM

Getting Started
**
Junior Member
156 posts

Joined: Dec 2017


QUOTE(Thrust @ Mar 27 2023, 10:57 AM)
Hi, I am looking to do the things below.. Roughly how much will it cost? Landed house 24x70

1) Kitchen extension
2) Kitchen cabinet
3) Lighting, fans & plaster ceiling
4) Grille
5) Porch cover water proofing
6) Repair wall cracks & repaint house interior
7) Cover car porch garden area with cement / tiles
*
do you have floor plan can attach here ?
TSaloha_90
post Mar 30 2023, 01:40 PM

Getting Started
**
Junior Member
156 posts

Joined: Dec 2017


QUOTE(aloha_90 @ Mar 10 2023, 02:01 PM)
new site start work  rclxms.gif
Attached Image

Attached Image

Attached Image

Attached Image
*
sharing some picture biggrin.gif

Attached Image

Attached Image

Attached Image

Attached Image
Thrust
post Mar 30 2023, 07:27 PM

Power To The People!!!
*******
Senior Member
3,761 posts

Joined: Oct 2005


QUOTE(aloha_90 @ Mar 30 2023, 01:30 PM)
do you have floor plan can attach here ?
*
Here you go... Do update me..

user posted image
TSaloha_90
post Apr 6 2023, 02:58 PM

Getting Started
**
Junior Member
156 posts

Joined: Dec 2017


QUOTE(red123 @ Mar 29 2023, 01:52 PM)
Can I know if I want to redo the flooring (presently is old type SPC like in the photo) for the cheapest way possible in this property (mine is another unit but identical), what is the cheapest way to do it? Like SPC, Epoxy etc. For all 2 and half floor?

https://www.propertyguru.com.my/property-li...ruddin-36955423

Thank you.
*
Epoxy flooring is usually cheaper than tiled flooring 50 to 80%
XweienX
post Apr 6 2023, 04:23 PM

Casual
***
Junior Member
455 posts

Joined: Aug 2012


hi sifus, my subsale home 2nd floor and stairs is currently using parquet (medium sized ones, not the tiny kitkat kind).

When I inquired about SPC flooring, was suggested to remove all parquet and flatten the concrete flooring, instead of SPC on top of the parquet in case got water go in next time and it expands.

May I know how much this work would cost? Just the removal and flattening the concrete floor.
TSaloha_90
post Apr 11 2023, 10:03 AM

Getting Started
**
Junior Member
156 posts

Joined: Dec 2017


QUOTE(XweienX @ Apr 6 2023, 04:23 PM)
hi sifus, my subsale home 2nd floor and stairs is currently using parquet (medium sized ones, not the tiny kitkat kind).

When I inquired about SPC flooring, was suggested to remove all parquet and flatten the concrete flooring, instead of SPC on top of the parquet in case got water go in next time and it expands.

May I know how much this work would cost? Just the removal and flattening the concrete floor.
*
labour fees in the market 4k to 5k in the market include disposal bin x 1 .
but depend the area and your house is landed right ?
WaCKy-Angel
post Apr 13 2023, 11:46 AM

PeACe~~
*********
All Stars
21,963 posts

Joined: Dec 2004
From: KL



QUOTE(aloha_90 @ Apr 11 2023, 10:03 AM)
labour fees in the market 4k to 5k in the market include disposal bin x 1 .
but depend the area and your house is landed right ?
*
Hi please check PM
XweienX
post Apr 13 2023, 03:10 PM

Casual
***
Junior Member
455 posts

Joined: Aug 2012


QUOTE(aloha_90 @ Apr 11 2023, 10:03 AM)
labour fees in the market 4k to 5k in the market include disposal bin x 1 .
but depend the area and your house is landed right ?
*
yup yup, is landed house. Wa quite expensive just for removal. sad.gif
Guess I'll stick to the original parquet then.
snimple
post Apr 13 2023, 03:19 PM

Getting Started
**
Junior Member
53 posts

Joined: Mar 2006
QUOTE(XweienX @ Apr 13 2023, 03:10 PM)
yup yup, is landed house. Wa quite expensive just for removal.  sad.gif
Guess I'll stick to the original parquet then.
*
yup for my case i ended up doing spc on top of my original parquet the will put 1 layer of underlay or something before installing the spc

alot more cheaper than strip everything to concrete
TSaloha_90
post Apr 23 2023, 09:08 AM

Getting Started
**
Junior Member
156 posts

Joined: Dec 2017


QUOTE(XweienX @ Apr 13 2023, 03:10 PM)
yup yup, is landed house. Wa quite expensive just for removal.  sad.gif
Guess I'll stick to the original parquet then.
*
ya labour high demand , worker 1 day salary average Rm150 some area RM 200 a day
now cincai cincai renovate also need more then 10k tongue.gif


Feifeikon
post May 4 2023, 10:49 PM

Casual
***
Junior Member
490 posts

Joined: Oct 2015
QUOTE(aloha_90 @ Mar 30 2023, 01:40 PM)
sharing some picture biggrin.gif

Attached Image

Attached Image

Attached Image

Attached Image
*
good sharing.

This post has been edited by Feifeikon: May 4 2023, 10:52 PM
DragonReine
post May 5 2023, 08:00 AM

just another dog on the Internet
*******
Senior Member
2,610 posts

Joined: Aug 2011
- wrong thread -

This post has been edited by DragonReine: May 5 2023, 08:43 AM
TSaloha_90
post May 10 2023, 02:35 PM

Getting Started
**
Junior Member
156 posts

Joined: Dec 2017


QUOTE(Feifeikon @ May 4 2023, 10:49 PM)
good sharing.
*
Thank you thumbup.gif
TSaloha_90
post May 22 2023, 09:58 AM

Getting Started
**
Junior Member
156 posts

Joined: Dec 2017


magnet track light installation and eyeball installation

Attached Image

Attached Image

Attached Image

Attached Image
jasperng
post May 22 2023, 10:39 AM

- Eminent Leader -
******
Senior Member
1,264 posts

Joined: Feb 2006
From: KL, Malaysia



hi any one got the proper process of renovation ?

Lightning desig and socket placement must be done as first step before any renovation work right ?
TSaloha_90
post May 22 2023, 06:54 PM

Getting Started
**
Junior Member
156 posts

Joined: Dec 2017


QUOTE(jasperng @ May 22 2023, 10:39 AM)
hi any one got the proper process of renovation ?

Lightning desig and socket placement must be done as first step before any renovation work right ?
*
yaya you have to look for light designer design the light .
thinkgoodpositive
post May 24 2023, 08:25 AM

Getting Started
**
Junior Member
196 posts

Joined: Sep 2015
QUOTE(aloha_90 @ May 22 2023, 09:58 AM)
magnet track light installation and eyeball installation

Attached Image

Attached Image

Attached Image

Attached Image
*
Nice!. Is the magnet track pre-installed by the plaster ceiling guy when doing plaster or by the wiring men when doing plaster ceiling? One lighting /wiring point can connect for how long the track?
Thanks.
zianaim
post May 27 2023, 12:35 PM

New Member
*
Newbie
2 posts

Joined: Apr 2014


Hi, Can you give an estimation cost for wetwork to extend 18X24ft space for laundry+living area? For single storey, normal roofing without slab. Extension will include pad footing/piling, wall and roof. Hacking to flow the drain from laundry to adjacent bathroom. Wiring, Window, tile and door are exluded. Thank you.

This post has been edited by zianaim: May 27 2023, 12:36 PM
jasperng
post May 27 2023, 08:42 PM

- Eminent Leader -
******
Senior Member
1,264 posts

Joined: Feb 2006
From: KL, Malaysia



QUOTE(aloha_90 @ May 22 2023, 06:54 PM)
yaya you have to look for light designer design the light .
*
Any recommended lightning expert ?
TSaloha_90
post May 29 2023, 12:08 PM

Getting Started
**
Junior Member
156 posts

Joined: Dec 2017


QUOTE(thinkgoodpositive @ May 24 2023, 08:25 AM)
Nice!. Is the magnet track pre-installed by the plaster ceiling guy when doing plaster or by the wiring men when doing plaster ceiling? One lighting /wiring point can connect for how long the track?
Thanks.
*
ya install by plaster ceiling worker , 4000 mm track for 1 lighting point
TSaloha_90
post May 29 2023, 12:11 PM

Getting Started
**
Junior Member
156 posts

Joined: Dec 2017


QUOTE(jasperng @ May 27 2023, 08:42 PM)
Any recommended lightning expert ?
*
you can find the feifeikon in Lowyat forum
TSaloha_90
post Jun 7 2023, 11:56 AM

Getting Started
**
Junior Member
156 posts

Joined: Dec 2017


new site start work at kajang laugh.gif

Attached Image

Attached Image

Attached Image
TSaloha_90
post Jun 20 2023, 04:02 PM

Getting Started
**
Junior Member
156 posts

Joined: Dec 2017


backyard extension for wet kitchen biggrin.gif

Attached Image

Attached Image

Attached Image

Attached Image
keanutan
post Jun 20 2023, 05:11 PM

Getting Started
**
Junior Member
87 posts

Joined: Apr 2010
Hi can give an estimate price for klang area ? Backyard 7 x 22 grass to concrete floor with tiles . And back fencing 5ft x 45ft change to cement wall
thinkgoodpositive
post Jun 21 2023, 10:29 AM

Getting Started
**
Junior Member
196 posts

Joined: Sep 2015
QUOTE(aloha_90 @ Jun 20 2023, 04:02 PM)
backyard extension for wet kitchen  biggrin.gif

Attached Image

Attached Image

Attached Image

Attached Image
*
Hi, how many concrete pillar is required if for side extension 6' wide x 20' long? Single storey with slab roof. THanks
TSaloha_90
post Jul 1 2023, 02:33 PM

Getting Started
**
Junior Member
156 posts

Joined: Dec 2017


QUOTE(thinkgoodpositive @ Jun 21 2023, 10:29 AM)
Hi, how many concrete pillar is required if for side extension 6' wide x 20' long? Single storey with slab roof. THanks
*
need 3 pillar and plinth beam and connect beam then enough sturdy !
ahbenchai
post Jul 1 2023, 04:23 PM

what do you mean you people?
******
Senior Member
1,210 posts

Joined: Jun 2005
From: penang


for power socket, how many is required for standard condo sized kitchen? if do socket extension, how much does it cost

This post has been edited by ahbenchai: Jul 1 2023, 04:23 PM
sonerin
post Jul 8 2023, 12:50 PM

Look at all my stars!!
*******
Senior Member
8,740 posts

Joined: Aug 2009
QUOTE(ahbenchai @ Jul 1 2023, 04:23 PM)
for power socket, how many is required for standard condo sized kitchen? if do socket extension, how much does it cost
*
For any kitchen it will be good to have 6-8 sockets minimum.
surya_k2
post Jul 9 2023, 08:40 PM

New Member
*
Junior Member
49 posts

Joined: Dec 2006
From: Pusat Bandar Puchong


Hello Aloha, do you do small jobs? i have water damage on one wall and i dont know if it is caused by cracked outer wall or plumbing or water proofing defect from the upstairs bathroom. If its waterproofing defect would need to hack, retile. Please PM me. House in Puchong, currently vacant.

user posted image
user posted image
TSaloha_90
post Jul 10 2023, 06:53 PM

Getting Started
**
Junior Member
156 posts

Joined: Dec 2017


QUOTE(ahbenchai @ Jul 1 2023, 04:23 PM)
for power socket, how many is required for standard condo sized kitchen? if do socket extension, how much does it cost
*
include hood and hob and lighting point normally 8 to 12 socket , price wiring normally charge RM 90 to Rm 140


TSaloha_90
post Jul 10 2023, 06:56 PM

Getting Started
**
Junior Member
156 posts

Joined: Dec 2017


QUOTE(surya_k2 @ Jul 9 2023, 08:40 PM)
Hello Aloha, do you do small jobs? i have water damage on one wall and i dont know if it is caused by cracked outer wall or plumbing or water proofing defect from the upstairs bathroom. If its waterproofing defect would need to hack, retile. Please PM me. House in Puchong, currently vacant.

user posted image
user posted image
*
ya this water proofing or plumbing leaking , have to ask the specialist check leaking to settle .
surya_k2
post Jul 11 2023, 10:44 AM

New Member
*
Junior Member
49 posts

Joined: Dec 2006
From: Pusat Bandar Puchong


You don't do this kind of job?
TSaloha_90
post Jul 26 2023, 10:29 PM

Getting Started
**
Junior Member
156 posts

Joined: Dec 2017


QUOTE(surya_k2 @ Jul 11 2023, 10:44 AM)
You don't do this kind of job?
*
small jobs do sure , but I'm not familiar in water leaking .
Wu Bai P
post Jul 30 2023, 11:23 PM

New Member
*
Probation
2 posts

Joined: Feb 2021


May I know you company name and location? Thanks.
thinkgoodpositive
post Aug 1 2023, 03:52 PM

Getting Started
**
Junior Member
196 posts

Joined: Sep 2015
QUOTE(aloha_90 @ May 29 2023, 12:08 PM)
ya install by plaster ceiling worker , 4000 mm track for 1 lighting point
*
can share how to install the magnetic track light? got photo before cover the plaster board?
can we mount it on the aluminium/steel frame support and cover with the plaster board?
Or must screw on those long wood support? thanks.
TSaloha_90
post Aug 12 2023, 03:14 PM

Getting Started
**
Junior Member
156 posts

Joined: Dec 2017


QUOTE(Wu Bai @ Jul 30 2023, 11:23 PM)
May I know you company name and location? Thanks.
*
PM done .
TSaloha_90
post Sep 7 2023, 11:01 PM

Getting Started
**
Junior Member
156 posts

Joined: Dec 2017


QUOTE(thinkgoodpositive @ Aug 1 2023, 03:52 PM)
can share how to install the magnetic track light? got photo before cover the plaster board?
can we mount it on the aluminium/steel frame support and cover with the plaster board?
Or must screw on those long wood support? thanks.
*
here the photo install the track light on existing plaster ceiling

Attached Image

Attached Image

Attached Image
araveang
post May 13 2024, 06:56 PM

Getting Started
**
Junior Member
111 posts

Joined: May 2011


pm company name and contact details. btw removing column , to reinforce better RC or just I beam
TSaloha_90
post Nov 25 2024, 10:22 AM

Getting Started
**
Junior Member
156 posts

Joined: Dec 2017


recently just done this house
biggrin.gif

Attached Image

Attached Image

Attached Image

Attached Image
TSaloha_90
post Dec 18 2024, 09:07 AM

Getting Started
**
Junior Member
156 posts

Joined: Dec 2017


here the old house refurbish at wangsa Cheras

Attached Image

Attached Image

Attached Image

Attached Image

Attached Image
TSaloha_90
post Feb 10 2025, 11:47 AM

Getting Started
**
Junior Member
156 posts

Joined: Dec 2017


QUOTE(aloha_90 @ Dec 18 2024, 09:07 AM)
here the old house refurbish at wangsa Cheras

Attached Image

Attached Image

Attached Image

Attached Image

Attached Image
*
updated the house done before CNY

Attached Image

Attached Image

Attached Image

Attached Image

Attached Image
TSaloha_90
post Mar 10 2025, 02:27 PM

Getting Started
**
Junior Member
156 posts

Joined: Dec 2017


recently start work for the commercial shoplot .

Attached Image

Attached Image

Attached Image
TSaloha_90
post Apr 5 2025, 11:50 AM

Getting Started
**
Junior Member
156 posts

Joined: Dec 2017


start do the plaster ceiling rclxms.gif

Attached Image

Attached Image

Attached Image

Attached Image

Attached Image
Jasmine_84
post Apr 21 2025, 07:12 PM

New Member
*
Newbie
9 posts

Joined: Jul 2016
Hi TS, can pm details of your company?
GamaX320
post Jul 6 2025, 05:40 PM

Enthusiast
*****
Senior Member
822 posts

Joined: Sep 2012
Hi OP can pm more details for your company and contact.
TSaloha_90
post Sep 29 2025, 09:43 AM

Getting Started
**
Junior Member
156 posts

Joined: Dec 2017


QUOTE(GamaX320 @ Jul 6 2025, 05:40 PM)
Hi OP can pm more details for your company and contact.
*
QUOTE(Jasmine_84 @ Apr 21 2025, 07:12 PM)
Hi TS, can pm details of your company?
*
sure please check you pm

TSaloha_90
post Sep 29 2025, 09:51 AM

Getting Started
**
Junior Member
156 posts

Joined: Dec 2017


QUOTE(aloha_90 @ Apr 5 2025, 11:50 AM)
start do the plaster ceiling  rclxms.gif

Attached Image

Attached Image

Attached Image

Attached Image

Attached Image
*
Attached Image

Attached Image

Attached Image

Attached Image

Attached Image

forgot to share the process of the shoplot doh.gif
after done plaster ceiling do the partition thumbup.gif
6996
post Oct 5 2025, 05:39 PM

Casual
***
Junior Member
403 posts

Joined: May 2015
Hi boss, can you pm me your contact and company details as well?

Thank you

 

Change to:
| Lo-Fi Version
0.5244sec    0.35    6 queries    GZIP Disabled
Time is now: 19th December 2025 - 08:59 PM