Hi ehwee,
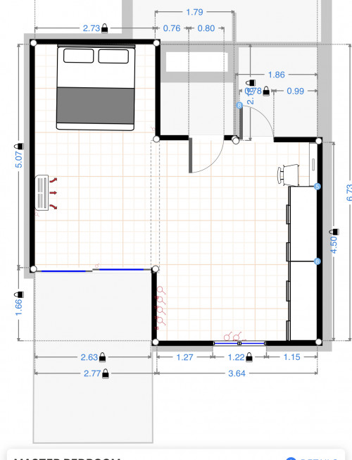
I'm trying to figure out how to best place a walk-in wardrobe in my master bedroom.
I'm leaning towards putting it on the marked area (12 x 6, or more like 6.5), but my questions / concerns would be:
1) Should I take up the whole space? Is it possible to have 2 rows of wardrobe side by side, with walkway in the middle? (e.g 2' wardrobe, 2.5' walkway, 2' wardrobe).
But this means I have to go thru the walk-in wardrobe to get to my bathroom. Would the hot water vapor get into the wardrobe and cause issues? Secondly, the side window will also be 'in' the wardrobe. What do you think?
2) If instead I opt to not to take up the whole space, but rather 12' X 4.5' (meaning 1 row of wardrobe, and another for walkway within wardrobe itself), therefore leaving another 2' for the 'walkway' to the master bath - does that make sense? This would mean I would not have to cover up the side window. Would the walk-in wardrobe be too narrow?
3) For either option above, where do you think the sliding door should be to get into the wardrobe?
4) Lastly, without any consideration to my earlier suggestions, can you let me know what would your original ideas be for walk-in wardrobe given the current master bedroom space and layout? If you can include the bed, study and TV that would be awesome! Feel free to go wild!

Instead of having a long 12'wardrobe right next to bedroom doorway, this is the layout I suggest.
you can put a exhausted fan inside the bathroom to minimize the mousture in the area. also can open up the windows at wardrobe area to let in fresh air into the area on and off too.