QUOTE(drbone @ May 12 2021, 03:12 PM)
Guys, very interesting reading this thread. Planning for renovation for double storey semi-d. Most of the external and internal hacking and putting up of walls done.
What do you guys think of the quotations so far? Got an ID involved as well. Budget for reno works is rm350K , however with the current quotations, will have to scrap off some of the items. Still not received quotations for wiring works , painting of the whole house, and solar panel to save on electricity (planning to get this and am aware that will see ROI after about 5 years). Also not included payments for furniture, electrical appliances and beddings.
Please share what you guys think.




Apparently stainless steel prices have gone up drastically in the past 2 weeks , so am thinking of improvising. So , for the upstairs balcony , instead of fully installing awning, am planning for something like below.


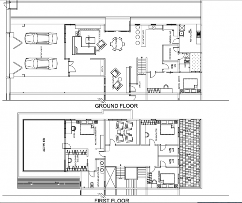
Separate issue is the maid's room, with the current setup, there is no ventilation for her if the toilet door is closed, any way to improvise on this? The external window in the 2nd pic below is of the maid's toilet.


Many of the wetwork quotations not itemized, no size; might be hard to compare. Anyhow, here's my 2 cents opinion and some the quote I got from the ID company I engaged :
Demolishing and building new walls at dining/kitchen and MB seems pretty ex (RM7920+9350). It's a huge existing wall?
Mine : To supply labour and raw materials to build few new full height walls at wet kitchen and maid room
I calculated the length of new wall required = 2400mm + 3300mm + 2400mm = 8100mm
Demolishing walls is very small area for me = 1220mm + 1800mm = 3020mm
Total : RM8800
Wiring : What are you planning to do? Rewire whole house? I started a recent thread on this to get opinions from sifus on LY. Pricing other useful information from LY sifu.
https://forum.lowyat.net/index.php?showtopic=5143067&hl=many LY threads on electrical renovation pricing for reference as well
my rewiring (from DB onwards) + new DB for semi-D as well currently is at RM30k
(this is without opting for better quality materials yet - cables, DB internal parts, sockets, etc). Likely once finalized on electrical layout, might easily reach RM40-45k I think "
Grille :
Your quote (powder coating metal) is at RM24.4psf
I read from some other LY thread good reviews for
https://threekim.com.my/mild steel grille 1.2mm= RM18 psf, 1.0mm RM12"
Sliding door SS 96""x96"" (8x8ft) = RM4200
Mine : To supply and install aluminium frame with sliding door c/w 6mm tempered clear glass in powder coated finishes included upper & bottoom track c/w handle & locke"
Awning:
yours : carporch ""powder coated metal RM9200 for 181.5sf = RM50.70psf (market price I believe, my research on google and recent homedec is RM50-55psf)
Mine : To supply and install 12.38mm laminated glass roofing complete with 2"" x 4"" hollow section mild steel frame finishing with gloss paint c/w 2 columns to support the glass roofing 70sqft = RM3570"
balcony awning : is the PU metal same as ACP?
If ACP, from recent homedec, around RM28-30psf (yours seem to be RM38psf)
try getting quotes from others such as "de skylight roofing"
Plaster ceiling : from the many threads on LY, seems like about RM3.5-RM4 psf - flat. (can go much lower also, some quoted RM2.5psf or even less)
Your seems much cheaper than mine
my ID quoted me
flat plaster ceiling : RM4.5 psf
To supply install curtain pelmet & light trough (included lighting and installation) at living area 23ft(w) RM945.50
To supply and install new light trough (included lighting and installation) at living area 40ft(w) 1,400.00
Builts ins :
Wardrobes : seems quite pricey if it's swing door. Itemization doesn’t seem consistent and no way of telling it mum room wardrobe is swing door, sliding, etc,
Would recommend getting a competitive quote from MKA cabinet or any other KC specialist you prefer to compare (https://www.mkacabinet.com/)
The MKA salesperson I whatsapp and had 1-2 calls to discuss seems quite ok and prompt response:
Michael +6017-620 0764
Quartz top : are you particular about the quality? Cheapo "china" brand supposedly stains easily, durability issues, etc
If you're particular about it, I have done some research and shared info here (any many other good info from LY sifus as well) :
https://forum.lowyat.net/topic/4760893I would suggest to make sure each item has full measurement stated to avoid any dispute. Some of your items have no dimensions]
Hope this helps. Happy renovating!