Welcome Guest ( Log In | Register )

4 Pages < 1 2 3 4 >Bottom

Outline · [ Standard ] · Linear+

 Aircon Discussion V3, Home Appliance

views
     
westlife
post Apr 21 2024, 02:35 PM

10k Club
********
All Stars
14,235 posts

Joined: Jan 2011
QUOTE(Max @ Apr 21 2024, 01:09 PM)
Yes . Not bad actually.. i use 1 at son room. Inverter model.
Cool and comfortable. Already 5 years. That time only cost rm860
For the prices, really a bargain for an aircon.
*
Yes. Really.

Last time I am very particular about brands that I only want Mitsubishi or daikin.

Now I find that midea is not bad also actually.
westlife
post Apr 21 2024, 07:08 PM

10k Club
********
All Stars
14,235 posts

Joined: Jan 2011
QUOTE(stormer.lyn @ Apr 21 2024, 05:25 PM)
I'm qualified to install air conds, and I actually wouldn't mind Midea for my own home. (Especially MSEP series because easy to clean)
Just anecdotal opinion from me.
*
yeah. i also find that midea is not bad... even the price is very competitive... it cools down the place real fast...
westlife
post Apr 27 2024, 01:36 PM

10k Club
********
All Stars
14,235 posts

Joined: Jan 2011
For non-inverter aircon, is it normal that the set temperature light will be on for a while and off for a while constantly?
westlife
post Apr 27 2024, 01:39 PM

10k Club
********
All Stars
14,235 posts

Joined: Jan 2011
QUOTE(Lon3Rang3r00 @ Apr 26 2024, 04:21 PM)
I'm new into Aircon, any sifu can recommend what are the things that to take note when choosing an Aircon? and if there are anything that are market gimmick and can ignore.

My family always into Panasonic, I've noticed my parent house's aircons are non-inverter type. I did recommend to them that inverter save electricity, but their response are Inverter is expensive to repair when break down and the wind output even for 2HP Inverter <1HP Non-Inverter. I know i can't change how they view on this but this time round I'm planning it for my own house.
*
1) buy inverter only
2) make sure the BTU of the aircon is more than enough to cover the area so that it can reach the set temperature in order to save energy. Do consider additional btu if there are more windows and ur house is west facing.

Other than that, that’s all I guess.

Dun go for Panasonic I guess. Personal preference.
westlife
post Apr 29 2024, 04:01 PM

10k Club
********
All Stars
14,235 posts

Joined: Jan 2011
QUOTE(Lon3Rang3r00 @ Apr 29 2024, 10:53 AM)
Alright will take note on the Inverter, ya brand wise maybe I'll try Daikin. Usually who should we consult for how many BTU needed? And usually which platform you guys used to Air-Con? SenQ? or any Local reputable brand.

Will need to bring a compass to my new unit to see which direction it face, got mentioned during key handover but i don't recall where is it facing now. From google map the windows is facing East to South.

Does higher BTU consume more energy? Or it depends on the size, if the room size is smaller but BTU higher~ it take lesser time to cool and maintain the temperature?

I drop by the HomeExpo and took some brochure from Daikin, the seller said nowadays Aircon area all smarter with certain unit can automatically adjust the temperature, increase and decrease depends on the weather. Not sure if those are reliable.
*
can use online BTU calculator to count how much BTU u need for the room to cool. based on the height and width of the space, factor in the amount of windows, whether west facing etc.. to determine the BTU u need. of course this can only be a rough reference... alternatively also can get the aircon man to come and site survey and advise u also.

brand wise, daikin and mitsubishi are always the king of aircons, and i always only trust either of these brands, but recently i come across china brand like midea, also not bad and CP value is good becos the price is cheap. although it is cheap but it works quite well.

higher BTU certainly will consume more electricity...
so if ur room is small, but u use a aircon which is higher Horse Power that exceed the BTU ur room needs, u waste more electricity in long run, but advantage is u can guarantee that ur room can reach the set temperature no prob.


westlife
post Apr 29 2024, 09:04 PM

10k Club
********
All Stars
14,235 posts

Joined: Jan 2011
QUOTE(ZeneticX @ Apr 29 2024, 05:12 PM)
imo.... no need to spend so much for an inverter. just get a good enough inverter (around 1k - 1.5k for 1hp, 2k - 2.5k for 2hp, make sure its 5 stars rating) then spend more on getting a qualified and good aircond technician to install your aircond

if the installation process is not proper / fked up, you buy 3k+ aircond from reputable brand also no use

and this is just me, but brand does matter a bit when it comes to inverter aircond. The durability of the electronic components eg: circuit board, more or less will be related to the brand. And also after sales service and spare parts
*
if i am buying i think i will buy ok brand like midea, their inverter is not that ex... but quite good.. fast cooling... durability wise will need to monitor..
westlife
post Apr 29 2024, 09:33 PM

10k Club
********
All Stars
14,235 posts

Joined: Jan 2011
QUOTE(ZeneticX @ Apr 29 2024, 09:14 PM)
Almost all brands also ok nowadays.... just have to make sure the installation is proper and regular maintanence. But if you want good spare parts availability i think still Daikin or Panasonic. Midea should be fine i think since more and more people start using

The only brand I've heard aircond tech and other people asking everyone to avoid is Samsung lol
*
samseng stuff always cmi, not surprise... try to buy their tv u will also know...
westlife
post Apr 30 2024, 09:34 PM

10k Club
********
All Stars
14,235 posts

Joined: Jan 2011
QUOTE(iZuDeeN @ Apr 30 2024, 12:15 AM)
guys just install smart meter on ur house..

I have 2 units 1.5hp inverter (Samsung & Sharp) in my room (i installed second unit while waiting the Samsung repair)

I can tell you Sharp uses less energy ( I set to 26 c) ...

Sharp can reach this temp easily and only uses around 300w after cutoff ; Samsung hardly can reach this temp hence run heavy ar 1000w
*
same 1hp, all non-inverter, the midea aircon in my house can reach the set temperature of 25 degree much much much faster than mitsubishi one..

mitsubishi is really slow in cooling... minimally need 20 minutes and longer to cool down to at least feel some aircon while may not even reach 25 degree.. mad.gif

for midea... less than 5 minutes i can feel almost 25 degree of temperature.. smile.gif
westlife
post May 25 2024, 08:11 AM

10k Club
********
All Stars
14,235 posts

Joined: Jan 2011
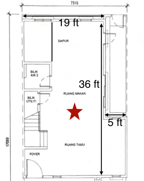
QUOTE(Jasonjinct @ May 25 2024, 08:01 AM)
user posted image

Hi sifus, want to ask for such home layout. Does having 2.5HP ceiling cassette aircond at the ‘star’ area enough?
*
Using cassette aircon at home? Are u sure? đŸ¤ª
westlife
post May 25 2024, 08:17 AM

10k Club
********
All Stars
14,235 posts

Joined: Jan 2011
QUOTE(Jasonjinct @ May 25 2024, 08:13 AM)
Is there any issue? Saw my friend using Daikin Revo. Been okay so far
*
One thing is that it is more ex, harder for maintenance or more extensive for maintenance, it lower down ur ceiling height (of course for bungalow that the ceiling height is way higher it is not a concern), and if it is having issue like leaking etc. it can cause more troubles than normal wall mount types.

Just my 2 cents.

This post has been edited by westlife: May 25 2024, 08:17 AM
westlife
post Jun 29 2024, 04:18 PM

10k Club
********
All Stars
14,235 posts

Joined: Jan 2011
my rented unit the mitsubishi aircon (non-inverter) was not cold, under defects liability period, in end of dec 2023, fixed one time, they just added the gas, then after 3 to 4 months later later the aircon not cold again, mid of april they fixed it and also added gas, then recently staring early june also aircon totally not cold again (this time was faster)...

they came to fix one week back and now aircon is back to normal... previously it took more than hours also could not hit even 25 degree of temperature set...

now the room after aircon is on the aircon will full blast for 10 minutes, after that it tones down and become quiet air blowing and after 5 more minutes it will hit the 25 degree temperature set..
I supposed this should be 'normal' if an aircon is fully functionally.

now finally the aircon feels normal.. but i hope this will last... becos this was the 3rd time fix as of now..

i told them that it could be due to internal piping inside the wall that is leaking thus even after refilling gas the gas still leaks and if this is not fixed, no matter how many times of refilling the gas, it will still have the same problem.

but the technican who came said, they had done something (which i could not understand fully what they said), but they told me if still have prob they will come again..

hopefully this round the prob is really fixed then no need to fix again.

initially i tot that the master bedroom in the past it took longer time to cool down it was due to the room is bigger than the study room (both are using 1HP aircon, masterbedroom one is using mitsubishi non-inverter given by developer, while study room is using midea who installed by landlord themselves)...

midea aircon is damn cold maybe given the room is smaller, and sometimes daytime when i just set the temperature 26/25 degree i feel too cold that i may need to off the aircon for a while before on back again.

while mitsubishi one i dun feel like that, i feel it is really 25 degree when i really set it to be... and i feel more comfortable with it...

seems like mitsubishi aircon has better accuracy in temperature than midea? even both are non-inverter and 1HP....so my guess is that indeed old and reputable brand like mitsubishi indeed produces better aircon.
westlife
post Jun 29 2024, 04:19 PM

10k Club
********
All Stars
14,235 posts

Joined: Jan 2011
QUOTE(Jason @ Jun 18 2024, 01:10 PM)
Why you want inverter for home stay/airbnb? No difference because ppl will on 16C and leave it on 24/7... inverter running at full load is the same as non-inverter. Don't waste your money.

Easy available parts, consistently is Acson/Daikin. Reliable and trusted... Acson/Daikin. OYL has manufacturing in Malaysia, plenty of parts, and they are the 1st or 2nd largest HVAC manufacturer in the entire world. But they are not the cheapest. I used to swear by Panasonic, but my last 2 inverters.. 1hp bought in 2016 I think.and another 2hp bought 4 years ago.. is... rubbish. it is very power saving because even when you turn on iAutoX and demand rapid cooling..the aircon refuses.... they limit the performance to achieve power savings lah. I dislike Panasonic air con these days but admit it is power saving..because it is not cooling lol.

If I were you, I'll buy the cheapest Hisense model, which can get for RM7xx installed for 1HP. Super bang for buck.
*
indeed... my landlord also never install inverter aircon for my rented unit... sad.gif so no cost saving for me also since it is not inverter... bangwall.gif
westlife
post Jun 30 2024, 12:37 PM

10k Club
********
All Stars
14,235 posts

Joined: Jan 2011
QUOTE(Jason @ Jun 30 2024, 12:03 PM)
Well normal aircons are simpler than inverter ones, the PCB. I had one pre-OYL Daikin inverter than failed right after warranty due the PCB and aircon guy said too expensive to fix.. and that’s when I got the first Panasonic 1hp inverter in a small room. Forever also on iAutoX

So for rental purposes.. keeping it simple and reliable is the landlord’s goal. Electricity is paid by tenant so they won’t care about energy savings or comfort.

Most ppl don’t care if it’s inverter or not inverter. They just want the aircon to be cooling.

Knowledge is important. If the room is big and need 1.5hp.. installing an inverter 1hp will be worse off than a standard 1.5hp.
*
Actually for renting a unit, initially I was telling myself that I will only go for the unit that has inverter aircons installed but ultimately I compromise this req because I want to rent the unit.
westlife
post Jun 30 2024, 05:28 PM

10k Club
********
All Stars
14,235 posts

Joined: Jan 2011
QUOTE(darkcurves @ Jun 30 2024, 02:39 PM)
The reason I shortlisted Sharp 1hp inverter is due to budget constraints. Seems like the cheapest "branded" 1hp inverter at the moment.

Hmm, so would you recommend a 1.5HP inverter with 4 stars instead? The TCL 1.5hp inverter is the same price as the Sharp 1hp inv.
*
midea will be even cheaper... tongue.gif
westlife
post Aug 23 2024, 12:34 AM

10k Club
********
All Stars
14,235 posts

Joined: Jan 2011
how long does an aircon can cool down to 25 degree is considered 'normal' for its cooling capability?
westlife
post Aug 23 2024, 12:51 AM

10k Club
********
All Stars
14,235 posts

Joined: Jan 2011
QUOTE(anwa @ Aug 22 2024, 04:11 PM)
Hi, may I ask the sifus here,  if the house has solar which can generate adequate electricity,  is inverter aircon still necessary or a waste of money? Am I wrong that my thinking is inverter is to same electricity?
*
for room aircon which u are using every night, i highly recommend to use inverter, not only it will save electricity but most importantly, u will feel the constant temperature throughout the night comparing to non-inverter one..
it will be much much much more comfortable for sleeping...


westlife
post Aug 24 2024, 10:04 AM

10k Club
********
All Stars
14,235 posts

Joined: Jan 2011
QUOTE(anwa @ Aug 23 2024, 08:57 PM)
Non inverter not so good at maintaining a fixed temperature? Wonder whether if have solar, the extra electricity generated during day time can offset energy use at night.....
*
inverter will have the compressor run at lower power to keep the temperature set while non-inverter once reach the set temperature and compressor will stop immediately and once room temperature goes up beyond the set temperature it runs at full speed to reach the set temperature again... and this cycle will continue...
so u can imagine, u will feel the 'change' in temperature inside the room all the time, and ur aircon will be noisy when it runs at full speed for fans...


QUOTE(pizzaboy @ Aug 24 2024, 08:38 AM)
Hey man, how do you tell the temperature is more constant?

For context, wherever I go, I always keep it at 18c, and I run it at full speed. I have never been able to tell when it's an inverter or not an inverter AC.
*
obviously u did not know aircon by setting ur aircon to 18c.

QUOTE(Benefon @ Aug 24 2024, 09:03 AM)
Good condition aircon , normally will set on 24-23c with fan speed 1-3.
Lower than 22c mean highest usage energy also very dry humid.
Unlike your are plan to build server room, keep it on 24 hrs and 18c all the time.

The bad thing is condensation, also aircon maintenance with high bill on non - inverter unit, the operation super annoying to make the outdoor compressor on and off, while the rubber mounting vibration and fan motor spoil much faster than what you are expectation

Anyway good luck for you.
18c with full fan speed with non - inverter setup
*
25/24 degree celcius should be the most comfortable temperature for most ppl to sleep at nite... and it is easier to reach the set temperature given the outdoor temperature at night. 25 degree for my mitsubishi non-inverter aircon it takes about 20 minutes to reach while on at nite... 24 degree will need at least another 10 more minutes.. anything lower than 23 degree will take even longer, and the time taken is not proportional normally... as the set temperature is further away from outdoor current temperature it takes longer to cool down to that set temperature and worst case scenario is that it will never reach becos the set temperature is way too low... typical aircon that has the BTU matches the room size can never hit 18 degree so the compressor will be running at max speed and consumes the max electricity as possible..

so it is totally silly to set the temp at 18 degree...
westlife
post Aug 24 2024, 11:34 AM

10k Club
********
All Stars
14,235 posts

Joined: Jan 2011
QUOTE(Benefon @ Aug 24 2024, 11:05 AM)
Haha, I guess for those ppl set on server room, the temperature super high.
Set on 18c just a preference only. Basically 24-25c very comfortable for inverter unit.
Anyway please do vacuum pump when during installation.
R32 gas very sensitive.

After complain to Mitsubishi Electric customer service.
The installer come back do vacuum pump for us.
They need release all the existing gas and pump then refill all new R32 gas.
After done, set on 24 or 25c just an hour to cool down 3x5m master bedroom, otherwise it is keep whole night to light off dual led indicator from FCU.
user posted image
user posted image
*
1 hour just to cool down ur master bedroom??

it means ur aircon BTU is not sufficient for ur room size...
westlife
post Aug 24 2024, 08:07 PM

10k Club
********
All Stars
14,235 posts

Joined: Jan 2011
QUOTE(Benefon @ Aug 24 2024, 03:11 PM)
Installed 10k BTU on master bedroom.
Normally ppl will go for 13k BTU
*
from the speed it cools down, can tell that it is certainly under power for ur aircon to ur room size.... biggrin.gif

not to mention this is also subjected to other factors such as cold/hot day... whether ur room is having west sun prob etc...
westlife
post Jun 1 2025, 04:54 PM

10k Club
********
All Stars
14,235 posts

Joined: Jan 2011
Do u guys really spend money to service ur aircon?

Or u guys just simply clean the filters by yourselves on regular basis but only pay money to get it service when it has prob such as water leaking etc.

4 Pages < 1 2 3 4 >Top
 

Change to:
| Lo-Fi Version
0.0474sec    0.40    7 queries    GZIP Disabled
Time is now: 28th November 2025 - 11:02 PM