Bought an intermediate dsl in PJ, a gated and guarded community, 24x75 with original build up 2350sqft. Got the key quite some months ago but it was not having much progress earlier mainly delays especially from the drawing, permit application and sourcing process. It was also delayed for 3 weeks as I decided to wait till the lunar 7th month is over before the reno starts.

It is not a major make over where it won't have obvious change on the front facade. The structural change is only the push-out of kitchen extention, push-out of master bed room's balcony to make space for bigger bathroom and knocking down the side pathway wall to rebuild it like an entrance to the living room, hence the main door will be shifted over to the extention of the side pathway...

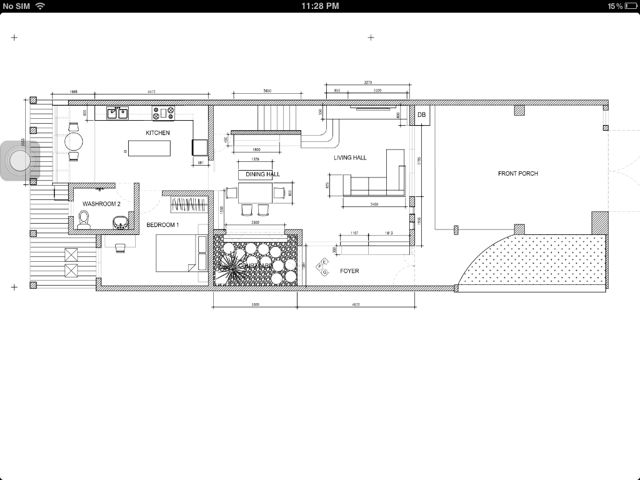
Note: The drawing was actually done before decision to some changes on the actual reno. The actual kitchen layout has been slightly changed where the location of hood/hob and the sink has been reversed. Furthermore, the main entrance to the front foyer has also been extended.
Will also knock some walls to open up extra windows at first floor to the indoor courtyard.
This was the earlier plan to have a separation partition for wardrobe but I've changed my mind now to have only one simple row wardrobe in order not to jeopardise the overall spacious master bedroom.

Will move the main door to the corner to make use the pathway as entrance hall.

Gonna knock this wall down to make entrace to the living room, will rebuid part of the wall with sand block and vent block to give a raw and rustic touch.

This post has been edited by maxxon: Mar 19 2014, 03:07 PM
Sep 9 2013, 12:21 AM, updated 12y ago
Quote












0.0397sec
0.75
7 queries
GZIP Disabled