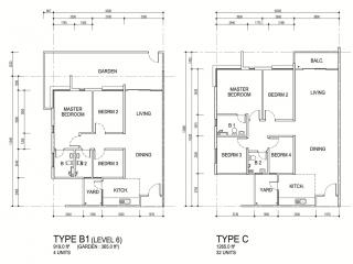
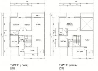
Project :2 blocks 284 units exclusive Condominium Apartments and 1 Six Storey Podium Car Park
Project Name :DeSkye
Location :Lot 2408, Batu 41/2, Mukim Batu, Wilayah Persekutuan.
Land Area :2.84 acres / 123,535 Sq Ft
Tenure :Freehold
Completion date :2016
Location:
Easy access to Jln Ipoh, Jln Kuching, Jln Kepong, Jln Duta
2km to Kampung Batu Komuter Station
2.5km to Sungai Emas (The Store) Shopping Mall
3km to Brem Mall (Giant Supermarket)
10 min to Jusco Kepong
10 min to Carrefour Kepong
20 min to KLCC
20 min to Midvalley
Please contact (JJ CHEW) 0129122012 for further more details information.
This post has been edited by lumsiong: Jun 7 2013, 12:42 PM
Attached thumbnail(s)
Attached image(s)
Apr 4 2013, 10:31 AM, updated 13y ago
Quote
0.0497sec
0.71
6 queries
GZIP Disabled