Welcome Guest ( Log In | Register )

9 Pages « < 5 6 7 8 9 >Bottom

Outline · [ Standard ] · Linear+

 Mah Sing Group to launch new M Residence@Rawang, from the star

views
     
koigh
post Jul 6 2013, 10:13 AM

Getting Started
**
Junior Member
205 posts

Joined: Apr 2012
QUOTE(PhantomLance @ Jul 5 2013, 04:34 PM)
Phase 1.. own stay  cool2.gif
*
Phase 2, own stay.....
Probably when you target to move in? 6 months after VP? OR 1 year after VP?
koigh
post Jul 8 2013, 09:35 AM

Getting Started
**
Junior Member
205 posts

Joined: Apr 2012
QUOTE(Benster124 @ Jul 7 2013, 09:20 PM)
I have the 22x80 houses, phase 2 but built inside phase 1 area facing the field. not sure if that is called phase 2 or phase 1. SA told me its considered phase 1 area, but type is phase 2 type. haha confusing..

For those phase-2 owners, I wanna ask, I plan to remove the toilet and maid's room, to extend my house kitchen. But SA said the wall is one of the main pillars support, cannot be broken. I find the maid's room and toilet kind of useless if I dont want a maid. Not sure what can i do with them if can't break it down. Anyone having the same concern?
*
I also have same plan with you, want break the maid room, make bigger kitchen. Here is my rough idea of floor plan. There is no main pillar support at maid room, have checked it at actual house.




Attached thumbnail(s)
Attached Image
koigh
post Jul 8 2013, 11:58 AM

Getting Started
**
Junior Member
205 posts

Joined: Apr 2012
QUOTE(kelvin2080 @ Jul 8 2013, 11:05 AM)
I 100% will break the maid room and toilet to make bigger kitchen....  Koigh, u check it in phase 2 or phase 1 -  22*80 unit?
*
Phase 2, but if not mistaken got pillar at toilet.

koigh
post Jul 10 2013, 12:34 PM

Getting Started
**
Junior Member
205 posts

Joined: Apr 2012
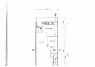
QUOTE(prozak53 @ Jul 8 2013, 07:13 PM)
Bro, will your proposed reno. plan be approved given the fact that the bedroom window is
facing the confines of the kitchen? Anyway, this is what I would do (cost factored-in)....

user posted image

(Cut & paste using the original developer's floor plan. Hope there's no copyright infringement)
*
That why plan to make kitchen window in line with bedroom window...
Anyway your idea also nice but maybe a bit costly, need break many wall
koigh
post Jul 10 2013, 12:35 PM

Getting Started
**
Junior Member
205 posts

Joined: Apr 2012
May I confirm how much MR1 monthly maintenance fee, RM120 or RM190?
koigh
post Jul 10 2013, 12:39 PM

Getting Started
**
Junior Member
205 posts

Joined: Apr 2012
QUOTE(prozak53 @ Jul 8 2013, 07:13 PM)
Bro, will your proposed reno. plan be approved given the fact that the bedroom window is
facing the confines of the kitchen? Anyway, this is what I would do (cost factored-in)....

(Cut & paste using the original developer's floor plan. Hope there's no copyright infringement)
*
whistling.gif Attached Image

(Cut & paste from original floor plan for your reference)
koigh
post Sep 9 2013, 09:10 AM

Getting Started
**
Junior Member
205 posts

Joined: Apr 2012
QUOTE(Deathscythe@@ @ Sep 8 2013, 10:02 PM)
Hey, anyone phase 3 owner? Found out that the construction stage quite fast by referring to the withdrawal of funds of developer from mah sing. Anyone got the information to share ?
*
How many % ardy?
koigh
post Sep 10 2013, 01:44 PM

Getting Started
**
Junior Member
205 posts

Joined: Apr 2012
QUOTE(Deathscythe@@ @ Sep 9 2013, 05:03 PM)
Now is the 4th withdrawal from the bank. (not include the SNP). Anyone knows when Phase 3 ready to be stay? seems very fast~
*
Are you sure? Mine is phase 2 and up to today already release 35% included d/payment.
Why phase 3 progress faster than phase 2?


koigh
post Sep 11 2013, 01:39 PM

Getting Started
**
Junior Member
205 posts

Joined: Apr 2012
QUOTE(Deathscythe@@ @ Sep 10 2013, 03:27 PM)
That is why i felt surprised. Your lot located outer or inner rows? Mine is the inner row/2nd row
*
Mine is inner row, 5th row
koigh
post Sep 11 2013, 05:23 PM

Getting Started
**
Junior Member
205 posts

Joined: Apr 2012
QUOTE(Deathscythe@@ @ Sep 11 2013, 02:27 PM)
When did you sign the snp? when vp? haha
*
May 2012....VP should be May 2014 (24 months from SNP date).
How about you?
koigh
post Sep 12 2013, 08:55 AM

Getting Started
**
Junior Member
205 posts

Joined: Apr 2012
QUOTE(Glcotan @ Sep 11 2013, 08:37 PM)
faster complete also good ma...
*
I prefer the project delay until the junction construction at Rawang toll completed.
No plan to move if the road still not OK.
If Mah Sing delay, I can claim penalty from them better than i pay monthly to bank until road OK.
koigh
post Sep 12 2013, 03:55 PM

Getting Started
**
Junior Member
205 posts

Joined: Apr 2012
QUOTE(kelvin2080 @ Sep 12 2013, 01:34 PM)
I think Mah Sing can completed M-residence 1 before deadline.. I check my loan, 50% money already payout . I expect 2014 1st quarter can get VP.
GST and Inflation coming soon (All this will boom the property price) ... In my opinion, Mah Sing will complete as soon as possible to reduce the womanship , material cost and etc.

Thanks for sharing.. Anyone of you are Mah Sing shareholder?
*
Yeaaa agreed with you but hope the VP is same timing with the road expansion at toll rawang
koigh
post Sep 19 2013, 08:32 AM

Getting Started
**
Junior Member
205 posts

Joined: Apr 2012
QUOTE(Blues03 @ Sep 18 2013, 10:13 AM)
sg.bakau to BTP..will it wide to become 2 lanes?
*
Yes.
Phase 1 : Widen road at Rawang Toll
Phase 2 : Rawang toll to Garing
Phase 3 : Rawang toll to BTP

However don't know when the project will be completed, super slow..... cry.gif
koigh
post Sep 19 2013, 08:34 AM

Getting Started
**
Junior Member
205 posts

Joined: Apr 2012
QUOTE(machi1128 @ Sep 17 2013, 10:28 PM)
Received another LOVE letter today, to-date 65% withdrawn for Phase 1...my estimation will be after CNY which is early Feb/Mar2014...
Anticipating~~
*
Received another Love letter for phase 2 also, to-date ardy 45%
koigh
post Sep 20 2013, 09:15 AM

Getting Started
**
Junior Member
205 posts

Joined: Apr 2012
Yesterday received letter from Semai Meranti for TNB and Syabas application form.....now fell very eager to move in already
koigh
post Sep 24 2013, 08:20 AM

Getting Started
**
Junior Member
205 posts

Joined: Apr 2012
QUOTE(spreeeee @ Sep 23 2013, 11:12 PM)
received letter from mahsing couple of days ago asking to fill up form for TNB and syabas application form to install meter. anyone submitted, with deposit of rm390?
*
why they asking me deposit RM670 (TNB 570 & Syabas 100)?
koigh
post Sep 27 2013, 10:27 AM

Getting Started
**
Junior Member
205 posts

Joined: Apr 2012
QUOTE(spreeeee @ Sep 26 2013, 11:09 AM)
not sure.. maybe u need to call them and ask.. maybe ur unit is semi-d? lol..
*
Yup checked already, phase 2 equipped with TNB 3 phase and phase 1 equipped with TNB single phase, that why TNB deposit for phase 2 higher.
koigh
post Oct 19 2013, 01:00 PM

Getting Started
**
Junior Member
205 posts

Joined: Apr 2012
QUOTE(Glcotan @ Oct 18 2013, 02:43 PM)
very fast wor.. but cant be full balance right.. balance 2.5% should be after keys
*
How wide is the road for MR1?
koigh
post Oct 22 2013, 07:42 PM

Getting Started
**
Junior Member
205 posts

Joined: Apr 2012
QUOTE(yunalesca @ Oct 22 2013, 07:11 PM)
Sales status

[attachmentid=3686898]
*
It is phase 4?
Not bad.....
koigh
post Dec 18 2013, 05:18 PM

Getting Started
**
Junior Member
205 posts

Joined: Apr 2012
QUOTE(kekura @ Dec 17 2013, 08:03 PM)
I think MR1 is a good buy because:
- freehold
- g&g with clubhouse facilities
- 22x80 with 2400sqf is quite big
- in between LATAR and PLUS
- not too close with Jusco/Anggun City (privacy)
- low upfront cash (FREE SPA legal fee, Loan legal fee, MOT, disbursement)
- individual title (strata title will cost you more during strata title transfer after VP)
- affordable price if compared to Lakehomes & Anggun
- on the main road side compared to Saujana Rawang/MR3, easy access
- planned township (M Avenue will be right in front)
- forest reserve at the side means more greenery less traffic
*
You should add the road also will be upgrade to 4 lanes but don't know when sad.gif
Toll to MR1 only 5km....try imagine if the main road has been upgraded, sure that area will be boom rclxm9.gif

9 Pages « < 5 6 7 8 9 >Top
 

Change to:
| Lo-Fi Version
0.2033sec    0.42    7 queries    GZIP Disabled
Time is now: 7th December 2025 - 01:08 AM