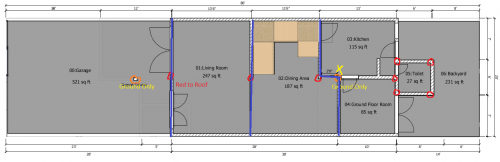
I have a dilemma, the layout of my house is as below. I have a beam on the right hand side which marked yellow, that's between kitchen and ground floor room. It does not goes up to the roof, just at the first floor, there's water tank above at the roof, I have two options:
Note: There is a water tank above for the 2nd toilets.
1. Remove the column and use RC / RSJ beam to support it back.
2. Move the single floor column to the right and hide it in the room wall making my room smaller.
(This is Original layout. I have drawn another new layout where walls has to come down.
The column is pretty thin as i detected it 6" x 6".
What options do I have ?
Of course the best would be able to remove it without having to shift it.
Sifu, architects, draftsman. Please help.
Thanks.


This post has been edited by enzoch: Feb 13 2022, 01:34 AM
Feb 13 2022, 01:22 AM, updated 4y ago
Quote








0.0200sec
0.70
5 queries
GZIP Disabled