Outline ·
[ Standard ] ·
Linear+
Interior Designer Advisor, Ask me anything. I am please to help
|
atyy88
|
Sep 10 2020, 04:06 PM
|
Getting Started

|
QUOTE(Lefty @ Sep 7 2020, 08:48 PM) Hi theproblemkid lolll Here you go ! We try to avoid blocking the windows to prevent lack of sun light !  Hi Lefty, My new house has very similar floor plan as his one. I have two design ideas as below. Seek your professional comment/advice on my ideas. Thank you! My Floor Plan  Design A  Design B
|
|
|
|
|
|
atyy88
|
Sep 10 2020, 07:57 PM
|
Getting Started

|
QUOTE(Lefty @ Sep 10 2020, 06:44 PM) Hi aty88, I will say go for option A with some comment as below . Drop the option B, option A is better option You may place some chair and table at the balcony for some evening high tea or book readings too !  Thank you. I decided not to put TV in the room. And because of the air cond, I will consider this Option C (based on your design). I have some questions as below.  Which bed orientation is better? Option C or D? This is Option D
|
|
|
|
|
|
atyy88
|
Sep 14 2020, 11:05 AM
|
Getting Started

|
QUOTE(Lefty @ Sep 12 2020, 04:55 PM) Option C better. Bed facing toilet door not so good. In addition, you have better view from bed to balcony. You can put some plants in the balcony Thank you for your sharing!
|
|
|
|
|
|
atyy88
|
Nov 5 2020, 10:21 PM
|
Getting Started

|
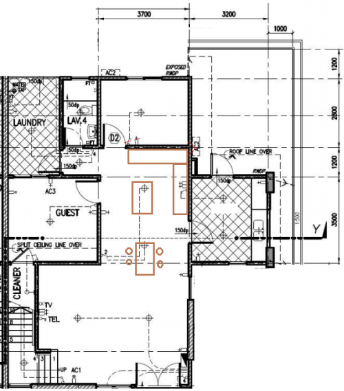
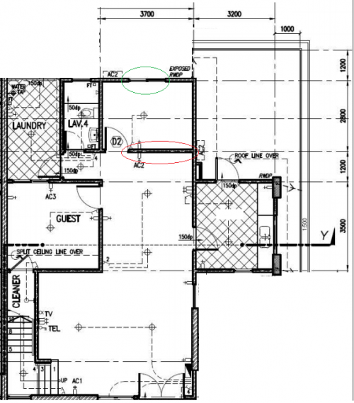
Hi Lefty, Appreciate if you can share your expertise ideas for my dry kitchen.   Initially my planning was like this but then the dining table is very close to living room and my wife wishes to have an island for baking. So I plan to break down the wall (circled in red) to expand my dry kitchen. There will be a big window (circled in green) after breaking the wall. Things to have in my dry kitchen are an island, fridge, oven, microwave, and a sink. What kind of design should I go for? U, I or L shape?
|
|
|
|
|
|
atyy88
|
Nov 7 2020, 10:38 PM
|
Getting Started

|
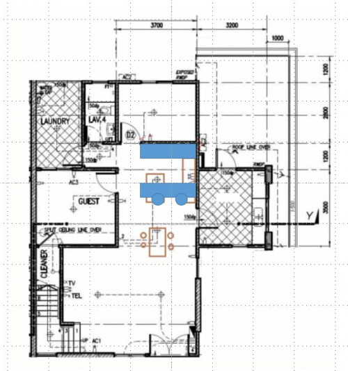
QUOTE(Lefty @ Nov 7 2020, 02:54 PM) Hi atyy88, To me the below orientation is better. The one with sitting is island, so that the people that working at island wont face the guest room door and they can interact with the people sitting on the dining table Happy Renovating!  Is this enough to fit island, fridge, oven, microwave, and sink?
|
|
|
|
|