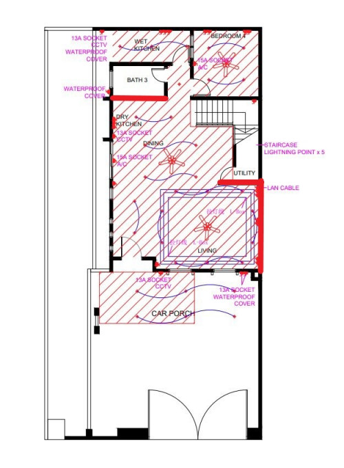
QUOTE(mascot123 @ Mar 9 2021, 08:44 PM)
Hi ehwee,
shameless post here, hahah, just wanted to ask some painting tips, just simple color, gonna be grey(highlighted in red) and white.
want to ask if its ok? or how can i make it better?


This is what I suggest for you.shameless post here, hahah, just wanted to ask some painting tips, just simple color, gonna be grey(highlighted in red) and white.
want to ask if its ok? or how can i make it better?


Try to zone out each main areas then paint one full stretch of selected wall with your favorite grey color will do the work.
Attached thumbnail(s)
Mar 12 2021, 05:09 PM

Quote











0.0307sec
0.55
7 queries
GZIP Disabled