Welcome Guest ( Log In | Register )

Outline · [ Standard ] · Linear+

 Unit build up size vs function vs price

views
     
TSCavatzu
post Jan 4 2024, 09:14 AM, updated 2y ago

Look at all my stars!!
*******
Senior Member
2,834 posts

Joined: Dec 2020


In the last 15 years or so, our concept of what is acceptable density and build up has changed drastically. I think we have seen your typical 3 bed/ 2 bath unit configuration that can range from 800 sqft to 1500 sqft or more.

Developers are generally being more efficient with layouts but you sometimes see oversized balconies or yards or wasted corridor space.

The oversized units seem to suffer a larger penalty unless they are in an in-demand atas area yet still fundamentally have the same core function as smaller units.

What is your deal breaker on what not to buy? This is purely around layout and ignoring location logistics.

This post has been edited by Cavatzu: Jan 4 2024, 09:20 AM
DragonReine
post Jan 8 2024, 09:07 AM

just another dog on the Internet
*******
Senior Member
2,610 posts

Joined: Aug 2011
For own stay:

I really, REALLY dislike the "traditional" high rise layout where all the bedrooms are gathered to one side with a long narrow corridor connecting the bedrooms and the non-private bathroom(s) are far from the general spaces:

user posted image

The photo is one of the more extreme examples where there's 4 bedrooms crammed into 1k sqft, but it illustrates my dislike of this kind of hallway.

The hallway is usually poorly ventilated and dark because no windows + hard to install fans and lights, and this makes it both gloomy and something of a dust trap.

Because there's limited floor space you really cannot do anything with it, even wall shelves have to be very thin or it's a hazard+it adds to the cramped feeling.

Yes, the bedrooms are more "private" and away from the living space, but arguably having bedroom doors face each other is worse in some ways.

In contrast I prefer rooms that are more spread out across the unit, with minimal "corridors" that lead to rooms:

user posted image

There's a more airy spaciousness to having a broader floor plan like this because enough light from the living room's balcony/windows can reach the whole unit.

Unfortunately this kind of layout in new high rise is usually marketed as "dual key" or "dual key ready", and a lot of partial furnishing packages will add pantry to the "studio" bedroom, which limits customisation and functional space IMO.

It also tend to attract investor owners, which decays the quality of the common facilities much faster than if the place has mostly own-stat owners.
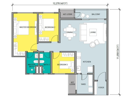
TSCavatzu
post Jan 8 2024, 03:11 PM

Look at all my stars!!
*******
Senior Member
2,834 posts

Joined: Dec 2020


user posted image

This would be the golden grail of layout for me. The double wide living and dining area is always desired. 1100 sqft for a 3 bed/2 bath. Unfortunately width is a real premium for a developer to be able to cram as many units as they can.

Your first example is real bad as the corridor is really long. Usually it would be the width of 1 room so like 2.8m.

Dumb bell layouts like example 2 are the most efficient but some don’t like the rooms being visible from the living area.

 

Change to:
| Lo-Fi Version
0.0142sec    0.51    5 queries    GZIP Disabled
Time is now: 23rd December 2025 - 01:34 PM