Tenure : leasehold
Address : Bukit Bintang
Title: Commercial + commercial under HDA
Tower : 1
Total units: : 759 units
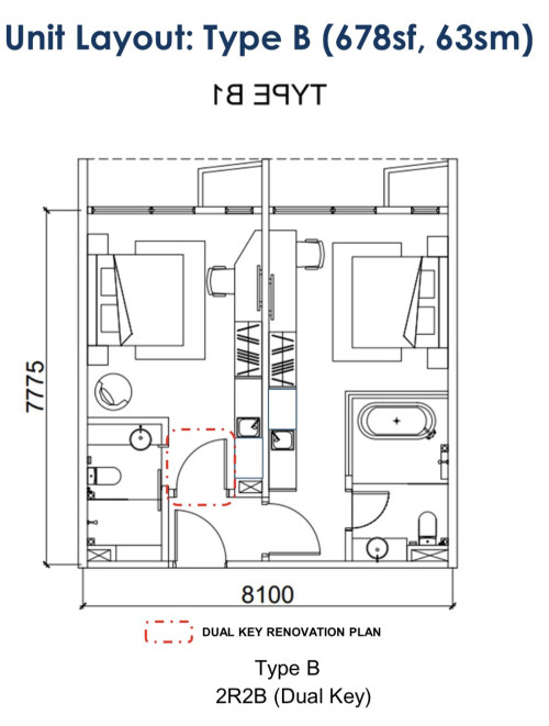
65% units(490 units)are studio type, 15%(112 units) are 2R1B type, 20%(157 units) are dual key type.
Total floor : 51 floors
⁃ studio/2R1B/dual key
⁃ 344/495/678sqft
⁃ Studio
⁃ 360 ° degree sky pool
⁃ Unblock views (TRX, Menara 118, KL Tower and Twin Tower)
⁃ ROI 8-10%
Price range :
Studio(344sqft) : RM803,500 to RM841,500
2R1B(495sqft)RM1,116,500 to RM1,154,900
Dual key(678sqft) : RM1,466,400 to RM1,497,600
Facing:
North - KL Tower/Sg Wang
South - TRX/Times Square
East - Park Royal Hotel/TRX/Royal Selangor Golf Club
West - BBCC/Merdaka 118
Actual location: in front of ParkRoyal Collection KL
250m walking to monorail Imbi
300m walking to MRT Bukit Bintang
700m walking distance to Pavilion Bukit Bintang




Attached thumbnail(s)
Nov 2 2023, 11:50 PM, updated 3y ago
Quote
0.0161sec
0.89
6 queries
GZIP Disabled