Welcome Guest ( Log In | Register )

Outline · [ Standard ] · Linear+

 Build house cost over budget

views
     
TSPeach169 P
post Jul 19 2022, 12:26 AM, updated 4y ago

New Member
*
Probation
3 posts

Joined: Jul 2022
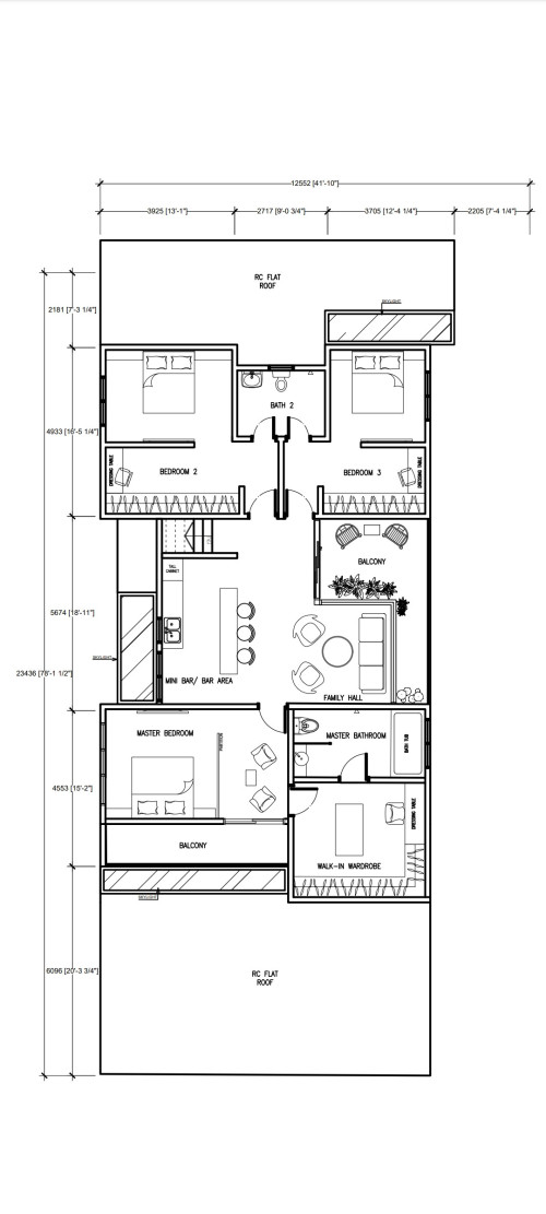
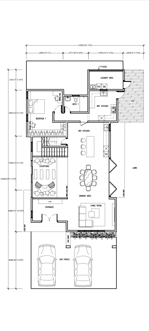
Hi, I plan to build a house from empty land. I have ID to do my layout and he told me the cost would be around 500k for the construction only not include wiring, plumping etc. Total would be 700k for all. As I have a tight budget 500k, any idea where can I reduce the cost to make it 500k for all the stuff?

https://pictr.com/images/2022/07/19/BtaDdx.md.jpg
https://pictr.com/images/2022/07/19/Bta3r8.md.jpg
kdr93
post Jul 19 2022, 12:32 AM

On my way
****
Junior Member
554 posts

Joined: Jan 2014


Just a word of advise, dont skimp on build materials or standards.

You are going to build it only ones, so build it right.

But to answer your question, i personally dont see where you can reduce your expenses by almost 200k.

Only way would be to build smaller i guess.
elimi8z
post Jul 19 2022, 12:38 AM

Enthusiast
*****
Junior Member
940 posts

Joined: Dec 2007
From: Shah Alam,Selangor


700k also maybe not enough, sure will cost overrun, good luck
teslaman
post Jul 19 2022, 12:46 AM

Regular
******
Senior Member
1,154 posts

Joined: Oct 2021
QUOTE(Peach169 @ Jul 19 2022, 12:26 AM)
Hi, I plan to build a house from empty land. I have ID to do my layout and he told me the cost would be around 500k for the construction only not include wiring, plumping etc. Total would be 700k for all. As I have a tight budget 500k, any idea where can I reduce the cost to make it 500k for all the stuff?
<a href='https://pictr.com/images/2022/07/19/BtaDdx.md.jpg' target='_blank'>https://pictr.com/images/2022/07/19/BtaDdx.md.jpg </a>
<a href='https://pictr.com/images/2022/07/19/Bta3r8.md.jpg' target='_blank'>https://pictr.com/images/2022/07/19/Bta3r8.md.jpg </a>
*
Just buy shipping containers, 40ft, join 3-4 of them, simple.
VireCwx
post Jul 19 2022, 12:59 AM

Getting Started
**
Junior Member
163 posts

Joined: Jul 2012
From: KL
Smaller built up. Instead of 2 storey, go for 1 and half or single storey
icemanfx
post Jul 19 2022, 04:37 AM

20k VIP Club
*********
All Stars
21,459 posts

Joined: Jul 2012


Steel, etc price is dropping. You may get a cheaper quote in a few months time. For 6k ft2 built up, you need RM 1.2m for a reasonable finishes. If 1.2m is beyond your budget then you need to downsize.

The only way to control cost is to award the whole job at lump sum contract to one contractor.


This post has been edited by icemanfx: Jul 19 2022, 04:41 AM
Sir_Jim
post Jul 19 2022, 07:29 AM

On my way
****
Junior Member
529 posts

Joined: May 2020
QUOTE(Peach169 @ Jul 19 2022, 12:26 AM)
Hi, I plan to build a house from empty land. I have ID to do my layout and he told me the cost would be around 500k for the construction only not include wiring, plumping etc. Total would be 700k for all. As I have a tight budget 500k, any idea where can I reduce the cost to make it 500k for all the stuff?
<a href='https://pictr.com/images/2022/07/19/BtaDdx.md.jpg' target='_blank'>https://pictr.com/images/2022/07/19/BtaDdx.md.jpg </a>
<a href='https://pictr.com/images/2022/07/19/Bta3r8.md.jpg' target='_blank'>https://pictr.com/images/2022/07/19/Bta3r8.md.jpg </a>
*
No windows facing outdoor at kitchen??
Easiest way to cut, make it 1 storey?
MrBlackie33
post Jul 19 2022, 08:39 AM

Shhhhhhh
*****
Junior Member
834 posts

Joined: Apr 2017
Don’t think that budget is doable based on experience unless make it single storey
wong_86
post Jul 19 2022, 08:47 AM

DUDE
****
Junior Member
565 posts

Joined: Oct 2007
From: MARS


At this size, near 1 million, u need understand, the material cost which on single house is different compare to project based cost.

This post has been edited by wong_86: Jul 19 2022, 08:48 AM
ketupatlazat
post Jul 19 2022, 09:17 AM

On my way
****
Junior Member
555 posts

Joined: Aug 2013
From: Bolehland
looks like the buildup is around 3500sqft, not including the car porch. That translates to around RM200/sqft. The materials better be decently good for the price you paying.

Plus, kinda weird that wiring n plumbing is excluded. Usually these are factored in alrdy.


Minolta
post Jul 19 2022, 09:54 AM

Look at all my stars!!
*******
Senior Member
2,293 posts

Joined: Jan 2003
QUOTE(Peach169 @ Jul 19 2022, 12:26 AM)
Hi, I plan to build a house from empty land. I have ID to do my layout and he told me the cost would be around 500k for the construction only not include wiring, plumping etc. Total would be 700k for all. As I have a tight budget 500k, any idea where can I reduce the cost to make it 500k for all the stuff?
<a href='https://pictr.com/images/2022/07/19/BtaDdx.md.jpg' target='_blank'>https://pictr.com/images/2022/07/19/BtaDdx.md.jpg </a>
<a href='https://pictr.com/images/2022/07/19/Bta3r8.md.jpg' target='_blank'>https://pictr.com/images/2022/07/19/Bta3r8.md.jpg </a>
*
1. Omit bathrooms if possible. Can save about rm15k/bathroom. If not, just tile bath area. Omit glass doors, can use bricks partition. Omit bidet, hooks, paper towel holder etc
2. Use sand bricks instead of red bricks.
3. Omit balconies as it will need railing and sliding door. Brick with smallest window for ventilation/lighting approval enuff.
4. Omit plaster ceiling (can save about rm5/sf). Raw ceiling/roof truss look.
5. Reduce height of building, eg 10” ground to slab or less.
6. Omit as much glazing as possible. Glass is expensive. Just use 6mm float. Dont use tempered or laminate.
7. Omit doors internally if possible. Should save about rm2k/door.
8. No skim coating for walls.
9. No corner beads for plastering.
10. Maxilite paint for internal walls.
11. Minimize plug points (easily save rm200+/point). And limit swithches/lighting. Eg Use single light source for one room, single for toilet. No fancy lighting eg track lights, led strips.
12. Flooring - vinyl glue on should be cheapest. If floor slab even enough, can also skimp on screeding.

Got videos on youtube on malaysian building house for cheap. Can watch and see if thats what you have in mind.

If cant accept all these, then just up the budget
kelvin_ck1
post Jul 19 2022, 11:13 AM

Getting Started
**
Junior Member
73 posts

Joined: Jan 2003


My advice is construct a single storey 1st with the foundation for 2 or 3 storey. After you got more money in the future then you can upgrade to 2 or 3 storey.

If not then you borrow money from bank and complete your construction all at once.
Daylight_walker
post Jul 19 2022, 11:19 AM

Getting Started
**
Junior Member
155 posts

Joined: Dec 2015



TS, we need more information such as what are the specification used? without such information, even a estimator also donno the cost of it
jaycee1
post Jul 19 2022, 11:31 AM

AFK
*******
Senior Member
2,487 posts

Joined: Jul 2008


QUOTE(Minolta @ Jul 19 2022, 09:54 AM)
1. Omit bathrooms if possible. Can save about rm15k/bathroom. If not, just tile bath area. Omit glass doors, can use bricks partition. Omit bidet, hooks, paper towel holder etc
2. Use sand bricks instead of red bricks.
3. Omit balconies as it will need railing and sliding door. Brick with smallest window for ventilation/lighting approval enuff.
4. Omit plaster ceiling (can save about rm5/sf). Raw ceiling/roof truss look.
5. Reduce height of building, eg 10” ground to slab or less.
6. Omit as much glazing as possible. Glass is expensive. Just use 6mm float. Dont use tempered or laminate.
7. Omit doors internally if possible. Should save about rm2k/door.
8. No skim coating for walls.
9. No corner beads for plastering.
10. Maxilite paint for internal walls.
11. Minimize plug points (easily save rm200+/point). And limit swithches/lighting. Eg Use single light source for one room, single for toilet. No fancy lighting eg track lights, led strips.
12. Flooring - vinyl glue on should be cheapest. If floor slab even enough, can also skimp on screeding.

Got videos on youtube on malaysian building house for cheap. Can watch and see if thats what you have in mind.

If cant accept all these, then just up the budget
*
That pretty much covers it.

Build small or simple.

Big difference in costs if you can do a single story instead of double story of the same built up size.

I'm in the related industry. My projects usually 20 to 50% over budget as owners all underestimate what they want.

For TS. Also if can delay, wait a bit. Material prices are high now. Labour cost is high because of shortage. Any delays due to shortage of labour will end up costing you more.
TSPeach169 P
post Jul 19 2022, 01:26 PM

New Member
*
Probation
3 posts

Joined: Jul 2022
QUOTE(jaycee1 @ Jul 19 2022, 11:31 AM)
That pretty much covers it.

Build small or simple.

Big difference in costs if you can do a single story instead of double story of the same built up size.

I'm in the related industry. My projects usually 20 to 50% over budget as owners all underestimate what they want.

For TS. Also if can delay, wait a bit. Material prices are high now. Labour cost is high because of shortage. Any delays due to shortage of labour will end up costing you more.
*
If I build a single story where the total sqft same as double story will the costing different?
TSPeach169 P
post Jul 19 2022, 01:27 PM

New Member
*
Probation
3 posts

Joined: Jul 2022
QUOTE(kelvin_ck1 @ Jul 19 2022, 11:13 AM)
My advice is construct a single storey 1st with the foundation for 2 or 3 storey. After you got more money in the future then you can upgrade to 2 or 3 storey.

If not then you borrow money from bank and complete your construction all at once.
*
I thought of that, but after few years want to add second floor it will be very troublesome right? Because need to take out the roof add another floor and also make stair.
jaycee1
post Jul 19 2022, 04:48 PM

AFK
*******
Senior Member
2,487 posts

Joined: Jul 2008


QUOTE(Peach169 @ Jul 19 2022, 01:26 PM)
If I build a single story where the total sqft same as double story will the costing different?
*
Of course.

You have less loading on base foundation, less loading on RC support/beams and no 1st floor slab and no staircase RC. Plumbing all is shorter.
Ichighost
post Jul 19 2022, 04:57 PM

Casual
***
Junior Member
358 posts

Joined: Aug 2008
From: Oxpod



QUOTE(Peach169 @ Jul 19 2022, 01:26 AM)
Hi, I plan to build a house from empty land. I have ID to do my layout and he told me the cost would be around 500k for the construction only not include wiring, plumping etc. Total would be 700k for all. As I have a tight budget 500k, any idea where can I reduce the cost to make it 500k for all the stuff?
<a href='https://pictr.com/images/2022/07/19/BtaDdx.md.jpg' target='_blank'>https://pictr.com/images/2022/07/19/BtaDdx.md.jpg </a>
<a href='https://pictr.com/images/2022/07/19/Bta3r8.md.jpg' target='_blank'>https://pictr.com/images/2022/07/19/Bta3r8.md.jpg </a>
*
I'm not commenting on the cost laugh.gif

a few things to consider on the layout..

1. Your wet kitchen is very tight, can cosider to omit the corridor and open up the area.
2. Laundry entrace from outside is not the best way to do it. Maybe can group it together with Bath 1.
3. Bedroom 1 can reduce in size. (unless you have specific usage/person that need the space then okay lah i guess)
4. Bedroom 2 and 3 no need to have a brickwall to split between the walk in wardrobe and sleeping area. More flexibility, you can do it with other wall types.
5. Should consider to add one more toilet and do it ensuite for both Bedroom 2 and 3.
6. Should consider coming into the master bedroom, turn left you get into the walk in wardrobe and place the master bath in front (swap the position). Seating in front of sliding door in the master bedroom doesnt work, need to adjust (depending on the swap position).

nod.gif


godwin921
post Jul 20 2022, 12:32 PM

Getting Started
**
Junior Member
129 posts

Joined: Dec 2021
Downsize , borrow money from bank, wait until the material cost to go down.

1. Lawn : Use cow grass instead of premium one
2. Car porch : Can cut this first.


nexona88
post Jul 20 2022, 07:03 PM

The Royal Club Member
*********
All Stars
48,589 posts

Joined: Sep 2014
From: REality
huh...

better downsize first...

material cost is flying like no tomorrow....also labour issues.... very demand of $$$
godwin921
post Jul 20 2022, 09:24 PM

Getting Started
**
Junior Member
129 posts

Joined: Dec 2021
Let's make some simple calculation.

Steel price is coming down slowly already.
USD 700 to USD 650 per MT.

Cement still up.

If you delay your project by 1 year,

2023 Aug start build.
2022 Budget/cash in hand : RM500,000

Put in multiple source of investment which bring return about 10%.

2023 Aug : You will have extra cash

Budget : RM500,000
Investment return : RM50,000
Bonus : RM20,000
Extra saving : RM30,000
Your budget 2023 : RM600,000.

You need 1 year to have your house built up. You need to pay progressive payment through the year.

2024 Aug :
Bonus : RM20,000
Extra saving : RM30,000
Dividend income : RM20,000
Total income : RM70,000

I believe delay of project is better choice. You can use this one year ask for tender and negotiate for better deal.

Btw, hope you have your dream house done by year 2025.





 

Change to:
| Lo-Fi Version
0.0221sec    0.37    5 queries    GZIP Disabled
Time is now: 24th December 2025 - 08:33 PM