QUOTE(mrlive005 @ Jan 6 2022, 04:46 AM)
Im totally clueless regarding renovation cost and current trend of renovation type, bought a new house and the completion date is estimated at Q2/Q3 2023
i read plenty of topic and saw pros recommend stuff, but i couldnt get enough of what i should do
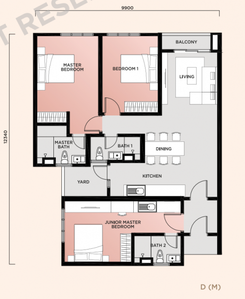
basically i want to reno (the house came empty, standard condo)
-kitchen
-living hall ceiling
-2 room with wardrobe with bed
i have 1 year+ to save some more money to get enough exclude appliances, i'd appreciate if there is some photo or the names of material to reno
i'll go with either one of this budget for my new house renovation cost
RM 50K
RM 30K
If its were you, what will you reno to this house?
Appreciate for help out.

1. Check out the requirement of main wiring ,light point, fan point, switch point /power point .
2. Kitchen cabinet , any good location for sink, fridge, hood and hob /ducting etc.
3. Any plumbing required to place sink/ washing machine
4. check if grille is needed and follow management std.
5. check if repainting is required
6. Wardrobe will be the last to be considered (melamine is the cheapest), as it's easy to install, unless you need led light on wardrobe, (same goes with kitchen cabinet)
If no plaster ceiling/ rewiring, or wet work included, 30-50 k should be sufficient. Or the condo is well designed with all those, can just buy furniture/appliance and move in, save your money.
This post has been edited by kimteck: Jan 7 2022, 05:47 PM