Outline ·
[ Standard ] ·
Linear+
My Humble Loft
|
TSDarrenkls
|
Dec 28 2018, 06:01 PM, updated 4y ago
|
Getting Started

|
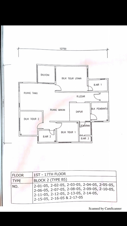
Hi All, Recently completed the renovation of my new house and started to move in, am just a diver here getting alot of knowledge and idea from everyone, and finally I have some time to share what I have done. My unit is a subsale condo unit and I have a bad experience with the lawyer that handling my case. It took him 1 year to settle the change of ownership after I sign the S&P on July 2017, and finally I receive my house key early July this year, but thanks to him also because the moment I receive the house key we are in tax free holiday (no gst and sst) which is a great time for me to start the renovation project. Me and my fiancee wanted to make it as low budget as possible, our main focus was on the kitchen and master bedroom as well as some fix around the unit. So we started to look for contractor that can offer everything we need. After comparing the price we decided to go for this contractor called REDS (Renovation Equal Design Services). Let me share some photos of the unit before and after the renovation Floor Plan » Click to show Spoiler - click again to hide... «
|
|
|
|
|
|
TSDarrenkls
|
Dec 28 2018, 06:02 PM
|
Getting Started

|
Before Renovation » Click to show Spoiler - click again to hide... «
|
|
|
|
|
|
TSDarrenkls
|
Dec 28 2018, 06:02 PM
|
Getting Started

|
After Renovation » Click to show Spoiler - click again to hide... «
|
|
|
|
|
|
laksamana
|
Dec 28 2018, 06:07 PM
|
|
Nice and cozy
|
|
|
|
|
|
Orzie
|
Dec 28 2018, 06:10 PM
|
|
nice looking!
|
|
|
|
|
|
H3artBreakKid
|
Dec 28 2018, 06:10 PM
|
|
well done ts, love how you match those furnitures color, all dark wood
|
|
|
|
|
|
TSDarrenkls
|
Dec 28 2018, 06:56 PM
|
Getting Started

|
QUOTE(H3artBreakKid @ Dec 28 2018, 06:10 PM) well done ts, love how you match those furnitures color, all dark wood  thanks, we really love the color of wood and nature and coincidentally the furniture we bought match each other
|
|
|
|
|
|
Pain4UrsinZ
|
Dec 28 2018, 07:00 PM
|
|
the door in the kitchen how do we call it when talk to the designer or contractor ? fold door ?
|
|
|
|
|
|
TSDarrenkls
|
Dec 28 2018, 07:25 PM
|
Getting Started

|
QUOTE(Pain4UrsinZ @ Dec 28 2018, 07:00 PM) the door in the kitchen how do we call it when talk to the designer or contractor ? fold door ? bi-fold door
|
|
|
|
|
|
UnknownH
|
Dec 28 2018, 08:20 PM
|
|
Cozy looking. Btw, how much did those two white racks cost you?
|
|
|
|
|
|
idoblu
|
Dec 28 2018, 09:31 PM
|
|
thats not a loft
|
|
|
|
|
|
TSDarrenkls
|
Dec 29 2018, 04:31 PM
|
Getting Started

|
QUOTE(UnknownH @ Dec 28 2018, 08:20 PM) Cozy looking. Btw, how much did those two white racks cost you? RM 247.2 with rubber leg
|
|
|
|
|
|
TSDarrenkls
|
Dec 29 2018, 04:33 PM
|
Getting Started

|
QUOTE(idoblu @ Dec 28 2018, 09:31 PM) sorry for using the wrong word, just simply use a word for describing
|
|
|
|
|
|
LTG
|
Dec 29 2018, 04:34 PM
|
|
how much dining table and where to get?
|
|
|
|
|
|
leepzai
|
Dec 30 2018, 05:48 PM
|
New Member
|
Full plaster ceiling?
|
|
|
|
|
|
TSDarrenkls
|
Dec 30 2018, 06:46 PM
|
Getting Started

|
QUOTE(LTG @ Dec 29 2018, 04:34 PM) how much dining table and where to get? RM 1699 from Winho furniture.
|
|
|
|
|
|
TSDarrenkls
|
Dec 30 2018, 06:48 PM
|
Getting Started

|
QUOTE(leepzai @ Dec 30 2018, 05:48 PM) We only did plaster ceiling at kitchen area.
|
|
|
|
|
|
TSDarrenkls
|
Dec 30 2018, 07:34 PM
|
Getting Started

|
QUOTE(rekeyz @ Dec 30 2018, 06:51 PM) ts.ur track lightning how much?thanks. :thumbsup: The one at living room, 2 meter track x4 (RM 36 each), number of light depending on your preference, mine is RM 29 each, different design different price
|
|
|
|
|
|
happyhaka
|
Dec 31 2018, 12:09 AM
|
Getting Started

|
QUOTE(Darrenkls @ Dec 30 2018, 07:34 PM) The one at living room, 2 meter track x4 (RM 36 each), number of light depending on your preference, mine is RM 29 each, different design different price Are the track lights enough to light up the whole room?
|
|
|
|
|
|
shadow_walker
|
Dec 31 2018, 10:47 AM
|
|
QUOTE(Darrenkls @ Dec 30 2018, 07:34 PM) The one at living room, 2 meter track x4 (RM 36 each), number of light depending on your preference, mine is RM 29 each, different design different price where u buy the light and the track?
|
|
|
|
|
|
TSDarrenkls
|
Jan 1 2019, 08:24 PM
|
Getting Started

|
QUOTE(happyhaka @ Dec 31 2018, 12:09 AM) Are the track lights enough to light up the whole room? For us its sufficient, can adjust the lamp head or add more lamp according to our preference. we put an ambient light there as well just in case. Here is how our living room looks like at night. 
|
|
|
|
|
|
TSDarrenkls
|
Jan 1 2019, 08:26 PM
|
Getting Started

|
QUOTE(shadow_walker @ Dec 31 2018, 10:47 AM) where u buy the light and the track? Lot Win LED Lighting at Puchong, same row with Top Ten Lighting 😀
|
|
|
|
|
|
happyhaka
|
Jan 2 2019, 08:23 AM
|
Getting Started

|
QUOTE(Darrenkls @ Jan 1 2019, 08:26 PM) Lot Win LED Lighting at Puchong, same row with Top Ten Lighting 😀 I see. Because my worry with track ligjts is that it might not be enough. How many watts did you place per piece?
|
|
|
|
|
|
TSDarrenkls
|
Jan 2 2019, 10:16 AM
|
Getting Started

|
QUOTE(happyhaka @ Jan 2 2019, 08:23 AM) I see. Because my worry with track ligjts is that it might not be enough. How many watts did you place per piece? Each of my lamp is 7 watts, currently maximum i put per track is 3 lamps. Previously got 5 lamps in 1 track but its too much so i reduce already.
|
|
|
|
|
|
AvenueX
|
Jan 2 2019, 10:38 AM
|
Getting Started

|
Thats a beautiful place bro, where is it if you don't mind me asking?
|
|
|
|
|
|
delang
|
Jan 2 2019, 10:54 AM
|
|
your wardrobe, custom made rite? how much?
|
|
|
|
|
|
TSDarrenkls
|
Jan 2 2019, 03:00 PM
|
Getting Started

|
QUOTE(AvenueX @ Jan 2 2019, 10:38 AM) Thats a beautiful place bro, where is it if you don't mind me asking? Thanks The place is at Bandar Puchong Jaya, same area with Koi Kinrara.
|
|
|
|
|
|
TSDarrenkls
|
Jan 2 2019, 03:02 PM
|
Getting Started

|
QUOTE(delang @ Jan 2 2019, 10:54 AM) your wardrobe, custom made rite? how much? Yup custom made. Quoted RM 5550 for the wardrobe in master bedroom
|
|
|
|
|
|
ahton
|
Jan 2 2019, 03:59 PM
|
Getting Started

|
QUOTE(Darrenkls @ Dec 28 2018, 07:25 PM) i'm looking for bi-fold door. how much is yours? can share the shop please?
|
|
|
|
|
|
ck2chan
|
Jan 5 2019, 03:23 AM
|
|
QUOTE(ahton @ Jan 2 2019, 03:59 PM) i'm looking for bi-fold door. how much is yours? can share the shop please? L&L Onitek bi fold seller. 019 327 6835, 016 330 2525, 016 201 5225. Probably 500 up.
|
|
|
|
|
|
TSDarrenkls
|
Jan 5 2019, 11:00 PM
|
Getting Started

|
QUOTE(ahton @ Jan 2 2019, 03:59 PM) i'm looking for bi-fold door. how much is yours? can share the shop please? My contractor get it for me, brand is Vitally and model is bi-fold king with trackless system, cost me RM660. I once saw it at Big Bath Puchong branch but forgot how much they sell.
|
|
|
|
|
|
AIAF
|
Jan 18 2019, 03:57 PM
|
Getting Started

|
QUOTE(Darrenkls @ Jan 1 2019, 08:24 PM) For us its sufficient, can adjust the lamp head or add more lamp according to our preference. we put an ambient light there as well just in case. Here is how our living room looks like at night.   Nice one!  Super random question but mind sharing where did you get that rug?
|
|
|
|
|
|
TSDarrenkls
|
Jan 18 2019, 05:30 PM
|
Getting Started

|
QUOTE(AIAF @ Jan 18 2019, 03:57 PM) Nice one!  Super random question but mind sharing where did you get that rug? Thanks Bought that from Taobao, you may refer to this link if you're interested
|
|
|
|
|
|
Dio Escobar
|
Jan 18 2019, 05:38 PM
|
Getting Started

|
did you buy your tv cabinet & coffee table from taobao too? if yes how long did it take for them to arrive here from the day you purchased? I bought some home furnitures from taobao too last week, but don't know when will they arrive because cny is coming soon
|
|
|
|
|
|
TSDarrenkls
|
Jan 18 2019, 06:03 PM
|
Getting Started

|
QUOTE(Dio Escobar @ Jan 18 2019, 05:38 PM) did you buy your tv cabinet & coffee table from taobao too? if yes how long did it take for them to arrive here from the day you purchased? I bought some home furnitures from taobao too last week, but don't know when will they arrive because cny is coming soon tv cabinet and coffee table buy locally, but I did buy shoe cabinet, dressing table & chair, and single seat sofa from taobao. Took around 3 weeks time to reach my door step after I pay and confirm for consolidated sea shipping, but too bad only shoe cabinet and dressing table & chair arrived, the single seat sofa was reportedly missing after i wait for 2 months++ with few complaints. Probably yours will arrive after cny since they have cny sales recently.
|
|
|
|
|
|
MrSirCh
|
May 5 2022, 01:52 AM
|
Getting Started

|
Hi there...im interested to know about REDS...what do you think about their workmanship and services? and is the price reasonable? thanks in advance
|
|
|
|
|
|
empire
|
May 6 2022, 01:47 PM
|
|
bravo!
|
|
|
|
|
|
TSDarrenkls
|
May 9 2022, 11:28 AM
|
Getting Started

|
QUOTE(MrSirCh @ May 5 2022, 01:52 AM) Hi there...im interested to know about REDS...what do you think about their workmanship and services? and is the price reasonable? thanks in advance workmanship and service is ok, you get what you paid, they are able to give me what I want throughout the whole renovation process. As I was on a tight budget that time, I can say their price is reasonable. You can always let them know your budget first and discuss with them what you want to do, and they will adjust for you.
|
|
|
|
|
|
MrSirCh
|
May 10 2022, 10:49 AM
|
Getting Started

|
QUOTE(Darrenkls @ May 9 2022, 11:28 AM) workmanship and service is ok, you get what you paid, they are able to give me what I want throughout the whole renovation process. As I was on a tight budget that time, I can say their price is reasonable. You can always let them know your budget first and discuss with them what you want to do, and they will adjust for you. alright thanks for the information bro...i'm interested with them coz i see your condo unit is quite nice, will probably get a quotation from them
|
|
|
|
|