Welcome Guest ( Log In | Register )

7 Pages « < 3 4 5 6 7 >Bottom

Outline · [ Standard ] · Linear+

 Plaster Ceiling Quotation, Reasonable?

views
     
simyee0709
post Sep 27 2017, 04:05 PM

New Member
*
Newbie
4 posts

Joined: Sep 2017
QUOTE(advocado @ Sep 15 2017, 12:35 PM)
how is his quality & workmanship?
*
We do satisfied on his works on our house. Good services too.
hellonajwa
post Oct 15 2017, 11:34 PM

New Member
*
Newbie
5 posts

Joined: Oct 2017
Hi all., my unit is 709sqft and i have few question
I wanna know how much it will cost to do the living and kitchen area only. Or maybe whole unit if the price within my budget.
Is it okay if i only do the plain for whole unit?
Is the cost will include the wiring and light point?
Do i buy the downlight myself or the contractor will include in the bill?

How it works., 1light point for 1downlight?

Can help me where shud i put the lights point for downlight?

Attached Image
darkmusses
post Oct 16 2017, 12:28 AM

On my way
****
Junior Member
595 posts

Joined: Nov 2008
From: Kuala Lumpur
QUOTE(hellonajwa @ Oct 15 2017, 11:34 PM)
Hi all., my unit is 709sqft and i have few question
I wanna know how much it will cost to do the living and kitchen area only. Or maybe whole unit if the price within my budget.
Is it okay if i only do the plain for whole unit?
Is the cost will include the wiring and light point?
Do i buy the downlight myself or the contractor will include in the bill?

How it works., 1light point for 1downlight?

Can help me where shud i put the lights point for downlight?

Attached Image
*
Self design or asking for ID?
hellonajwa
post Oct 18 2017, 02:19 AM

New Member
*
Newbie
5 posts

Joined: Oct 2017
QUOTE(darkmusses @ Oct 16 2017, 12:28 AM)
Self design or asking for ID?
*


I'm sorry. What is ID?
meme00
post Oct 18 2017, 08:35 AM

Getting Started
**
Junior Member
193 posts

Joined: Aug 2006
QUOTE(hellonajwa @ Oct 18 2017, 02:19 AM)
I'm sorry. What is ID?
*
Interior Design
hellonajwa
post Oct 18 2017, 07:16 PM

New Member
*
Newbie
5 posts

Joined: Oct 2017
QUOTE(meme00 @ Oct 18 2017, 08:35 AM)
Interior Design
*

Ohh. Nah., not hiring any ID. Just do on my own., hope it will turns out good
meme00
post Oct 19 2017, 09:08 AM

Getting Started
**
Junior Member
193 posts

Joined: Aug 2006
QUOTE(hellonajwa @ Oct 18 2017, 07:16 PM)
Ohh. Nah., not hiring any ID. Just do on my own., hope it will turns out good
*
Do share photos with us after your reno is done tongue.gif
hellonajwa
post Oct 23 2017, 01:06 AM

New Member
*
Newbie
5 posts

Joined: Oct 2017
QUOTE(meme00 @ Oct 19 2017, 09:08 AM)
Do share photos with us after your reno is done  tongue.gif
*
Okay sure i will. 💪😬
syana99
post Oct 23 2017, 09:11 AM

New Member
*
Newbie
4 posts

Joined: May 2008
My contractor's quotation. Ok or not? Initially I thought it was ok, now after reading this thread I wonder if it's expensive.

650 sqft flat board plaster ceiling & 15 ft pelment = lump sum RM3000.
Speedy~
post Nov 9 2017, 01:23 PM

Getting Started
**
Junior Member
181 posts

Joined: Apr 2006


any reliable plaster ceiling contractor around sunway area?
simyee0709
post Nov 20 2017, 05:18 PM

New Member
*
Newbie
4 posts

Joined: Sep 2017
QUOTE(syana99 @ Oct 23 2017, 09:11 AM)
My contractor's quotation. Ok or not? Initially I thought it was ok, now after reading this thread I wonder if it's expensive.

650 sqft flat board plaster ceiling & 15 ft pelment = lump sum RM3000.
*
Price a bit higher. Can negotiate till RM2k - RM2.5k
vampirewolf
post Dec 6 2017, 04:52 PM

Getting Started
**
Junior Member
139 posts

Joined: Mar 2016


QUOTE(ivolusion @ Mar 23 2016, 12:58 AM)
RM4 per sqft is quite expensive.

I just did mine for RM2.80 per sqft. Puchong area.
900 sqft for RM2,500
*
include how many light box for this cost?
PBD
post Mar 16 2018, 12:22 PM

New Member
*
Junior Member
32 posts

Joined: Dec 2017


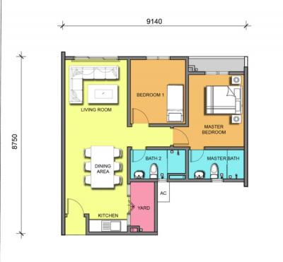
Hi Does anyone know what will be the roughly estimation to do plaster ceiling for 2062sf condo.

Below is the floor plan




Attached thumbnail(s)
Attached Image
fama7738
post Mar 20 2018, 12:55 PM

New Member
*
Newbie
21 posts

Joined: Mar 2018
QUOTE(PBD @ Mar 16 2018, 12:22 PM)
Hi Does anyone know what will be the roughly estimation to do plaster ceiling for 2062sf condo.

Below is the floor plan
*
According mine house. Rm3.3/sqft, should be Rm6685.80.
Mine was fully plain. No light trough or cornice.
jimmyteo6888
post Mar 29 2018, 10:41 PM

New Member
*
Newbie
1 posts

Joined: Mar 2018
Dear All,

Call me & WhatsApp me 013-934 8668 for best price quotation plaster ceiling

Thanks
kuanping
post Jun 23 2018, 06:32 PM

New Member
*
Newbie
10 posts

Joined: May 2012
I would like to remove the dome as shown in pic due to it unfit to the fan I bought. Is it hard to remove and will it effect the alignment or other part of the plaster ceiling ? My contractor said it is easy, but my friend it will have big impact to the whole living room plaster ceiling = =

Anyone can advice !!


Attached thumbnail(s)
Attached Image
Nymphetamine666
post Jun 27 2018, 04:43 PM

Enthusiast
*****
Senior Member
708 posts

Joined: Aug 2011


QUOTE(kuanping @ Jun 23 2018, 06:32 PM)
I would like to remove the dome as shown in pic due to it unfit to the fan I bought. Is it hard to remove and will it effect the alignment or other part of the plaster ceiling ? My contractor said it is easy, but my friend it will have big impact to the whole living room plaster ceiling = =

Anyone can advice !!
*
Your friend is lying. The contractor know what he's doing.
chichichi
post Aug 17 2018, 07:47 PM

Casual
***
Junior Member
403 posts

Joined: Aug 2017
Hi, can I ask here whether the quotation below is reasonable.

Flat plaster ceiling with curtain pelmet
Size room 10 ft x 11 ft
Existing wiring 2 lights and 1 fan hook change to 4 units downlight and one fan.

RM886 for all.

Is it reasonable?
chichichi
post Sep 30 2018, 09:06 PM

Casual
***
Junior Member
403 posts

Joined: Aug 2017
QUOTE(Jacobsoon7928 @ Sep 30 2018, 01:33 PM)
The price is lump sum or by sqft?
*
Lump sum
kimhoong
post Oct 1 2018, 10:52 AM

Look at all my stars!!
Group Icon
Elite
5,154 posts

Joined: Jan 2003


My upper unit's water leaking caused partial of my bathroom plaster ceiling damanged (around 15 sqf only).

The water leaking is fixed now but the upper unit owner told me that he could not find a affordable contractor for fixing my plaster ceiling. The ones he contacted quoted him RM800 (!!). He asks if I could get cheaper alternatives.

Any recommendation for such a small task on plaster ceiling? From my understanding the damaged part has to be cut off and replaced with a new one.

Location: Bandar Kinrara.

7 Pages « < 3 4 5 6 7 >Top
 

Change to:
| Lo-Fi Version
0.0272sec    0.48    6 queries    GZIP Disabled
Time is now: 13th December 2025 - 04:09 AM