QUOTE(Lester1987 @ Dec 8 2014, 08:39 PM)
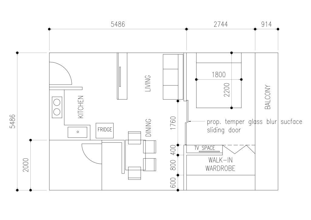
This will be my final layout... any comment?? Its base on actual measuring on the unit it self. The numbers at the side is by "foot".

1 room unit?
My humble studio house reno.., 484 sqft studio
|
|
Dec 11 2014, 07:54 AM
|
![]() ![]() ![]() ![]() ![]() ![]() ![]()
Senior Member
5,847 posts Joined: Nov 2010 From: Malaysia 🇲🇾 |
|
|
|
|
|
|
Dec 11 2014, 07:59 AM
|
![]() ![]() ![]() ![]() ![]() ![]() ![]()
Senior Member
5,847 posts Joined: Nov 2010 From: Malaysia 🇲🇾 |
QUOTE(Lester1987 @ Dec 10 2014, 08:58 PM) Did a new layout with 3d sweet home. I think this one is better. Do you guys agree? Oops I'm late for looking in it thread, look quite extract me here.![]() There is 1 problem though, The TV Athena and power switch all located near the computer table. I wonder how the contractor gonna relocate them. BTW on the floor plan, you can consider used foldable sliding full height partition for fixable to used when you need more bigger space or closed up as room compartment. The rest if you need me for help up n input I'm welcome too Here got some arrangement ![]() This post has been edited by kimsim: Dec 11 2014, 09:50 AM |
|
|
Dec 12 2014, 12:51 PM
|
![]() ![]() ![]() ![]()
Senior Member
580 posts Joined: Aug 2013 |
I like these blinds for your space.
|
|
|
Dec 12 2014, 01:04 PM
|
![]() ![]() ![]() ![]() ![]() ![]() ![]()
Senior Member
2,017 posts Joined: Jan 2007 |
hey guys, I just collected the keys earlier. The place is in total mess, coffee stain at the floor, some small edges not painted properly. the water tab and shower head not installed. and also cement stain on the toilet tiles. Are they suppose to clean this mess for me or I have to do it on my own?
|
|
|
Dec 12 2014, 05:02 PM
|
![]() ![]() ![]() ![]() ![]() ![]() ![]()
Senior Member
2,140 posts Joined: Nov 2010 |
QUOTE(Lester1987 @ Dec 1 2014, 09:34 PM) Your bathroom at 2170x2020mm is modestly large but there's only one. If you are renovating the bathroom and open to this radical idea, here's a tip from having lived in apartments over half my life. If it is possible to do what the Japanese would do: carve it out in such a way that 3 individuals can use it at the same time. It seems possible to carve this unit's bathroom into three separate rooms: toilet, powder area and shower room. But only if additional floor traps are readily present at these areas: i) next to WC ii) near sink iii) shower area already has a floor trap so that's a given. If i) and ii) are there, you can then do this. I know that this is a studio for a single person but if you have guests over or even for married couples young or old with no children, it would be practical. I think the value of your place can command a higher price than the neighbouring ones of the same layout but did not do the same for the bathroom. This post has been edited by halcyon27: Dec 12 2014, 05:03 PM |
|
|
Dec 12 2014, 11:36 PM
|
![]() ![]() ![]() ![]()
Senior Member
637 posts Joined: Jul 2010 From: West Malaysia |
There should be a 1 year warranty for defects/workmanship by condo developers I think.
In your case, you can call them up saying defect/workmanship issue for the edges, cement stains on toilet tiles. But for water tab and shower head that is not installed - do check other units to see if these units come with them. If they do, you can complain to them why your units do not have them QUOTE(Lester1987 @ Dec 12 2014, 02:04 PM) |
|
|
|
|
|
Dec 12 2014, 11:40 PM
|
![]() ![]() ![]() ![]() ![]() ![]() ![]()
Senior Member
2,017 posts Joined: Jan 2007 |
QUOTE(S'aimer @ Dec 12 2014, 11:36 PM) There should be a 1 year warranty for defects/workmanship by condo developers I think. I met the construction worker at level 5 (my club house level with other units as well and they are installing the water tabs there now). Its a indonesian lady. i told her i collected key already but my house don't have the tab. She reply me "tengok la, tengah sibuk ni, nanti baru kita pasang, skrg tingkat 5, lu tingkat berapa, nanti kita naik la". I am wondering how can the developer hand me the key without even completing everything In your case, you can call them up saying defect/workmanship issue for the edges, cement stains on toilet tiles. But for water tab and shower head that is not installed - do check other units to see if these units come with them. If they do, you can complain to them why your units do not have them |
|
|
Dec 12 2014, 11:42 PM
|
![]() ![]() ![]() ![]() ![]() ![]() ![]()
Senior Member
2,017 posts Joined: Jan 2007 |
oh ya, another thing to add, they prepared all the TNB forms for me, but they tell me you cannot submit it to TNB first. They are still checking the power and meter at the building. You can only submit it 2 weeks later....
in my mind I was thinking (WTF, means I cannot start my renovation until 2 weeks later? how to rush to move in before CNY la like that |
|
|
Dec 13 2014, 01:55 AM
|
![]() ![]() ![]() ![]()
Senior Member
637 posts Joined: Jul 2010 From: West Malaysia |
Interesting. When the workers install the tab (or is it tap?),ask them to remove the cement stains. If they cannot do that, make a request to the maintenance office to change the tile. Chemical wash is not very kind on tiles if not done properly.
QUOTE(Lester1987 @ Dec 13 2014, 12:40 AM) I met the construction worker at level 5 (my club house level with other units as well and they are installing the water tabs there now). Its a indonesian lady. i told her i collected key already but my house don't have the tab. She reply me "tengok la, tengah sibuk ni, nanti baru kita pasang, skrg tingkat 5, lu tingkat berapa, nanti kita naik la". I am wondering how can the developer hand me the key without even completing everything |
|
|
Dec 13 2014, 03:17 AM
|
![]() ![]() ![]() ![]() ![]() ![]() ![]()
Senior Member
6,249 posts Joined: Jul 2006 |
QUOTE(Lester1987 @ Dec 12 2014, 11:40 PM) I met the construction worker at level 5 (my club house level with other units as well and they are installing the water tabs there now). Its a indonesian lady. i told her i collected key already but my house don't have the tab. She reply me "tengok la, tengah sibuk ni, nanti baru kita pasang, skrg tingkat 5, lu tingkat berapa, nanti kita naik la". I am wondering how can the developer hand me the key without even completing everything could be true about the penalty, coz they can put the uninstalled stuff as "defects" to "claim warranty" which can be an extended indefinite period |
|
|
Dec 13 2014, 11:27 AM
|
![]() ![]() ![]() ![]()
Senior Member
676 posts Joined: May 2012 |
QUOTE(Lester1987 @ Dec 12 2014, 01:04 PM) hey guys, I just collected the keys earlier. The place is in total mess, coffee stain at the floor, some small edges not painted properly. the water tab and shower head not installed. and also cement stain on the toilet tiles. Are they suppose to clean this mess for me or I have to do it on my own? In my opinion, all developers in Malaysia are not honest. They give a product that is not up to standard in quality for the price paid. Everyone that I know of who have bought new properties (including me) always need to present developers with a list of defects and have to be at the mercy of waiting for developers to rectify those defects, causing delay in their own home renovation. And I'm talking about defects that shouldn't be there in the first place...uneven wall, windows having paint stain, tiles missing, cement stain on floor/taps/windows, taps missing, tile cracks, etc...the list goes on and on. Most can't even pass the Quality ISO standard.Never once did I hear of buyers who can start renovation immediately after they get the keys. |
|
|
Dec 13 2014, 03:54 PM
|
![]() ![]() ![]() ![]()
Senior Member
580 posts Joined: Aug 2013 |
QUOTE(honkkydorry @ Dec 13 2014, 11:27 AM) In my opinion, all developers in Malaysia are not honest. They give a product that is not up to standard in quality for the price paid. Everyone that I know of who have bought new properties (including me) always need to present developers with a list of defects and have to be at the mercy of waiting for developers to rectify those defects, causing delay in their own home renovation. And I'm talking about defects that shouldn't be there in the first place...uneven wall, windows having paint stain, tiles missing, cement stain on floor/taps/windows, taps missing, tile cracks, etc...the list goes on and on. Most can't even pass the Quality ISO standard. A+Never once did I hear of buyers who can start renovation immediately after they get the keys. You almost want to roll your eyes every time you see a defect that should not have been there in the first place. Really, developers rarely if ever care about their product quality anymore. So long as they have a product in exchange for your hard earned cash. I only ever known one local small time developer here in Sabah who's a perfectionist as he handles the quality control himself. I swore I could have cried a bit just seeing his houses from the street. |
|
|
Dec 13 2014, 06:20 PM
|
![]() ![]() ![]() ![]()
Senior Member
637 posts Joined: Jul 2010 From: West Malaysia |
That includes Setia developer?
|
|
|
|
|
|
Dec 22 2014, 11:24 PM
|
![]() ![]() ![]() ![]() ![]() ![]() ![]()
Senior Member
2,017 posts Joined: Jan 2007 |
just posting a little update after 2 weeks of shopping. the final quotation i get from my contractor is as per below.
![]() My Final lay out will be like this ![]() Bought this bath room cabinet for my toilet. RM1.8k, but i bought a very unique water tab for it. Will post it after install. ![]() This post has been edited by Lester1987: Dec 22 2014, 11:25 PM |
|
|
Dec 22 2014, 11:32 PM
|
![]() ![]() ![]() ![]() ![]() ![]() ![]()
Senior Member
2,017 posts Joined: Jan 2007 |
The wardrobe i change to 8 feet, top up RM800.
|
|
|
Dec 22 2014, 11:39 PM
|
![]() ![]() ![]() ![]() ![]() ![]() ![]()
Senior Member
6,249 posts Joined: Jul 2006 |
[y]
|
|
|
Dec 23 2014, 01:13 AM
|
![]() ![]() ![]() ![]()
Senior Member
637 posts Joined: Jul 2010 From: West Malaysia |
it looks cramped to me if placing sofa in front of a king size bed though.
|
|
|
Dec 23 2014, 01:24 AM
|
![]() ![]() ![]() ![]() ![]() ![]() ![]()
Senior Member
2,017 posts Joined: Jan 2007 |
|
|
|
Dec 23 2014, 09:12 AM
|
![]() ![]() ![]()
Junior Member
347 posts Joined: Nov 2013 |
QUOTE(OneMoreDay @ Dec 2 2014, 03:13 PM) It's called a Murphy Bed. That is one nice concept. Looking forward to applying this at my place when hand over is done.![]() In the next photo you can see a hinged joint on the L shaped base of the table that folds and lowers as the bed is revealed. ![]() In the video below, the dining/queen bed combo is at the 1.30 mark. SOURCE: Resource Furniture Hafele also has Murphy kits for a Queen size but they don't seem to be available for the Malaysian market. They do have the Tavoletto which converts a single bed to a desk. You should still head to the showroom to discuss hardware options and mechanisms just so you have a better understanding in person (and maybe check on the availability of a Queen kit). They also have a sale coming up. ![]() EDIT: Resource Furniture ships to port as well so if you're interested, drop them an email. |
|
|
Dec 23 2014, 12:43 PM
|
![]() ![]() ![]() ![]()
Senior Member
637 posts Joined: Jul 2010 From: West Malaysia |
Was thinking, if you do a U shape kitchen counter where one side is for cooking and the other side as a breakfast/bar counter for eating area.
It might be easier for sofa placement without a dining table & chairs in the way QUOTE(Lester1987 @ Dec 23 2014, 02:24 AM) |
| Change to: | 0.0287sec
0.51
6 queries
GZIP Disabled
Time is now: 2nd December 2025 - 05:09 AM |