Welcome Guest ( Log In | Register )

Outline · [ Standard ] · Linear+

Investment LAKEFRONT CYBERJAYA | PR1MA LAKEFRONT [OT], Villa | Acorus Brasenia Caldesia Diandra

views
     
leelee1988
post Dec 5 2015, 07:58 PM

Getting Started
**
Junior Member
176 posts

Joined: Sep 2013
Some pic update as per today..
tower1
Attached Image
Attached Image
Attached Image
From the pic can notice the car park actually not all fully basement?..cause can see the 1st floor is not level with the road

Tower 2 started have some progress as well
Attached Image

The lake n prima 1 in progress as well
Attached Image
Attached Image

This post has been edited by leelee1988: Dec 5 2015, 08:09 PM
leelee1988
post Dec 30 2015, 03:04 PM

Getting Started
**
Junior Member
176 posts

Joined: Sep 2013
QUOTE(thecaterpillar @ Dec 30 2015, 12:42 PM)
Do you know where is the location then? Is it surrounding the same lake?
*
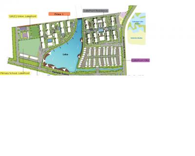
prima 1 on the left
Attached Image


the lake in middle ur back is lake point residence



Lakefront on the right
Attached Image

This post has been edited by leelee1988: Dec 30 2015, 03:05 PM
leelee1988
post Jan 1 2016, 01:26 PM

Getting Started
**
Junior Member
176 posts

Joined: Sep 2013
QUOTE(rachel13 @ Dec 31 2015, 06:48 PM)
Hm. It seems that there are conflicting statements about this issue. The sales agent told me that the land it not for PR1MA and that tower 5 to 8 will also be luxury apartments.
But maybe on the other side of the lake perhaps? Getting a bit blur. =p
*
Hope this pic can explain more..
Attached Image

leelee1988
post Jan 7 2016, 12:19 PM

Getting Started
**
Junior Member
176 posts

Joined: Sep 2013
QUOTE(Cadence Shen @ Jan 6 2016, 11:09 PM)
will the project complete on time as promise on around April 2018?  hmm.gif
*
different block different completion date.. myself also curious how MCT going to have over the key for tower 1 buyer while the commons area is still not ready.
leelee1988
post Jan 7 2016, 12:19 PM

Getting Started
**
Junior Member
176 posts

Joined: Sep 2013
QUOTE(Cadence Shen @ Jan 6 2016, 11:09 PM)
will the project complete on time as promise on around April 2018?  hmm.gif
*
different block different completion date.. myself also curious how MCT going to have over the key for tower 1 buyer while the commons area is still not ready.
leelee1988
post Jan 8 2016, 01:14 PM

Getting Started
**
Junior Member
176 posts

Joined: Sep 2013
QUOTE(attw @ Jan 8 2016, 09:18 AM)
Initially when I bought Tower 1 I was told no reserved car parks, first come first serve. Then later they mention it will change to reserved car parks. Now am not sure smile.gif
*
rclxub.gif rclxub.gif rclxub.gif there is no black and white saying that they going to change the car park to reserved they just say it verbally..any owner from tower one receive any letter from MCT?
leelee1988
post Feb 28 2016, 10:29 PM

Getting Started
**
Junior Member
176 posts

Joined: Sep 2013
Read something new and interesting about lakefront residence:

http://nanyangpropertyfair.com/%E5%8D%97%E...B8%BB%E6%89%93/

Since when MCT added these facilities in to this project? more than 40 over facilities???

举泳池为例,便计有温泉泳池、水上运动池、按摩浴池、盐水泳池、鱼池等等。
For swimming pools, for example, will count with a spa pool, water sports pool, Jacuzzi, saltwater pool, fish pond and so on. (Google direct translate)

公园也分为禅公园、疗愈公园、花香公园、草药公园及茶树园等等;其他标准设备如礼堂、体育场、慢跑道、野餐点等也应有尽有。
Park also divided into Zen park, healing park, floral park, park and tea garden herbs etc; other standard equipment such as auditorium, stadium, jogging track, picnic site, also everything. (Google direct translate)

This post has been edited by leelee1988: Feb 28 2016, 10:30 PM
leelee1988
post Feb 29 2016, 11:21 AM

Getting Started
**
Junior Member
176 posts

Joined: Sep 2013
QUOTE(cedm @ Feb 29 2016, 10:50 AM)
I think it's always been part of the project. It's mentioned in the brochures I have (T3 & 4).
*
Cause don't remember have salt water pool.. where will this be located?
leelee1988
post Apr 22 2016, 03:22 PM

Getting Started
**
Junior Member
176 posts

Joined: Sep 2013
Some progress for the Chinese school... sent to me by the MCT SA
thumbup.gif
Attached Image Attached Image Attached Image
leelee1988
post Jul 30 2017, 11:09 PM

Getting Started
**
Junior Member
176 posts

Joined: Sep 2013
QUOTE(Netto Hikari @ Jul 30 2017, 11:01 PM)
im wondering, if tower 1 and 2 completed, dont think it is safe to move it yet rite? since tower 3 n 4 still construction.
*
Wondering that as well.. how do developer going to hand over tower 1 and 2 only mid next year when total have 8tower and the commons facilities are shared among the 8 tower.

Safety is a concern and if the balance 4 tower going to built later on noise pollution is a issue and hope the tower 1 till 4 can withstand the vibration won't have any structure or wall cracking issue.


leelee1988
post Jul 31 2017, 02:36 PM

Getting Started
**
Junior Member
176 posts

Joined: Sep 2013
QUOTE(kcy1606 @ Jul 31 2017, 08:54 AM)
IMO only part of facilities surrounding T1 & T2 will be VPed together under 1st phase (see the raised level in attached photos).

I guess other facilities won't be opened until completion of next phase.

[attachmentid=9004317]
[attachmentid=9004318]
*
Any news on the balance 4 tower? MCt still stick with the 8 tower master plan?

And for the parking still first come first serve basis ? Or they allocated the parking for all the unit ? Don't received any black and white on this matter also ??

Tower 3 and 4 sell with allocated car park?

Thanks
leelee1988
post Sep 29 2017, 10:29 PM

Getting Started
**
Junior Member
176 posts

Joined: Sep 2013
QUOTE(wjchay @ Sep 27 2017, 09:24 AM)
These are only for Prima and not Lakefront condos?
*
https://www.facebook.com/groups/1729801963929506/

this will be the lakefront residence fb
leelee1988
post Dec 27 2018, 08:54 AM

Getting Started
**
Junior Member
176 posts

Joined: Sep 2013
Anyone checking up that the latest price list and package from the sales office? the Nett price from the developer will be? If now wanted to let go the tower 1 unit facing lake how much can fetch ya? any idea? or still the same price 4.5 years ago ???
leelee1988
post Dec 27 2018, 04:57 PM

Getting Started
**
Junior Member
176 posts

Joined: Sep 2013
QUOTE(ATKH @ Dec 27 2018, 01:34 PM)
What is your unit size and how much did u buy ?
Is it lakefront homes or residence ?
*
lake front residence facing setia eco glade. 1390 sf thinking selling 650k got people will buy this price? haha???
leelee1988
post Jan 3 2019, 10:07 AM

Getting Started
**
Junior Member
176 posts

Joined: Sep 2013
QUOTE(BEANCOUNTER @ Jan 3 2019, 08:46 AM)
cybehjialat

my friend just bought a unit there (1yr ago, thereabout) was thinking to use as own stay until they found paradise in SEH single storey bungalow.

he is really caught with his pants down. Move to new bungalow needs money to reno, and this lakefront wont make him any money if not losing more money as now decide to put on market for subsale.
*
Setia eco glade have single story bungalow?
leelee1988
post Apr 2 2019, 03:29 PM

Getting Started
**
Junior Member
176 posts

Joined: Sep 2013
QUOTE(Rudd @ Apr 1 2019, 11:39 PM)
Previously was told MCT will take care of the lake.
Now rumours said will be under MPSepang fully.

Looking at Taman tasik Cyberjaya condition, i wonder what kind of lake Cyberjaya lakefront will be in near future.
*
can just drop by at the lakefront sales gallery they prebooking tower 5 to 8
more story from the SA

-secondary school going to be built beside the primary school. Start construct next year
-the lake will be only beautified in 2023 once lake front home construction is done

anyway dont take it seriously they say we listen only. haha rclxs0.gif



leelee1988
post Apr 2 2019, 04:42 PM

Getting Started
**
Junior Member
176 posts

Joined: Sep 2013
QUOTE(cedm @ Apr 2 2019, 03:36 PM)
Any details? I've been told very different things by different sales people when I enquired about T5-8 last year...
*
can just drop by again but dont trust too much on the SA told u. haha
if not mistaken they will launch smaller sf and studio unit this the info i get.


leelee1988
post Apr 20 2019, 11:19 PM

Getting Started
**
Junior Member
176 posts

Joined: Sep 2013
QUOTE(chinchuanccc @ Apr 20 2019, 10:54 PM)
I thought the school is ready ya?
*
There one operating is primary school.
What they told me there will be a secondary school. But always double and triple check again this info haha

 

Change to:
| Lo-Fi Version
0.0569sec    0.65    7 queries    GZIP Disabled
Time is now: 2nd December 2025 - 05:08 PM