Can any contractors or anyone who have experience give in their 2 cents?
1) extention of the left side of the house
2) build an additional 1st floor
3) plaster ceiling for the whole house
4) roof tiles maybe able to use the old one + new additionals
Below is the plan for the original house (ground floor without renovation)
ground floor propose renovation (the dotted lines indicate the walls that have to pecah)
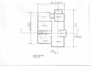
1st floor propose renovation
Must appreciated if you guys could give your opinion
This post has been edited by muxx: Mar 26 2011, 04:39 PM
Mar 26 2011, 04:36 PM, updated 15y ago
Quote

0.0173sec
0.24
6 queries
GZIP Disabled